Tres Cruces, Doctor Salvador Ferrer Serra 2200

U$S 420,000

U$S 1,203/m2

Ванные комнаты

1

Площадь, м²

349

Тип

Земля

Опубликовано

3 дня назад

Просмотры

8

Venta Terreno Para Desarrollo, Tres Cruces

Corredor Responsable: -
Contacto: Nicolás Folle Delgado
Se vende padrón de 349m2 ubicado sobre Dr. Salvador Ferrer Serra. Oportunidad estratégica en Tres Cruces, una de las zonas de mayor dinamismo residencial e inversión de Montevideo.

+ Informe de Alineaciones del padrón:

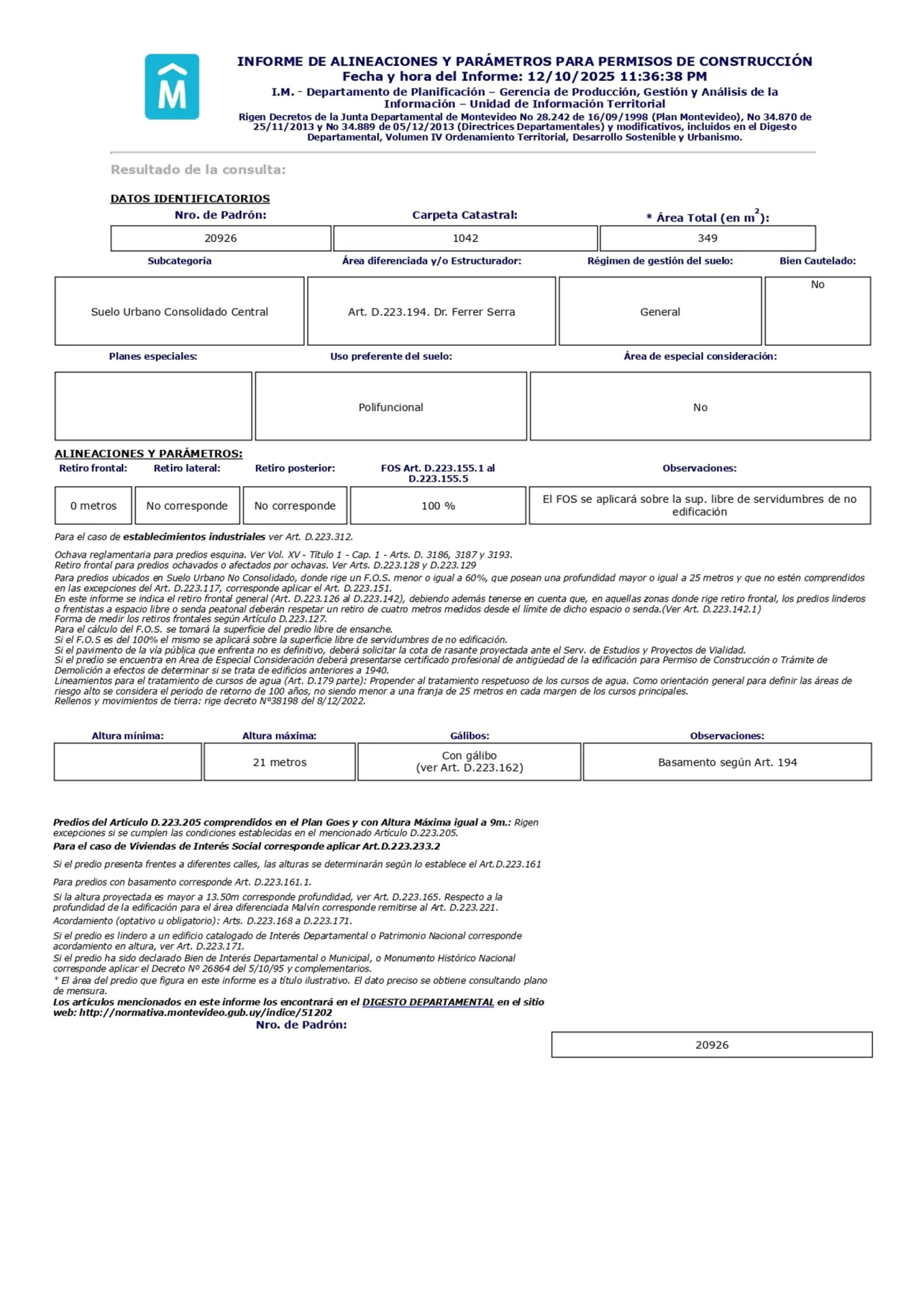
Número de padrón: 20926

Terreno: 349 m² / Construido: 153 m²

FOS (Factor de ocupación del suelo): 100 %

Frente: 9.52m / Profundidad: 36.83m

Retiro frontal: 0 m

Sin retiro lateral ni posterior

Altura máxima: 21 m + opción de gálibo

Oportunidad para inversores y desarrolladores:
Excelente ubicación, con conectividad de transporte, servicios, comercios y gran demanda de vivienda en altura.
Cada Oficina es de propiedad, gestión y desarrollo independiente
La presente publicación describe las características esenciales del inmueble, debiéndose consultar al responsable de la operación por la eventual actualización de las medidas, descripciones arquitectónicas y funcionales, servicios, impuestos, precios y demás información, cuyos valores son aproximados.

Характеристики

ID

Тип

Площадь, м²

Земля, м²

1342624

Продажа

349

3492

Ванные комнаты

Ссылка

Обновлено

1

PCBC9C

2025-12-08

Район

420к U$S

Район

Montevideo

Адрес

Tres Cruces, Doctor Salvador Ferrer Serra 2200

Дополнительные действия

RE/MAX
099001901
Похожие объекты
Загрузка...
Зарабатывайте деньги привлекая коллег!

Приглашайте других агентов по недвижимости и получайте 10% комиссии с каждого их продвижения.