Malvín, Gallinal 1600

U$S 370,000

U$S 681/m2

Ванные комнаты

1

Площадь, м²

543

Тип

Земля

более

3 месяцев назад

Просмотры

387

Venta Terreno Malvin Sur Con Proyecto Aprobado

Corredor Responsable: -
Contacto: Gabriela Barretto
Se vende terreno de 543m2 en Malvín Sur, sobre la calle Alejadro Gallinal, a una cuadra de la Av. Rivera, y 5 de la Rambla, con proyecto de viviendas aprobado.

Padrón 163772

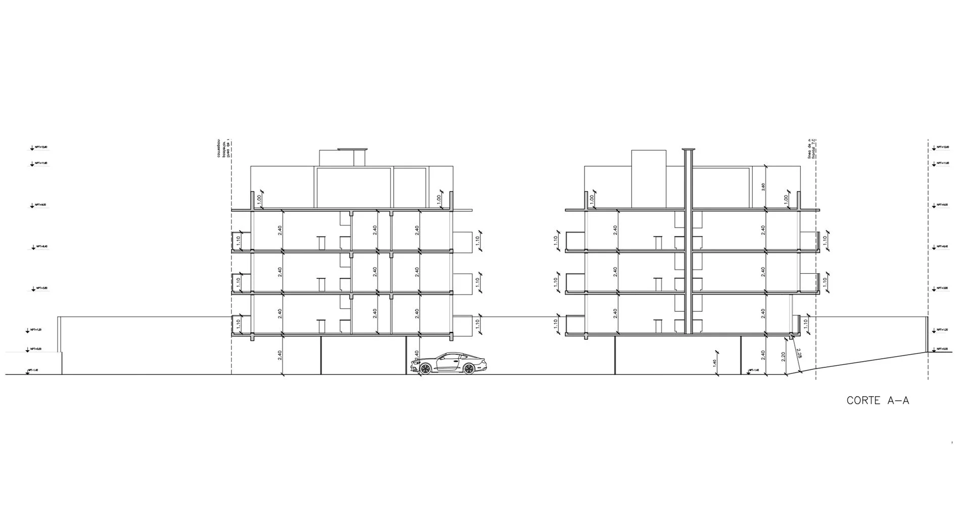
El terreno tiene la posibilidad de construir hasta 9 metros de altura (según normativa
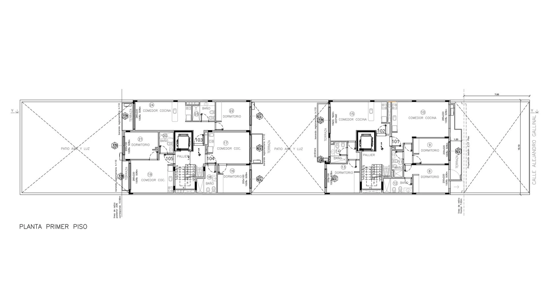
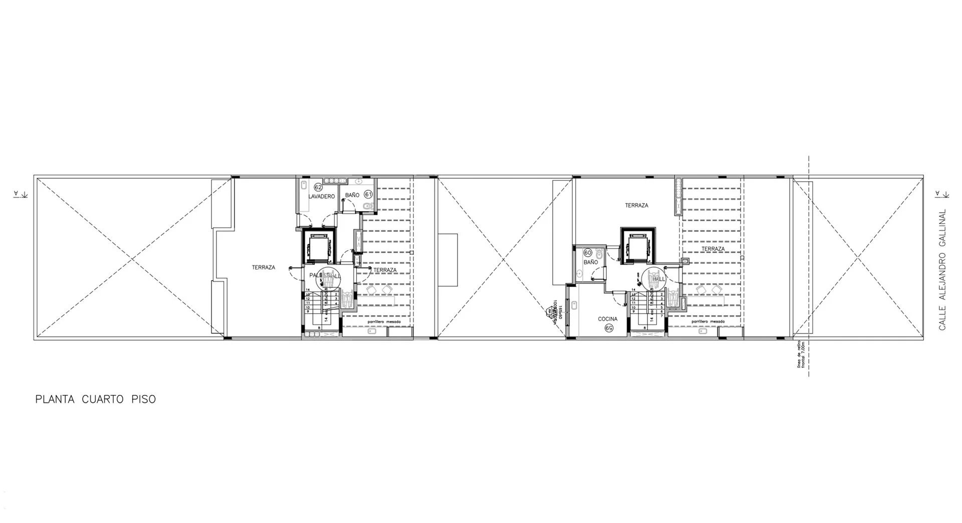
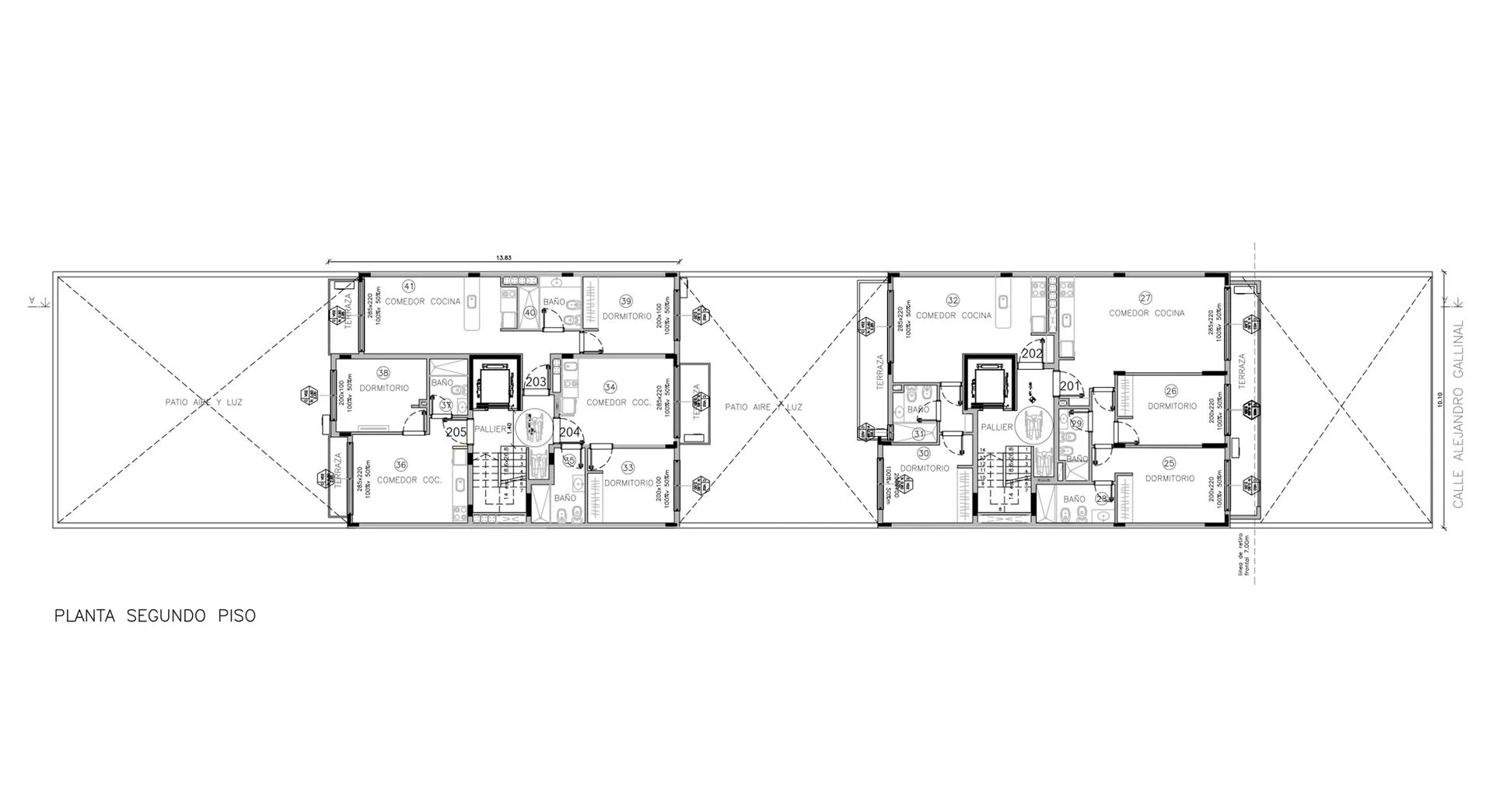
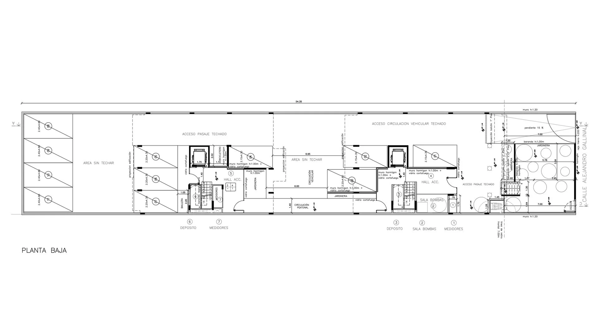
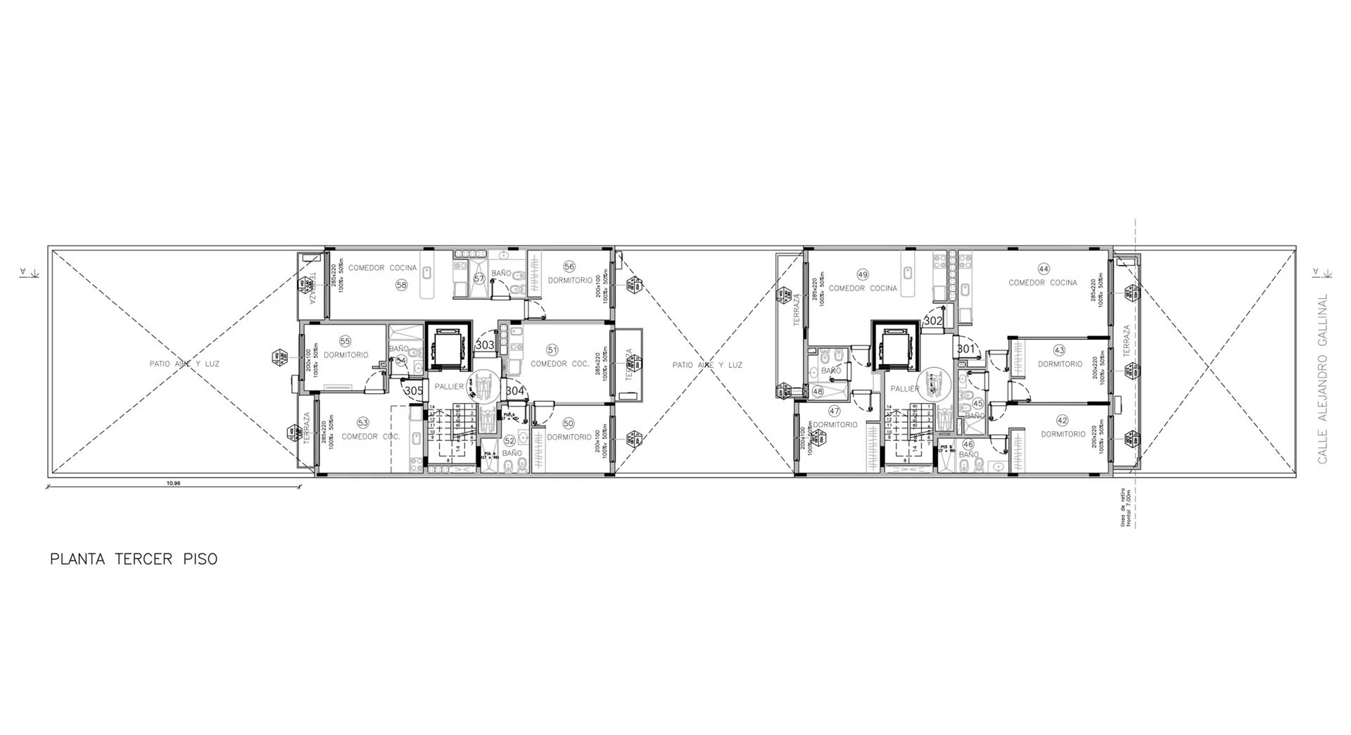
anterior), y se vende con un proyecto de vivienda APROBADO por Intendencia de Montevideo, que se conforma de dos edificios de tres pisos con un ascensor por edificio.
Este proyecto permite la construcción de 15 viviendas, 12 de 1 dormitorio y 3 de 2 dormitorios y 11 lugares de cochera, ideal para inversores interesados en el sector residencial.

LA GRAN VENTAJA DE ESTA OPORTUNIDAD ES QUE EL PROYECTO ESTÁ APROBADO CON LA NORMATIVA ANTERIOR, QUE MEJORA LAS CONDICIONES CON RESPECTO A LA CANTIDAD DE METROS CUADRADOS PARA CONSTRUIR. Con la nueva normativa se puede construir hasta 13,50m aplicando retiro bilateral y profundidad de 25m.
Tiene aprobación ante SIME para no poner rampa peatonal, y usar una plataforma salvaescalera.

La ubicación es inmejorable, a solo unos minutos de la rambla, el molino de Pérez, el club Malvín, y centros comerciales, lo que garantiza alta demanda y rentabilidad.

No dejes pasar esta oportunidad para desarrollar un proyecto de alto potencial en una de las áreas más cotizadas de Montevideo.

Contáctanos para más detalles.





Cada Oficina es de propiedad, gestión y desarrollo independiente
La presente publicación describe las características esenciales del inmueble, debiéndose consultar al responsable de la operación por la eventual actualización de las medidas, descripciones arquitectónicas y funcionales, servicios, impuestos, precios y demás información, cuyos valores son aproximados.

Характеристики

ID

Тип

Площадь, м²

Вся постройка, м²

1280149

Продажа

543

543

Земля, м²

Ванные комнаты

Ссылка

Обновлено

5432

1

Z7B8AE

2025-10-14

Район

370к U$S

Район

Montevideo

Адрес

Malvín, Gallinal 1600

Дополнительные действия

RE/MAX
099001901
Похожие объекты
Загрузка...
Зарабатывайте деньги привлекая коллег!

Приглашайте других агентов по недвижимости и получайте 10% комиссии с каждого их продвижения.