U$S 146,750

~12,300,000 ₽ / U$S 2,367/m2

Спальни

1

Ванные комнаты

1

Площадь, м²

62

Год постройки

2026

Тип

Квартиры

более

5 месяцев назад

Просмотры

245

Venta Ley Vis - Apartamento Carrasco -

Corredor Responsable: -
Contacto: Norma Bueno
Venta Carrasco Parkside!
UNIDAD 002
VENTA CON LEY PROMOVIDA DE VIVIENDA


Nuevo proyecto ubicado en una de las zonas más exclusivas y deseadas de la ciudad.
A metros del Estadio Charrúa y metros de zona de servicios y shoppings de Carrasco.


Puntos destacados del proyecto
- Excelente ubicación y conectividad, a metros de Portones Shopping.
- Terminaciones de gran calidad.
- Terrazas o patios propios en cada unidad.
- Cocheras opcionales.
- Mínimos costos de gastos comunes.
- Proyecto promovido por MVOTMA ley 18.795.
- Video vigilancia.
- Vistas despejadas en todas las unidades.


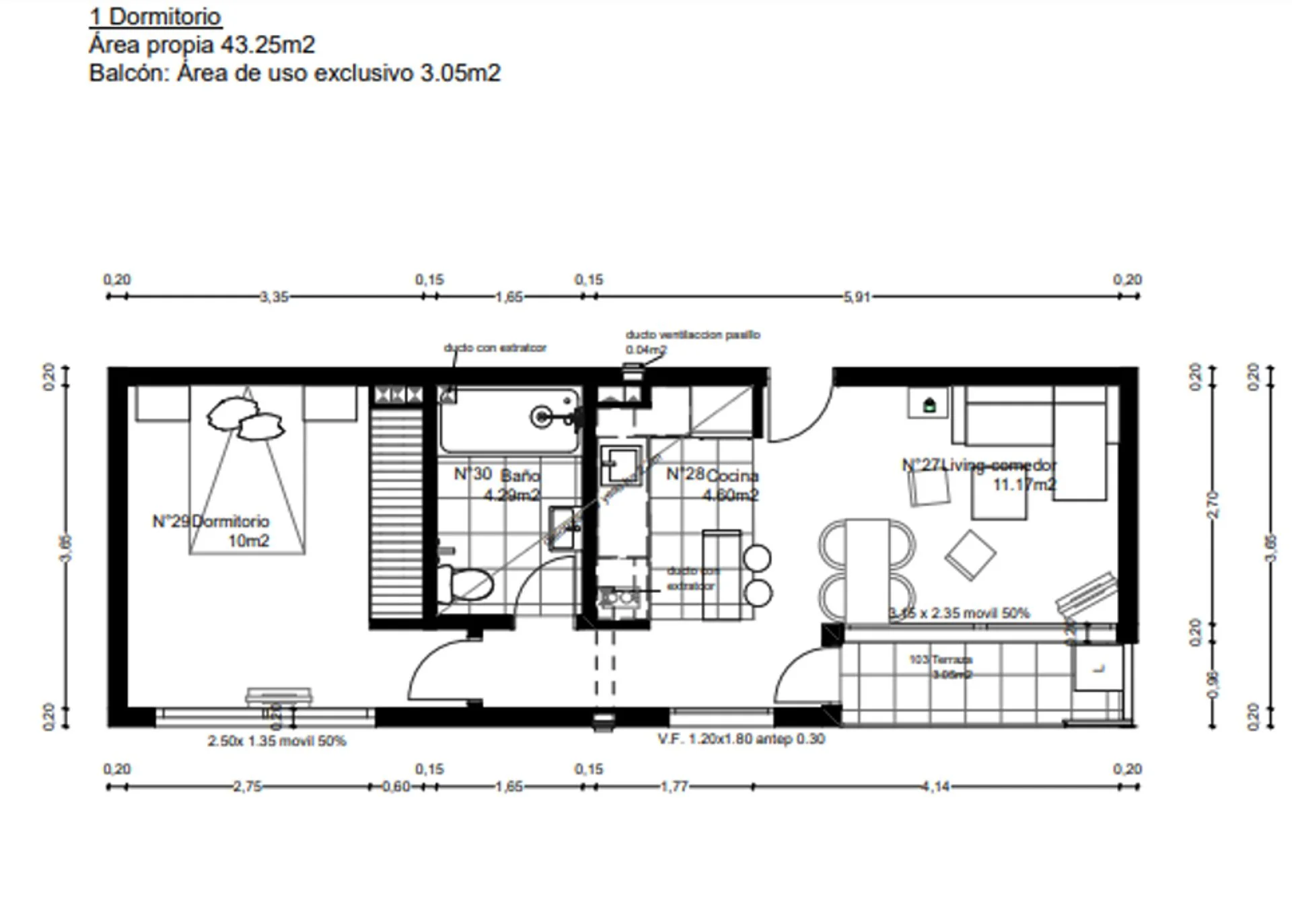
El edificio cuenta con 27 unidades de varias Tipologías, apartamentos de 1, 2 y 3 dormitorios, todos diseñados con acabados de alta gama y atención a cada detalle.


Financiación: Flexibilidad en planes de pago y opciones de financiación directa con la desarrolladora.

BENEFICIOS FISCALES PARA EL COMPRADOR
Ley 18.795 de inversión privada en vivienda de interés social:
“Ley de Vivienda Promovida”
Exoneración de Impuestos:
- Exoneración del IVA en el precio de compra.
- Exoneración de ITP por la primera enajenación de la vivienda.
o Esto a su vez reduce los costos de escrituración.
- Exoneración del Impuesto a la Renta (IRPF/IRAE) de los alquileres por 10 años.
- Exoneración del Impuesto al Patrimonio por 10 años.


Plusvalía: Una inversión segura en una zona con alta demanda y constante revalorización, asegurando una excelente rentabilidad a futuro.

El edificio cuenta con:
Cocheras abiertas: U$S 21000
Cocheras techadas U$S 25200
Cocheras grandes U$S 27825
Gastos de conexión 4%


No pierdas la oportunidad de ser parte de este exclusivo proyecto.
Carrasco Parkside te ofrece no solo una vivienda, sino un estilo de vida privilegiado.
Fecha estimada de entrega febrero 2027
Contáctanos hoy mismo para más información de otras unidades disponibles y asegúrate de reservar tu lugar en este inigualable desarrollo. ¡Tu futuro hogar te espera!

Compartimos con todos los colegas


Cada Oficina es de propiedad, gestión y desarrollo independiente
La presente publicación describe las características esenciales del inmueble, debiéndose consultar al responsable de la operación por la eventual actualización de las medidas, descripciones arquitectónicas y funcionales, servicios, impuestos, precios y demás información, cuyos valores son aproximados.

Характеристики

ID

Тип

Площадь, м²

Вся постройка, м²

Земля, м²

1232102

Продажа

62

62

622

Спальни

Ванные комнаты

Год постройки

Ссылка

Обновлено

1

1

2026

Y84CD1

2025-08-29

Район

146.8к U$S

Район

Montevideo

Адрес

Carrasco, Alamos 2200

Удобства

Зона барбекю

Дополнительные действия

Norma Bueno Re/Max
099...582
598...582
Похожие объекты
Загрузка...
Зарабатывайте деньги привлекая коллег!

Приглашайте других агентов по недвижимости и получайте 10% комиссии с каждого их продвижения.