Malvín, Av Italia Y Candelaria

U$S 126,720

~10,600,000 ₽ / U$S 3,017/m2

Спальни

1

Ванные комнаты

1

Гараж

1

Площадь, м²

42

Год постройки

2026

Тип

Квартиры

более

4 месяцев назад

Просмотры

393

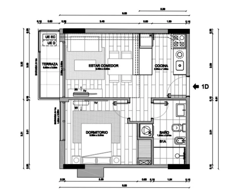
Venta Departamento 1 Dormitorio Terraza Barbacoa - Malvín

Venta Departamento 1 Dormitorio.
Living comedor salida a Terraza.
Dormitorio.
Cocina integrada.
Baño completo.
Garaje opcional.

El proyecto se encuentra amparado por la ley de vivienda promovida Ley 18.795 por lo que contará con:
Exoneración del IVA
Exoneración del ITP (2% sobre el valor de catastro)
Exoneración de IRAE/IRPF a las rentas generadas de los alquileres por 10 años según Normativa vigente al 1/9/2019*
Exoneración del Impuesto al Patrimonio por 10 años*
*No aplica para Monoambientes

AMENITIES:

PLANTA BAJA:
Lobby de acceso en cada Torre.

NIVEL 3:
Torre 2
Dos Parrilleros exteriores pergolados.
SSHH accesible.

NIVEL 6:
Espacio exterior pergolado, con livings y sectores enjardinados.
Pet garden.
Área con equipamiento exterior fitness.
Juegos exteriores para niños.

Torre 1
Dos Parrilleros exteriores pergolados.
SSHH accesible.

ROOF-TOP:
Terrazas exteriores solárium, con excepcionales vistas panorámicas del entorno y la ciudad.
Dos Salones Barbacoa con parrillero y cocina integrada, totalmente equipados para funcionar como espacio de cowork.

En Nivel 14 (Torre 2) y en Nivel 18 (Torre 1).
Zen garden con orientación norte en ambas torres.










Todos los datos son facilitados por los propietarios, la empresa no se hace responsable de los mismos

Характеристики

ID

Тип

Площадь, м²

Вся постройка, м²

Земля, м²

Спальни

1241506

Продажа

42

39

422

1

Ванные комнаты

Гараж

Год постройки

Ссылка

Обновлено

1

1

2026

LA945E

2025-09-10

Район

126.7к U$S

Район

Montevideo

Адрес

Malvín, Av Italia Y Candelaria

Удобства

Терраса

Лифт

Спортзал

Игровая комната

WiFi

Кабельное телевидение

Гостиная-столовая

Разрешены домашние животные

Дополнительные действия

Afilia Propiedades
096110044
Похожие объекты
Загрузка...
Зарабатывайте деньги привлекая коллег!

Приглашайте других агентов по недвижимости и получайте 10% комиссии с каждого их продвижения.