Pocitos, Doctor Enrique Muñoz 900

U$S 42,000

U$S 2,100/m2

Ванные комнаты

1

Площадь, м²

20

Год постройки

2022

Тип

Бизнес

Опубликовано

4 дня назад

Просмотры

14

Venta De Cochera Amplia A Metros De Ort, Pocitos.

Corredor Responsable: -
Contacto: Gabriela Sierra
Venta de cochera en un punto de gran demanda en el barrio de Pocitos. Ubicado en el edificio Yass Pocitos sobre la calle Enrique Muñoz. Zona de colegios y Universidades, con alta demanda de estacionamientos.

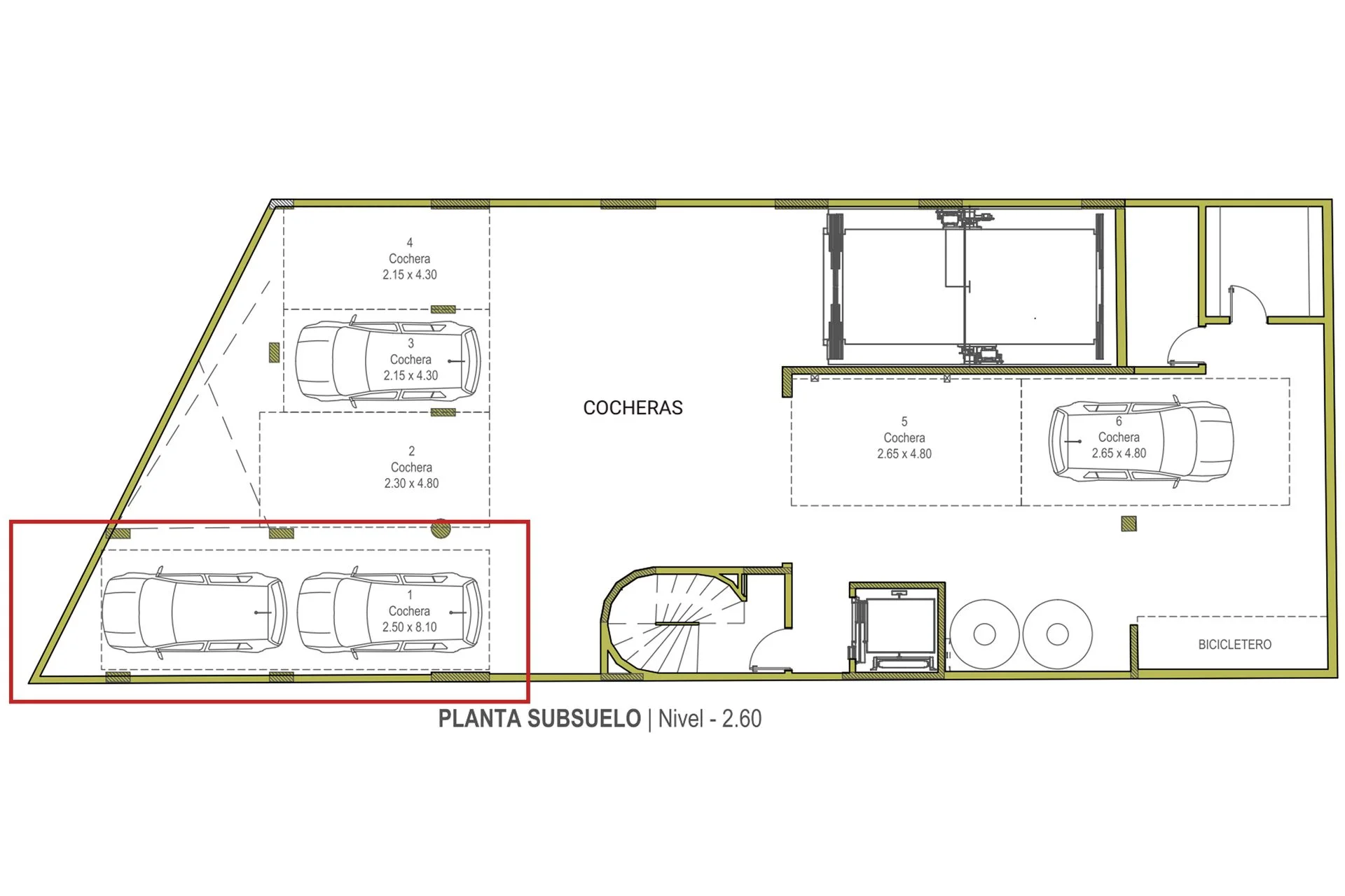
Cochera ubicada en el subsuelo del edificio. El acceso a la misma es través del portón exterior del edificio y cuenta con un ascensor montacargas que conecta con los distintos niveles de estacionamiento.

Dimensiones: 2.5 x 8.10

Gastos comunes: $ 3.390
Tributos domiciliarios bimensuales: $ 1.558
Contribución anual: $ 1600

Consulte por bauleras disponibles.
Cada Oficina es de propiedad, gestión y desarrollo independiente
La presente publicación describe las características esenciales del inmueble, debiéndose consultar al responsable de la operación por la eventual actualización de las medidas, descripciones arquitectónicas y funcionales, servicios, impuestos, precios y demás información, cuyos valores son aproximados.

Характеристики

ID

Тип

Площадь, м²

Вся постройка, м²

1283294

Продажа

20

20

Ванные комнаты

Год постройки

Ссылка

Обновлено

1

2022

N8C919

2025-10-16

Район

42к U$S

Район

Montevideo

Адрес

Pocitos, Doctor Enrique Muñoz 900

Дополнительные действия

RE/MAX Focus
Похожие объекты
Загрузка...
Зарабатывайте деньги привлекая коллег!

Приглашайте других агентов по недвижимости и получайте 10% комиссии с каждого их продвижения.