Pocitos, Doctor Enrique Muñoz 900

U$S 30,000

Ванные комнаты

1

Площадь, м²

9

Год постройки

2022

Тип

Бизнес

более

4 месяцев назад

Просмотры

428

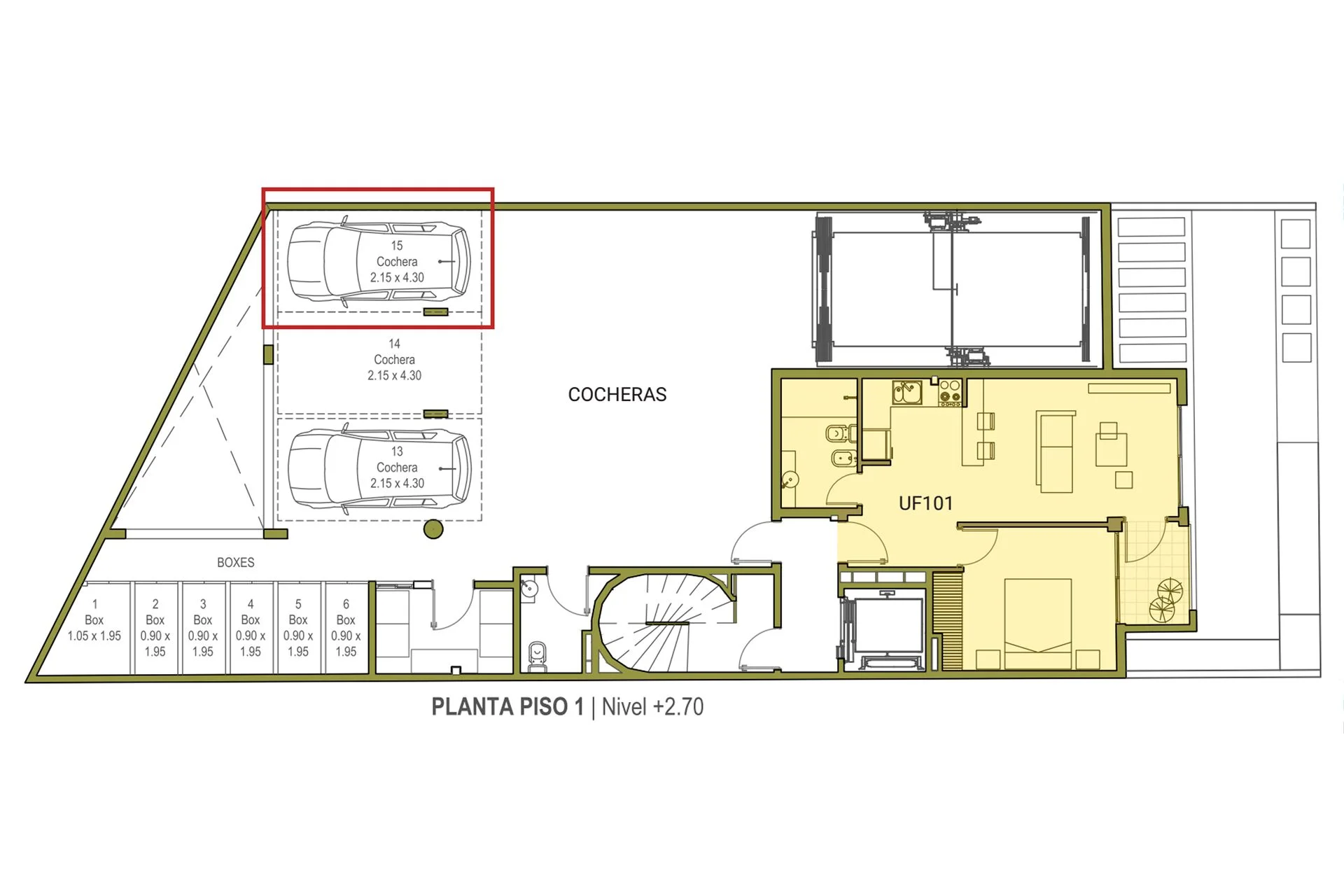
Venta De Cochera A Metros De La Ort, Pocitos.

Corredor Responsable: -
Contacto: Gabriela Sierra
Venta de cochera en un punto de gran demanda en el barrio de Pocitos. 

Ubicado en el edificio Yass Pocitos sobre la calle Enrique Muñoz. Zona de colegios y Universidades, con alta demanda de estacionamientos.

Cochera ubicada en el primer piso, de muy fácil acceso. El acceso a la misma es través del portón exterior del edificio y cuenta con un ascensor montacargas que conecta con los distintos niveles de estacionamiento. Esta unidad de cochera se encuentra de frente saliendo del ascensor.

Dimensiones: 2.15 x 4.30m

Gastos comunes $ 1526
Tributos domiciliarios bimensuales: $ 1558
Contribución anual $1500

Consulte por bauleras disponibles.

Cada Oficina es de propiedad, gestión y desarrollo independiente
La presente publicación describe las características esenciales del inmueble, debiéndose consultar al responsable de la operación por la eventual actualización de las medidas, descripciones arquitectónicas y funcionales, servicios, impuestos, precios y demás información, cuyos valores son aproximados.

Характеристики

ID

Тип

Площадь, м²

Вся постройка, м²

1260655

Аренда

9

9

Ванные комнаты

Год постройки

Ссылка

Обновлено

1

2022

Y14775

2025-09-28

Район

30к U$S

Район

Montevideo

Адрес

Pocitos, Doctor Enrique Muñoz 900

Дополнительные действия

RE/MAX Focus
Похожие объекты
Загрузка...
Зарабатывайте деньги привлекая коллег!

Приглашайте других агентов по недвижимости и получайте 10% комиссии с каждого их продвижения.