La Blanqueada, Avenida General José Garibaldi 2400

U$S 129,000

~9,940,000 ₽ / U$S 2,867/m2

Спальни

1

Ванные комнаты

1

Площадь, м²

45

Год постройки

2025

Тип

Квартиры

более

3 месяцев назад

Просмотры

593

Venta Apto 1 Dormitorio, La Blanqueada

Corredor Responsable: -
Contacto: Yennifer Bragunde
DEPARTAMENTO DE 2 AMBIENTES EN CONSTRUCCION EN LA BLANQUEADA, MONTEVIDEO

ESTRENA ABRIL 2026

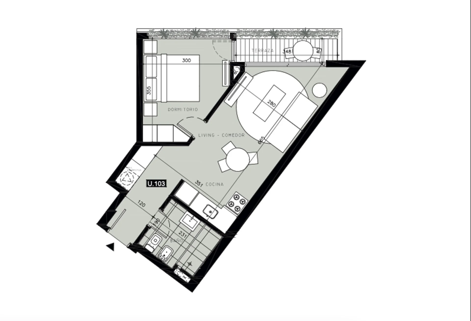
Unidad 103 // Este departamento se encuentra en construcción en un edificio de 5 pisos ubicado sobre la Avenida General José Garibaldi, en el barrio de La Blanqueada.

La unidad es al frente en un primer piso.
Al ingresar, se accede a un amplio espacio de living-comedor con cocina integrada y salida a la terraza. La cocina cuenta con muebles aéreos y bajo mesada de alta calidad, campana extractora y aire acondicionado ya instalado en el living, completando el sector social.

El dormitorio cuenta con placares, pre-instalación para aire acondicionado y persianas. El baño, con diseño sofisticado, incluye muebles con espejo y revestimientos de porcelanato.

El edificio cuenta con ascensor, salón de usos múltiples en el último piso con parrilla cerrada y parrillero exterior, ofreciendo una vista panorámica a toda la ciudad.

Amparado bajo la Ley de Vivienda Promovida 18.795, este departamento ofrece beneficios impositivos como exoneración de IVA, Impuesto al Patrimonio e Impuesto a las Transmisiones Patrimoniales.

Las formas de pago disponibles incluyen financiación durante la obra y con banco, con diferentes porcentajes de reserva, compromiso, durante la obra y a la ocupación.

Además, hay garajes disponibles desde USD 19.000.

4% de gastos de ocupación.

CONSULTAME POR OTRA TIPOLOGIA O POR UNIDADES DE DOS DORMITORIOS

COMPARTIMOS CON TODOS LOS COLEGAS

Comisión inmobiliaria 3% mas IVA
Cada Oficina es de propiedad, gestión y desarrollo independiente
La presente publicación describe las características esenciales del inmueble, debiéndose consultar al responsable de la operación por la eventual actualización de las medidas, descripciones arquitectónicas y funcionales, servicios, impuestos, precios y demás información, cuyos valores son aproximados.

Характеристики

ID

Тип

Площадь, м²

Спальни

1293796

Продажа

45

1

Ванные комнаты

Год постройки

Ссылка

Обновлено

1

2025

Q6A7A5

2025-10-22

Район

129к U$S

Район

Montevideo

Адрес

La Blanqueada, Avenida General José Garibaldi 2400

Дополнительные действия

RE/MAX Focus
Похожие объекты
Загрузка...
Зарабатывайте деньги привлекая коллег!

Приглашайте других агентов по недвижимости и получайте 10% комиссии с каждого их продвижения.