Cordón, Mercedes Y Magallanes

U$S 146,840

~12,300,000 ₽ / U$S 1,907/m2

Спальни

1

Ванные комнаты

1

Площадь, м²

77

Год постройки

2027

Тип

Квартиры

более

4 месяцев назад

Просмотры

325

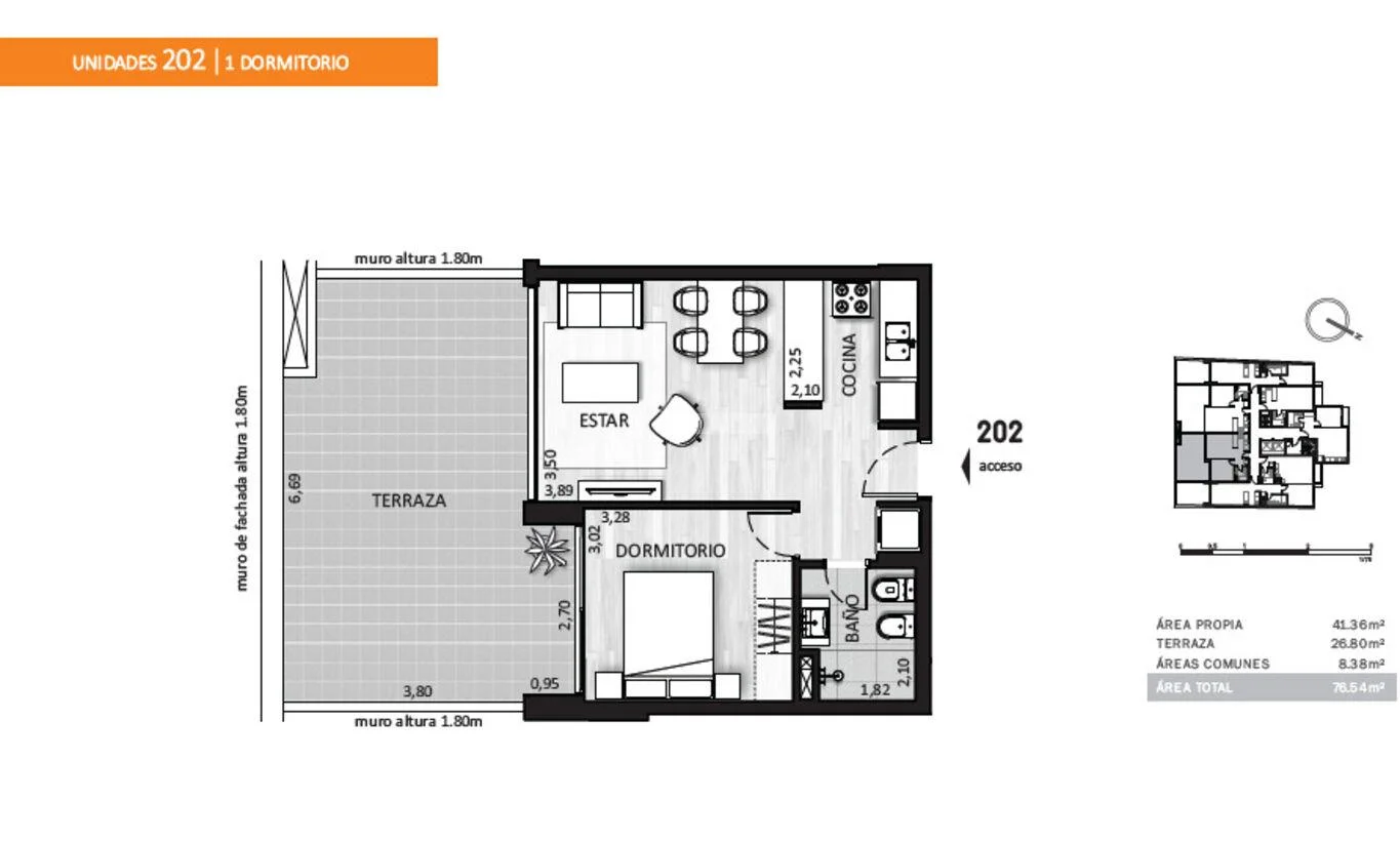
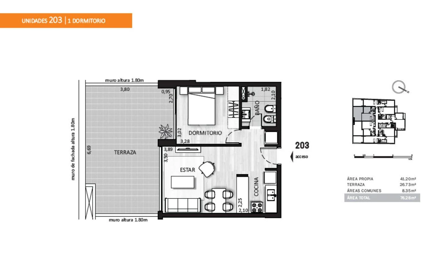
Venta Apartamento 1 Dormitorio CordÓn Mercedes Y Magallanes Ed. Soho Mercedes Tipo Penthouse Terraza

- INMOBILIARIA MONYMAR -



MERCEDES Y MAGALLANES... EDIFICIO SOHO MERCEDES... PRÓXIMO A 18 DE JULIO, PLAZA DE LOS BOMBEROS Y A PASOS DE LA UNIVERSIDAD... A ESTRENAR FEBRERO 2027... TIPO PENTHOUSE AL FRENTE... Living comedor con cocina integrada con muebles bajo mesada incluidos, salida a GRAN TERRAZA AL FRENTE DE 26,80m2 aprox. 1 DORMITORIO con cortina de enrollar al frente con salida a la terraza. 1 baño completo. Previsión para aire acondicionado. Entre sus amenities se encuentran: GIMNASIO, TERRAZA CON PARRILLERO Y COWORK. GARAJE OPCIONAL.



PRECIO DE VENTA:

202 - 203) 146.840 -

TODAS LAS UNIDADES + GARAJE OPCIONAL U$S 19.570 + 4,5% GASTOS DE OCUPACIÓN.



EDIFICIO AMPARADO POR LA LEY 18795 DE LA AGENCIA NACIONAL DE VIVIENDA Y CON TODOS LOS BENEFICIOS PARA LOS COMPRADORES OTORGADOS POR DICHA LEY:

1) Exoneración del IVA del precio de compra;

2) Exoneración del pago de ITP (2% sobre valor de catastro),

3) Exoneración del impuesto al patrimonio por 10 años,

4) Exoneración del impuesto a la renta (IRPF O IRAE) por 10 años.



METRAJES:

202) 41,36m2 área propia c/muros + 8,38m2 área común + 26,80m2 terraza = 76,54m2 totales.

203) 41,20m2 área propia c/muros + 8,35m2 área común + 26,73m2 terraza = 76,28m2 totales.



FORMAS DE PAGO:

10% al boleto de reserva.

50% al compromiso.

30% durante la obra.

10% al momento de la entrega.



CONSULTE POR OTRAS UNIDADES DISPONIBLES.



(ap 6242)


Характеристики

ID

Тип

Площадь, м²

Вся постройка, м²

Спальни

1222524

Продажа

77

41

1

Ванные комнаты

Год постройки

Ссылка

Обновлено

1

2027

E769BF

2025-10-08

Район

146.8к U$S

Район

Montevideo

Адрес

Cordón, Mercedes Y Magallanes

Удобства

Индивидуальное отопление

Зона барбекю

Дополнительные действия

Monymar
+59...481 +59...115
598...115
Похожие объекты
Загрузка...
Зарабатывайте деньги привлекая коллег!

Приглашайте других агентов по недвижимости и получайте 10% комиссии с каждого их продвижения.