Cordón, Mercedes Y Magallanes

U$S 140,595

~11,800,000 ₽ / U$S 2,305/m2

Спальни

1

Ванные комнаты

1

Площадь, м²

61

Год постройки

2027

Тип

Квартиры

более

4 месяцев назад

Просмотры

253

Venta Apartamento 1 Dormitorio CordÓn Mercedes Y Magallanes Ed. Soho Mercedes Terraza Al Frente

- INMOBILIARIA MONYMAR -



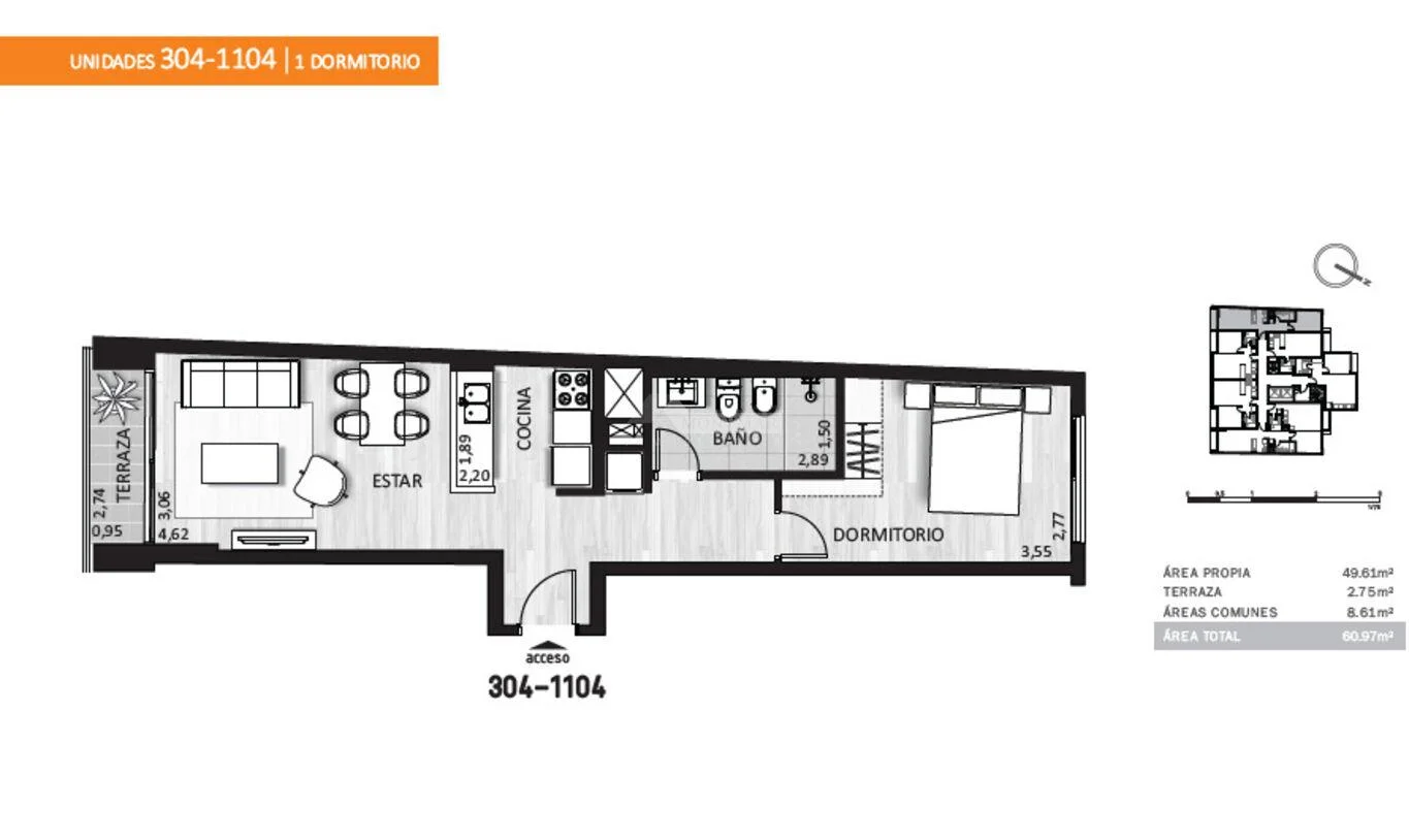
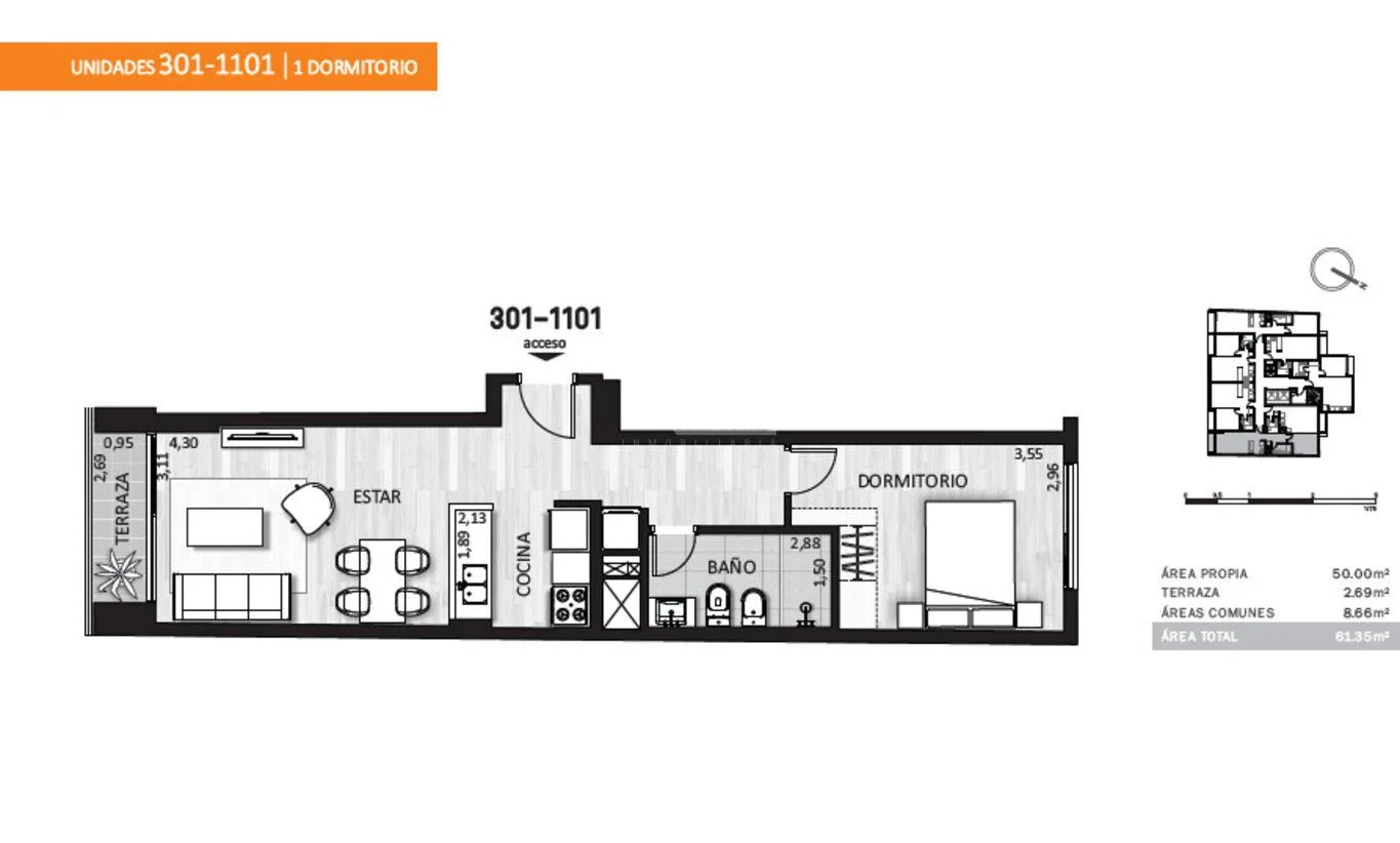
MERCEDES Y MAGALLANES... EDIFICIO SOHO MERCEDES... PRÓXIMO A 18 DE JULIO, PLAZA DE LOS BOMBEROS Y A PASOS DE LA UNIVERSIDAD... A ESTRENAR FEBRERO 2027... AL FRENTE... Living comedor con cocina integrada con muebles bajo mesada incluidos, salida a TERRAZA AL FRENTE. 1 DORMITORIO con cortina de enrollar. 1 baño completo. Previsión para aire acondicionado. Entre sus amenities se encuentran: GIMNASIO, TERRAZA CON PARRILLERO Y COWORK. GARAJE OPCIONAL.



PRECIO DE VENTA:

301 - 304) 140.595 -

601 - 604) 143.479 -

701) 144.509 -

801) 145.539 -

904) 146.569 -

1001 - 1004) 147.599 -

1101 - 1104) 148.629 -

TODAS LAS UNIDADES + GARAJE OPCIONAL U$S 19.570 + 4,5% GASTOS DE OCUPACIÓN.



EDIFICIO AMPARADO POR LA LEY 18795 DE LA AGENCIA NACIONAL DE VIVIENDA Y CON TODOS LOS BENEFICIOS PARA LOS COMPRADORES OTORGADOS POR DICHA LEY:

1) Exoneración del IVA del precio de compra;

2) Exoneración del pago de ITP (2% sobre valor de catastro),

3) Exoneración del impuesto al patrimonio por 10 años,

4) Exoneración del impuesto a la renta (IRPF O IRAE) por 10 años.



METRAJES:

301 a 1101) 50,00m2 área propia c/muros + 8,66m2 área común + 2,69m2 terraza = 61,35m2 totales.

304 a 1104) 49,61m2 área propia c/muros + 8,61m2 área común + 2,75m2 terraza = 60,97m2 totales.



FORMAS DE PAGO:

10% al boleto de reserva.

50% al compromiso.

30% durante la obra.

10% al momento de la entrega.



CONSULTE POR OTRAS UNIDADES DISPONIBLES.



(ap 6245)


Характеристики

ID

Тип

Площадь, м²

Вся постройка, м²

Спальни

1222520

Продажа

61

50

1

Ванные комнаты

Год постройки

Ссылка

Обновлено

1

2027

UDAC0D

2025-10-08

Район

140.6к U$S

Район

Montevideo

Адрес

Cordón, Mercedes Y Magallanes

Удобства

Индивидуальное отопление

Зона барбекю

Дополнительные действия

Monymar
+59...481 +59...115
598...115
Похожие объекты
Загрузка...
Зарабатывайте деньги привлекая коллег!

Приглашайте других агентов по недвижимости и получайте 10% комиссии с каждого их продвижения.