Centro, Canelones 1300

U$S 134,500

~10,500,000 ₽ / U$S 2,802/m2

Спальни

1

Ванные комнаты

1

Площадь, м²

48

Год постройки

2024

Тип

Квартиры

более

1 недели назад

Просмотры

35

Venta Apartamento A Estrenar 1 Dorm Con Renta

Corredor Responsable: -
Contacto: Fernando Pini
VENTA APARTAMENTO A ESTRENAR 1 DORMITORIO CON RENTA

Hermoso apartamento a estrenar con entrega inmediata y alquilado
1 dormitorio + balcón con vista al frente.
Sobre la calle Canelones esq. Ejido

USD 135.000
Gastos Comunes $ 5.300 al mes
Alquiler mensual: $ 26.000

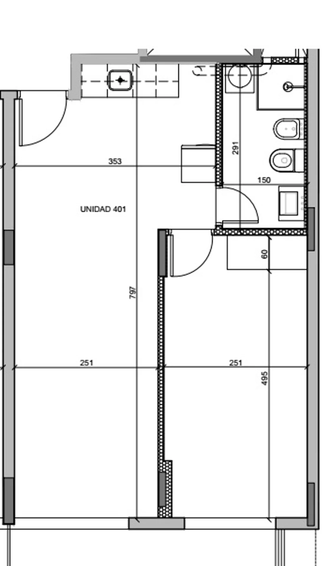
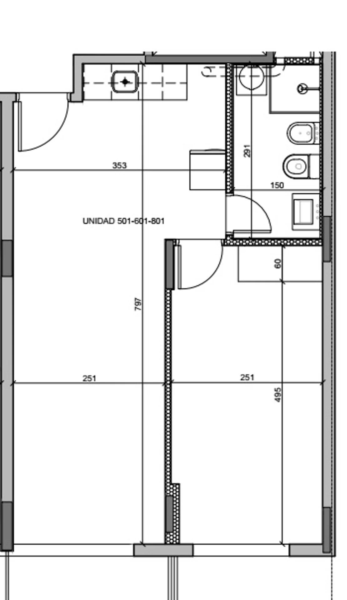
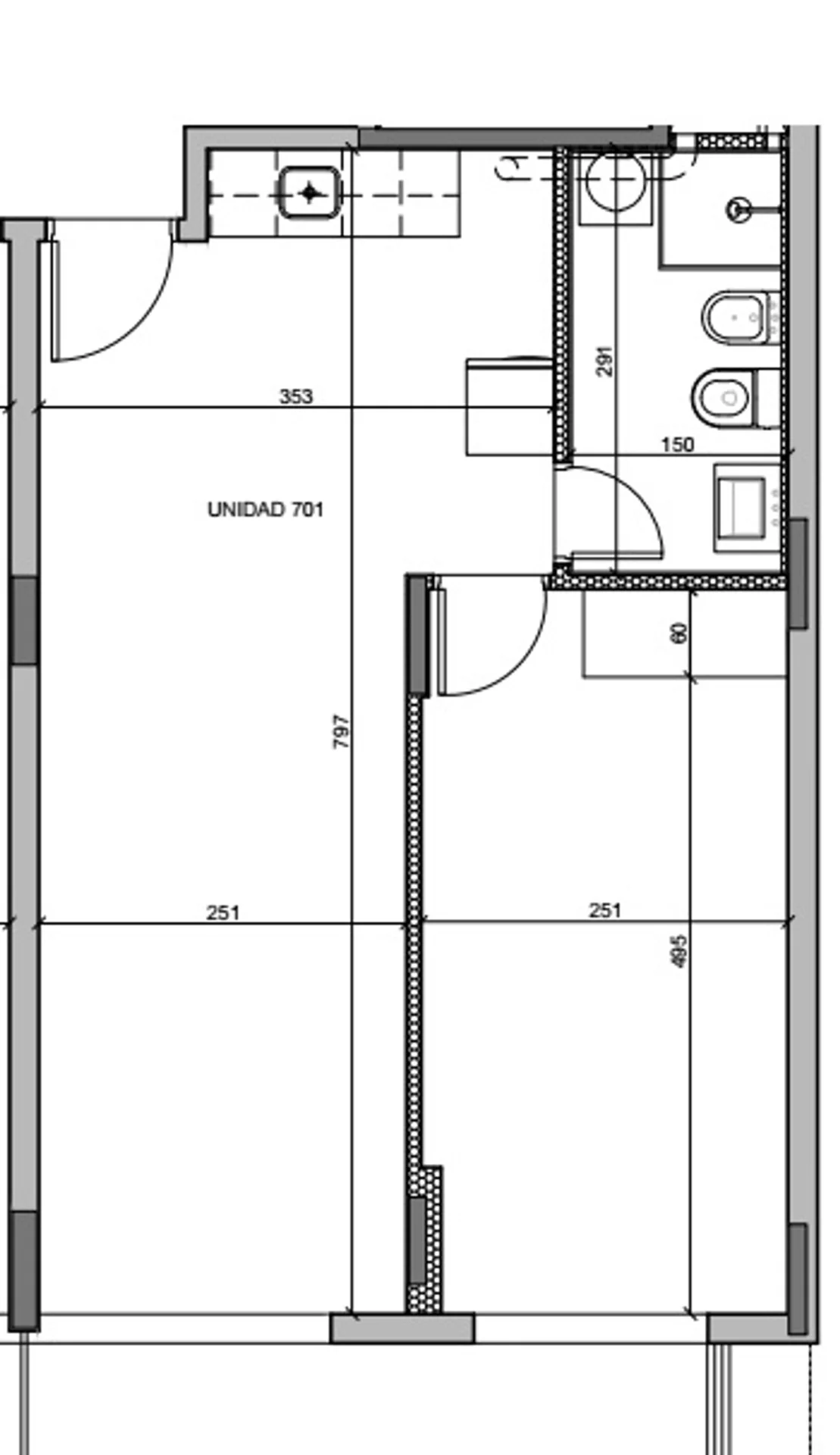
Unidad 502
44 m2 interiores
3.35/4.44 m2 terraza.

Muy buenas terminaciones, pisos de tabla vinílica alto tránsito, aberturas de aluminio anodizado con DVH.

Al acceder nos encontramos con el living comedor con balcón. Cocina integrada con muebles bajo mesada, aéreo y campana extractora. Baño completo con instalación para lavarropa. Cómodo dormitorio, incluye placard con espejo empotrado.

Amenities: Barbacoa con parrillero y hermosa vista panorámica. Bicicletero libre.

Beneficios de la Ley de Vivienda Promovida.
Opción garajes ( USD 19000 + 3% Ocupación)
Conexiones 3%

Comisión inmobiliaria 3% más IVA.

Cada Oficina es de propiedad, gestión y desarrollo independiente
La presente publicación describe las características esenciales del inmueble, debiéndose consultar al responsable de la operación por la eventual actualización de las medidas, descripciones arquitectónicas y funcionales, servicios, impuestos, precios y demás información, cuyos valores son aproximados.

Характеристики

ID

Тип

Площадь, м²

Спальни

1471089

Продажа

48

1

Ванные комнаты

Год постройки

Ссылка

Обновлено

1

2024

O1B051

2026-04-05

Район

134.5к U$S

Район

Montevideo

Адрес

Centro, Canelones 1300

Дополнительные действия

RE/MAX
59895148431
Похожие объекты
Загрузка...
Зарабатывайте деньги привлекая коллег!

Приглашайте других агентов по недвижимости и получайте 10% комиссии с каждого их продвижения.