Centro, Canelones 900

U$S 1,400,000

U$S 2,345/m2

Ванные комнаты

1

Площадь, м²

597

Тип

Земля

более

1 недели назад

Просмотры

40

Vendo Terreno En Centro Con Proyecto Aprobado

Corredor Responsable: -
Contacto: Laura Fleitas
IDEAL PARA DESARROLLADORES E INVERSORES!

EXCELENTE UBICACION cerca de Teatro Solís, Plaza Independencia y Rambla de Montevideo.
Calle Canelones entre Ferreira Aldunate y Convencion.

Son dos padrones unidos, hay plano de mensura correspondiente.

FRENTE: 23,30m
PROFUNDIDAD: 25,55m
AREA TOTAL TERRENO: 597,04m2.

Proyecto YA APROBADO EN IMM !!

Son 6.696m2 vendibles incluidos Palliers, circulaciones y area de cocheras.
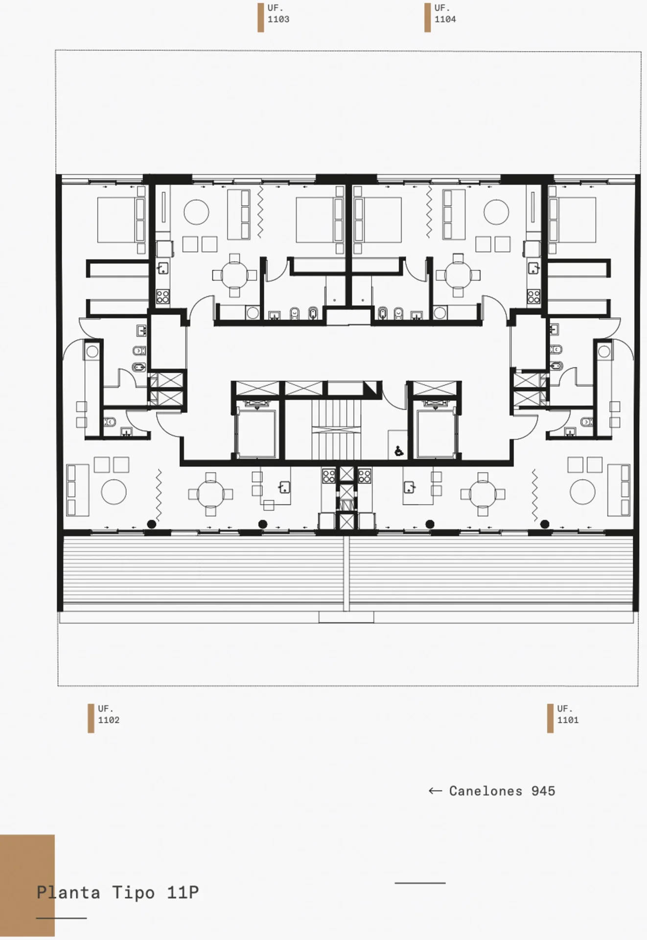
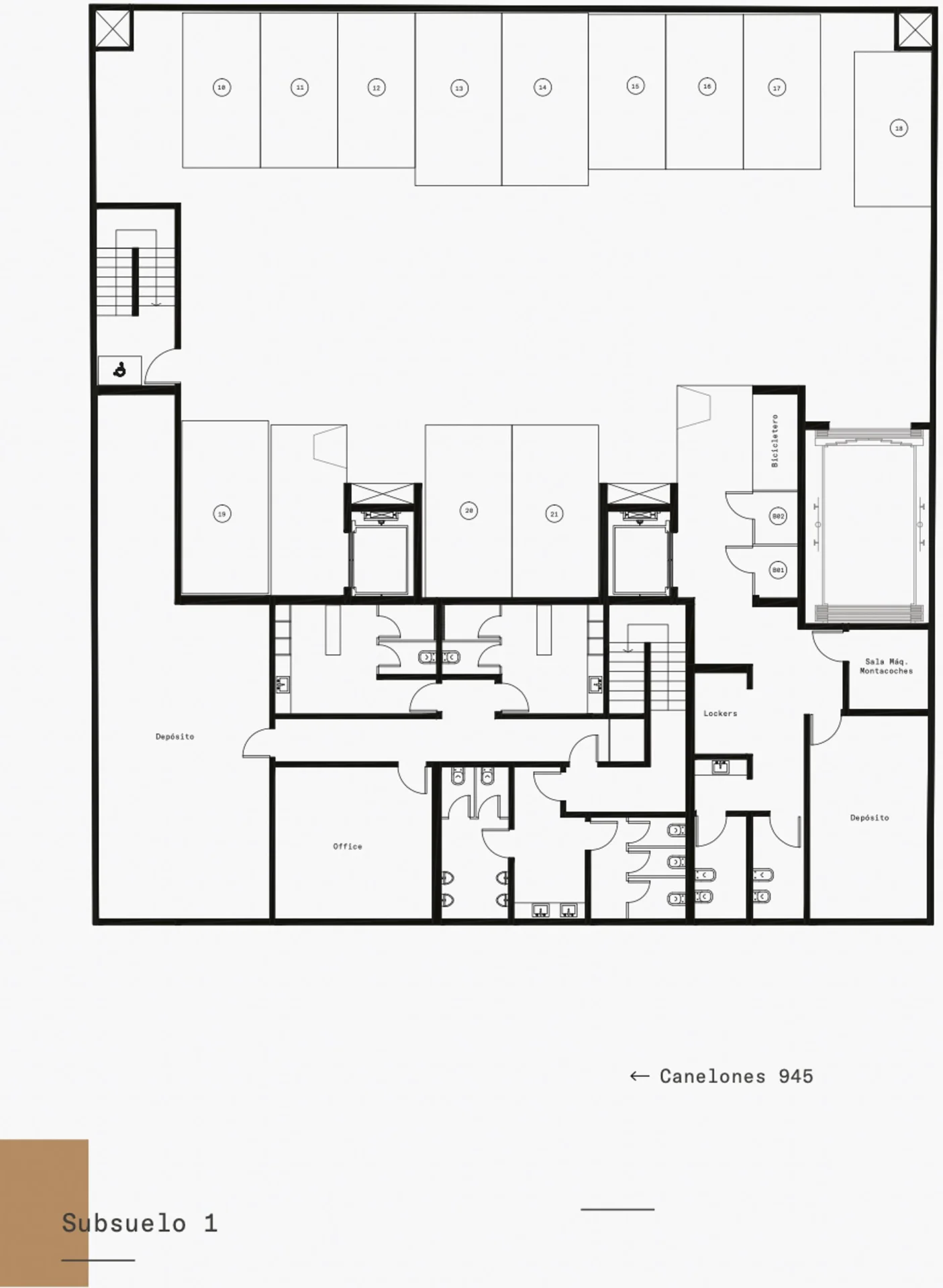
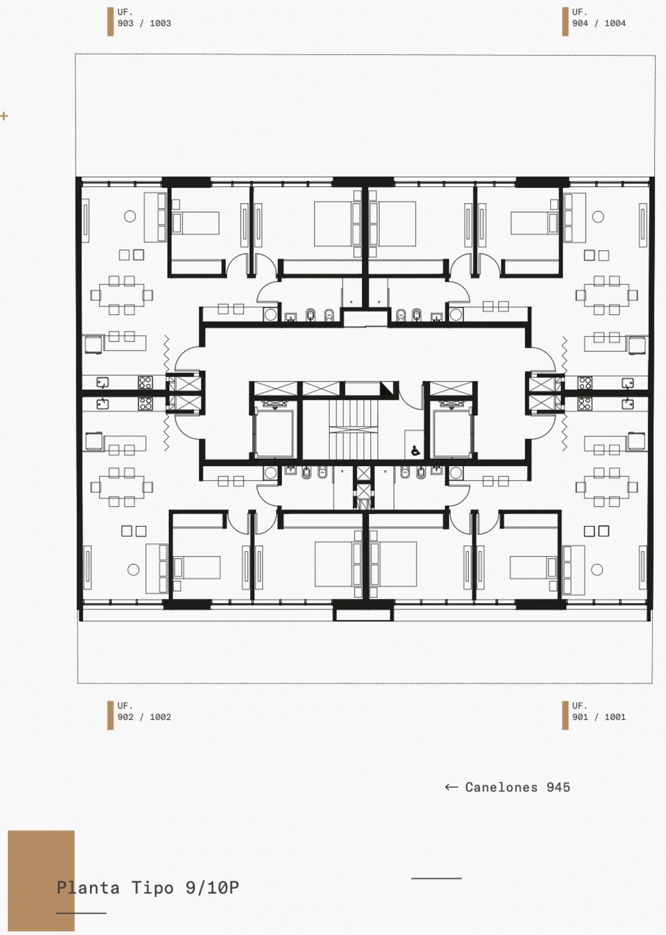
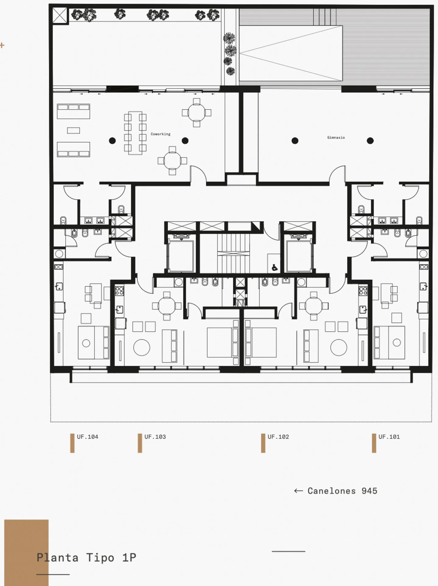
Planta baja + 2 subsuelos + 11 niveles.

PROYECTO:

72 unidades. Monoambientes / 1 dormitorio / 2 dormitorios.
37 garajes
Restaurante en Planta Baja, manteniendo fachada de casona existente.
Salon de Usos Multiples y Terraza en piso 12.
2 ascensores.
Gimnasio.
Espacios de Co-living y Co-working
Laundry

Consulte!!

Tenemos planilla de áreas, brochure lista y memorias descriptivas de terminaciones.

COMPARTIMOS CON TODOS LOS COLEGAS.

Comision inmobiliaria 3% + iva.



Cada Oficina es de propiedad, gestión y desarrollo independiente
La presente publicación describe las características esenciales del inmueble, debiéndose consultar al responsable de la operación por la eventual actualización de las medidas, descripciones arquitectónicas y funcionales, servicios, impuestos, precios y demás información, cuyos valores son aproximados.

Характеристики

ID

Тип

Площадь, м²

Земля, м²

1339996

Продажа

597

5972

Ванные комнаты

Ссылка

Обновлено

1

OEA09D

2025-12-04

Район

1.4м U$S

Район

Montevideo

Адрес

Centro, Canelones 900

Дополнительные действия

RE/MAX
099001901
Похожие объекты
Загрузка...
Зарабатывайте деньги привлекая коллег!

Приглашайте других агентов по недвижимости и получайте 10% комиссии с каждого их продвижения.