Palermo, Barrios Amorin 1168/201 Esq. Maldonado

U$S 126,621

U$S 2,814/m2

Спальни

1

Ванные комнаты

1

Гараж

1

Площадь, м²

45

Тип

Квартиры

более

2 месяцев назад

Просмотры

337

Prés Barrios Amorín

¿Dónde se encuentra ubicado?

  • Sobre la calle Barrios Amorin, en barrio Palermo
  • Zona universitaria
  • Conectado a una excelente red de servicios y variada oferta gastronómica
  • A seis cuadras de la Rambla de Montevideo

El Proyecto:

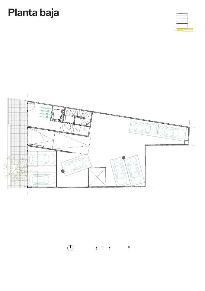
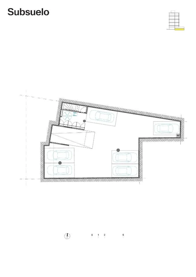
Près Barrios Amorín es un edificio con subsuelo, planta baja, y 10 niveles. Teniendo en su último piso, un salón común, patios con vegetación, mirador, parrillero, fogonero y laundry. Cuenta con tipologías de apartamentos de 1, 2 y 3 dormitorios.

En el primer piso se posiciona una casa urbana, la cual cuenta con tres grandes patios para diversos usos. En los siguientes niveles, descubre también los apartamentos de dos dormitorios con doble orientación, brindando gran iluminación y ventilación gracias a sus dos terrazas.

El proyecto posee un salón común y diversos espacios diseñados para gran cantidad de usos. Para acercarte a la naturaleza, Près Barrios Amorín incorpora patios con vegetación, y un mirador que invita a contemplar el horizonte. Mientras que el parrillero y el fogonero prometen momentos de conexión.

Характеристики

ID

Тип

Площадь, м²

Вся постройка, м²

Спальни

1268627

Продажа

45

35

1

Ванные комнаты

Гараж

Ссылка

Обновлено

1

1

UDC104

2025-09-30

Район

126.6к U$S

Район

Montevideo

Адрес

Palermo, Barrios Amorin 1168/201 Esq. Maldonado

Дополнительные действия

Justo Acá Propiedades e Inversiones
+59891569569
Похожие объекты
Загрузка...
Зарабатывайте деньги привлекая коллег!

Приглашайте других агентов по недвижимости и получайте 10% комиссии с каждого их продвижения.