U$S 87,200

U$S 3,007/m2

Ванные комнаты

1

Площадь, м²

29

Год постройки

2025

Тип

Квартиры

более

1 недели назад

Просмотры

28

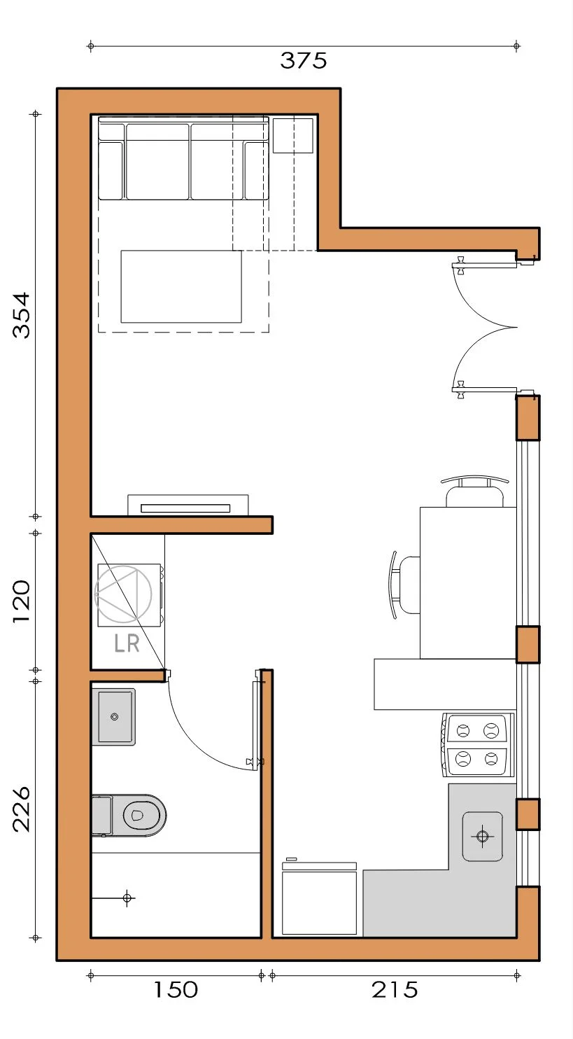
Monoambiente En Venta I Palermo

Oportunidad de inversión y vivienda en una zona en plena transformación

Características del apartamento:

Ubicación: contrafrente, orientación norte

Distribución: Monoambiente con cocina integrada y baño completo

Luminosidad: Muy luminoso y amplio

Equipamiento de alta calidad:
Cocina con anafe
Termotanque
Muebles de cocina alta y baja mesada
Mesada de mármol tipo silestone
Pisos de porcelanato
Campana extractora
Portero con visor
Cámaras de seguridad en áreas comunes
Espacios individuales para bicicletas
Áreas comunes:

Barbacoa
Solarium con baño y duchero en la azotea
Gastos:

Gastos comunes: Aproximadamente $2.800
Gastos de ocupación: 3%
Ubicación y entorno:

Zona en plena conversión: Entre Palermo y Barrio Sur, área en crecimiento con nuevos proyectos residenciales.

Proximidad: Cerca de la Rambla Sur de Montevideo y del centro, con excelente conectividad y acceso a una variedad de servicios.

Calidad constructiva y seguridad:

Reciclaje de un edificio en propiedad horizontal: Combinando encanto histórico con modernas comodidades.

Ambiente seguro: Equipado con cámaras de seguridad en áreas comunes.

Showroom disponible: Visite nuestro showroom para apreciar la calidad constructiva y el diseño de cada unidad.

Beneficios fiscales:
Amparado en la Ley de Vivienda Promovida (Ley 18.795), ofreciendo significativas ventajas impositivas:

Exoneración de ITP e IVA en ventas
Exoneración de IRAE e IRPF a las rentas generadas con los alquileres
Exoneración del Impuesto al Patrimonio por 10 años
Ideal para inversionistas y residentes:

Inversión rentable: Gracias a los beneficios fiscales y la creciente valorización de la zona.
Vivienda cómoda y segura: Apartamentos luminosos, ventilados y con equipamiento de alta calidad.

¡Contáctenos para más información y coordinar una visita!
(CW219165)

Характеристики

ID

Тип

Площадь, м²

Вся постройка, м²

1351008

Продажа

29

29

Ванные комнаты

Год постройки

Ссылка

Обновлено

1

2025

N14B6D

2025-12-16

Район

87.2к U$S

Район

Montevideo

Адрес

Palermo, Canelones

Удобства

Индивидуальное отопление

Зона барбекю

Шкаф в спальне

Терраса

Терраса с прачечной

Барбекю

Кондиционер

Разрешены домашние животные

Дополнительные действия

AQUI-TECHO
+59894293978
Похожие объекты
Загрузка...
Зарабатывайте деньги привлекая коллег!

Приглашайте других агентов по недвижимости и получайте 10% комиссии с каждого их продвижения.