Parque Batlle, 8 Soca

U$S 13,500

~1,130,000 ₽

Спальни

15

Ванные комнаты

15

Площадь, м²

900

Год постройки

2025

Тип

Офис

более

1 год назад

Просмотры

2125

Gran Casa Para Oficina - Parque Batlle - Alquiler

Workplace Real Estate ofrece:
Importante casona a 100 mts de Parque Batlle. Con destacados frentes a Av. Soca y a Brito del Pino.
La casa se entrega en 2025 totalmente reciclada a nuevo.

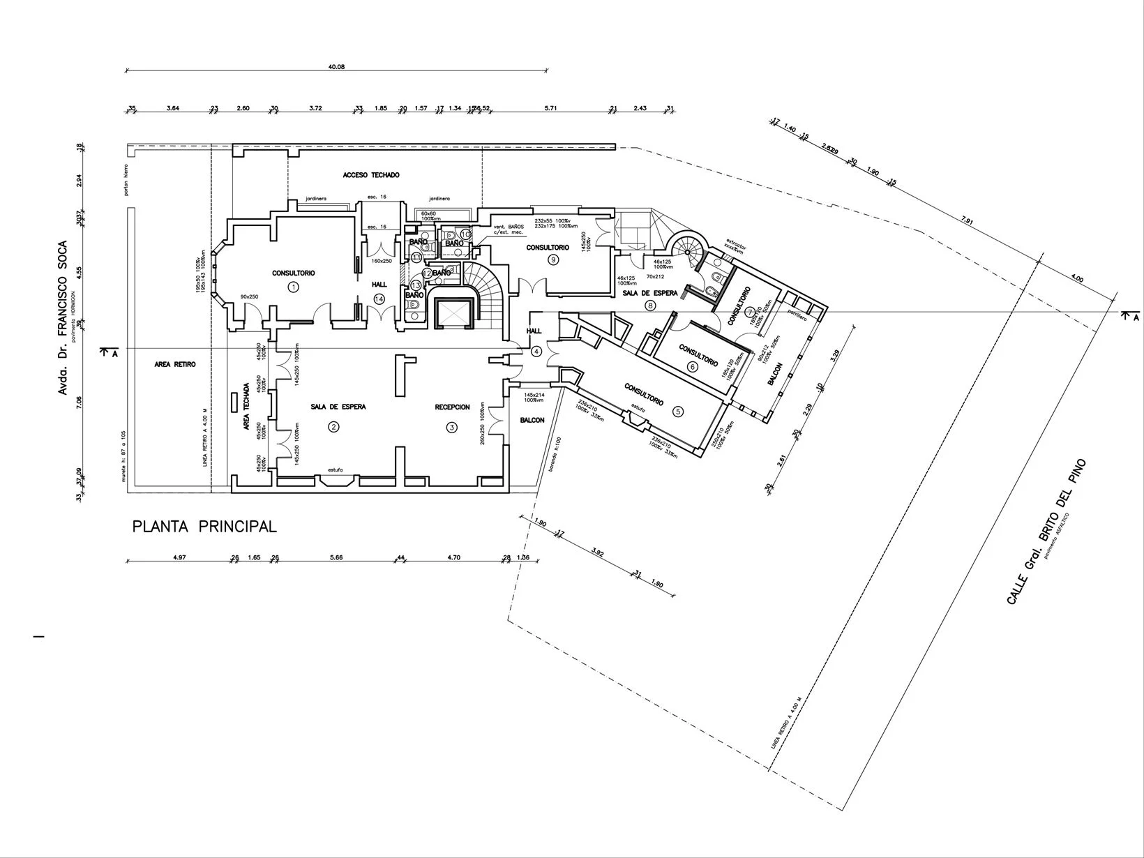
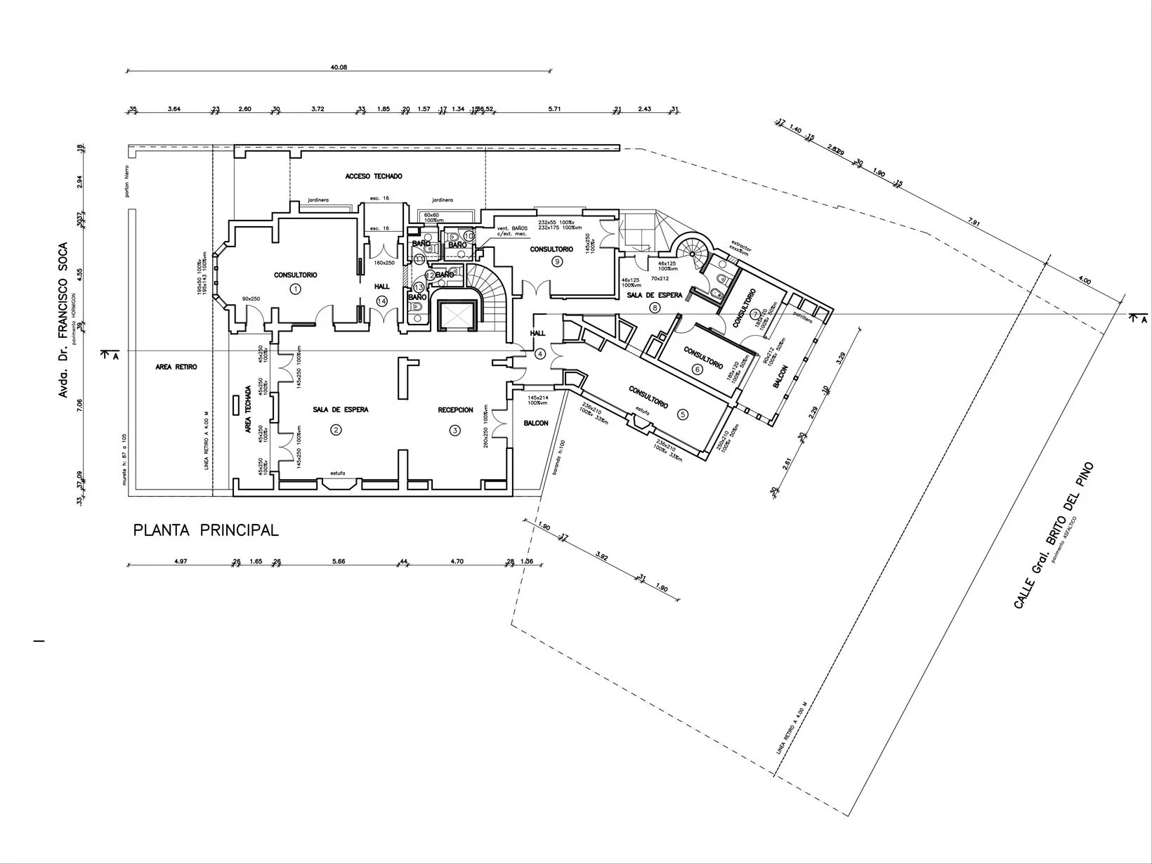
PLANTA BAJA (NIVEL FRANCISCO SOCA).
- Frente hacia Av. Francisco Soca de 17 metros.
- Importante espacio integrado. Se puede ubicar un gran Open Office o Sala de Espera / Recepción y despacho. El espacio cuenta con salida a retiro frontal sobre soca y balcón sobre Brito del Pino. Grandes ventanales.
- Hacia Brito del Pino 4 despachos, consultorios o salas de reuniones.
- 5 baños
- Gran espacio abierto con entrada por ambas calles, para el estacionamiento de autos.

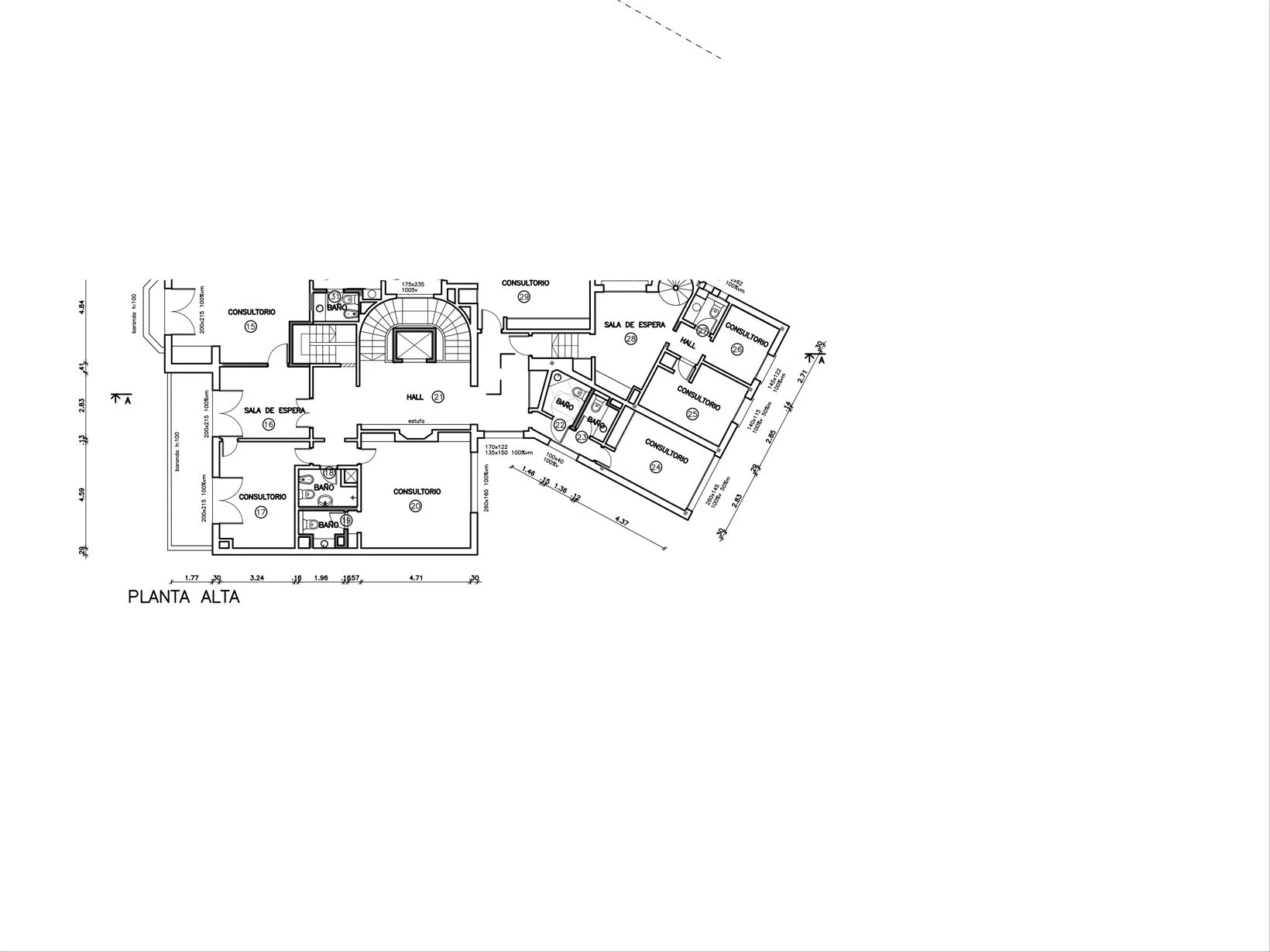
NIVEL 1
- Hall de Ingreso
- 7 despachos / Salas de Reuniones / Consultorios.
- 6 baños

NIVEL 2
- Open Office
- Despacho
- 2 baños
- Kitchenette
- Área de Depósito

SUBSUELO - (NIVEL BRITO DEL PINO)
- Área de depósito
- Garaje cerrado
- Importante frente a Brito del Pino con gran espacio para parking.

Además:
- Ascensor a estrenar
- Baños a estrenar
- Instalaciones nuevas
- Previsión para Aire Acondicionado
- A ESTRENAR

--
CONSULTE: En WORKPLACE REAL ESTATE somos especialistas en inmuebles corporativos.

* La información contenida en el presente documento ha sido proporcionada íntegramente por el/los propietarios del inmueble. WRE no garantizar la exactitud o exhaustividad de la información aquí recogida, ni se responsabiliza por las diferencias o modificaciones que puedan surgir a partir de esta publicación.
* Honorarios por intermediación: 3% + IVA para operaciones de compra-venta. Un mes de alquiler + IVA para operaciones de alquiler
(CW220941)

Характеристики

ID

Тип

Площадь, м²

Вся постройка, м²

Спальни

730852

Аренда

900

900

15

Ванные комнаты

Год постройки

Ссылка

Обновлено

15

2025

J1E411

2025-09-10

Район

13.5к U$S

Район

Montevideo

Адрес

Parque Batlle, 8 Soca

Удобства

Гараж

Терраса

Кондиционер

Отопление

Сад

Внутренний двор

Дополнительные действия

Workplace Real Estate
097...030 099...656
598...030
Похожие объекты
Загрузка...
Зарабатывайте деньги привлекая коллег!

Приглашайте других агентов по недвижимости и получайте 10% комиссии с каждого их продвижения.