Manga, Av De Las Instrucciones 4883

U$S 169,000

U$S 545/m2

Спальни

11

Ванные комнаты

5

Площадь, м²

310

Год постройки

1951

Тип

Дома

более

2 недель назад

Просмотры

80

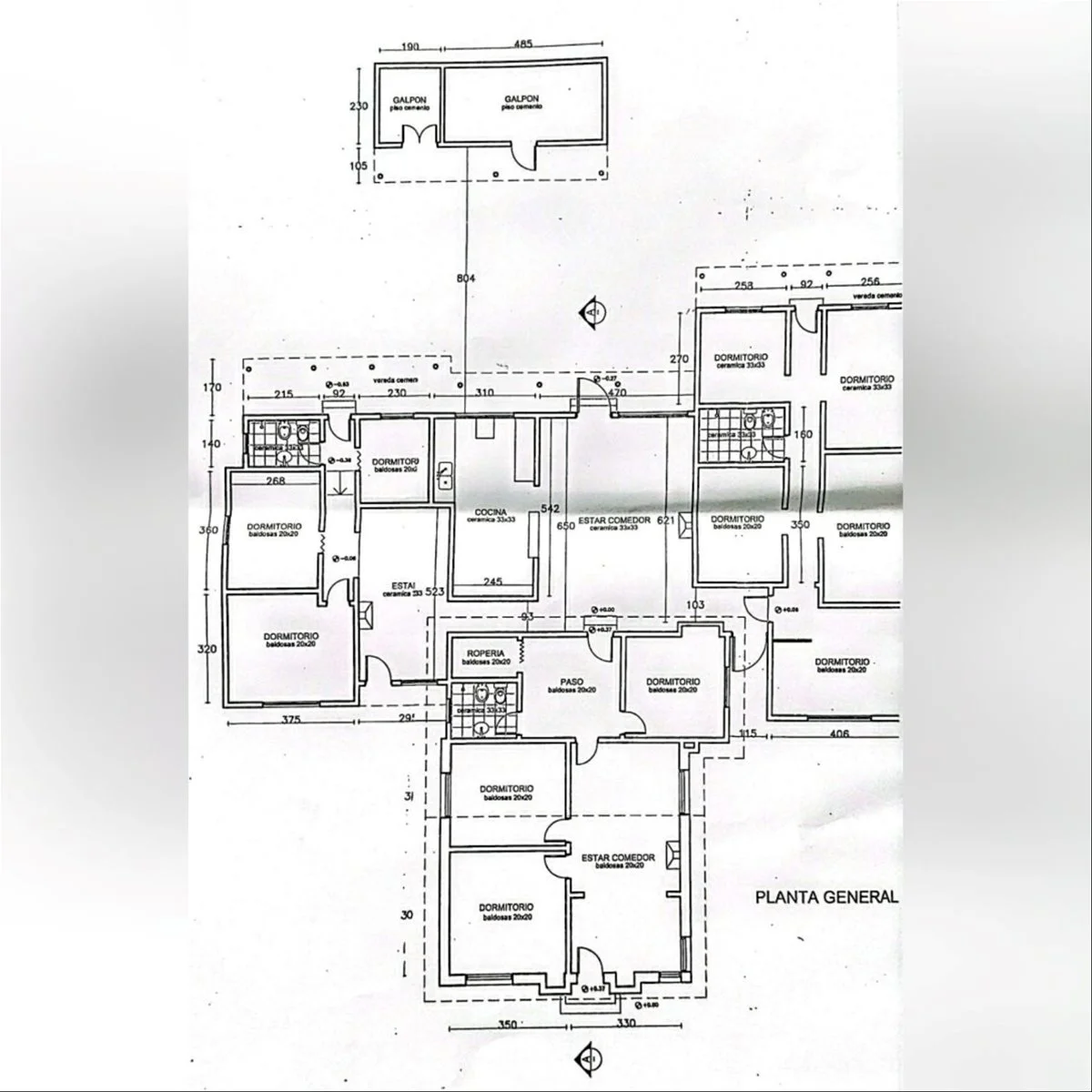
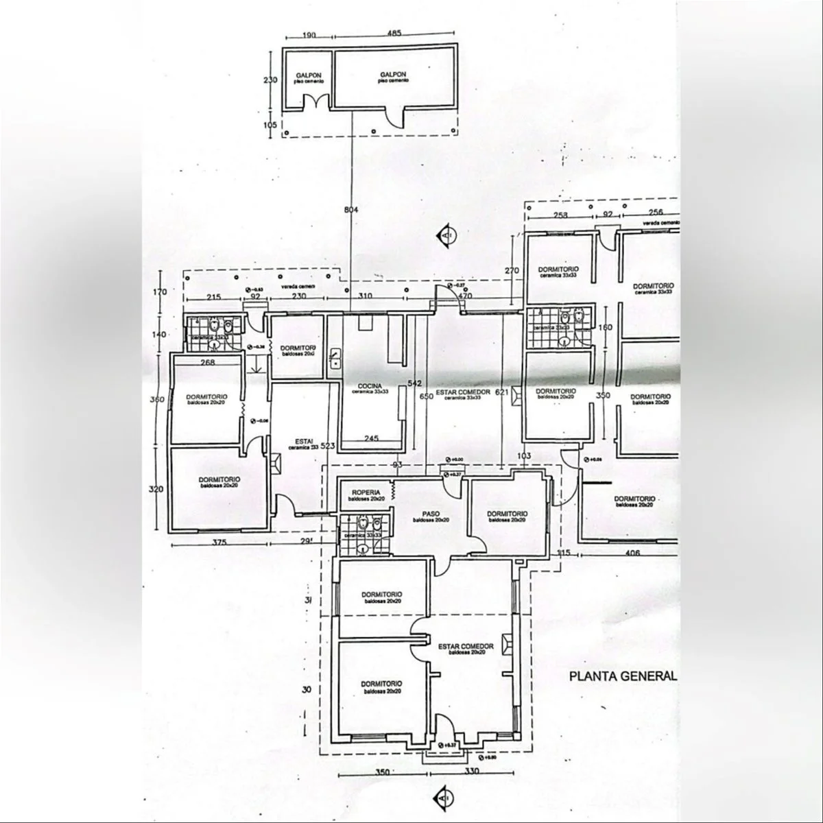
Casa 11 Habitaciones Con Residencial Funcionando

Casa con residencial en funcionamiento – Av. de las Instrucciones
Precio: USD 169.000
Superficie total: 1.356 m²
Construidos: 310 m²
Dormitorios: 11
Baños: 3
Habilitación de Bomberos: vigente hasta 2026
Capacidad: 28 residentes
Actualmente operando con 15 residentes
Ingresos estimados actuales : $525.000 mensuales

Distribución pensada para funcionamiento de residencial
Espacios amplios y adaptados
Negocio habilitado y funcionando
Ideal para inversores del rubro o reconversión a otros usos
Contacto: Alejandro Castelo – 097 683 925
(CW241648)

Характеристики

ID

Тип

Площадь, м²

Вся постройка, м²

Земля, м²

1271798

Продажа

310

310

13562

Спальни

Ванные комнаты

Год постройки

Ссылка

Обновлено

11

5

1951

HE0A40

2025-10-17

Район

169к U$S

Район

Montevideo

Адрес

Manga, Av De Las Instrucciones 4883

Удобства

Гараж

Комната для персонала

Шкаф в спальне

Центральное горячее водоснабжение

Отопление

Меблированная

Сад

Внутренний двор

Дополнительные действия

Madera Real Estate
098 630 654
Похожие объекты
Загрузка...
Зарабатывайте деньги привлекая коллег!

Приглашайте других агентов по недвижимости и получайте 10% комиссии с каждого их продвижения.