Parque Batlle, Ing. Luis P. Ponce Al 1400

U$S 161,102

U$S 3,661/m2

Спальни

1

Ванные комнаты

1

Площадь, м²

44

Год постройки

2026

Тип

Квартиры

более

2 недель назад

Просмотры

42

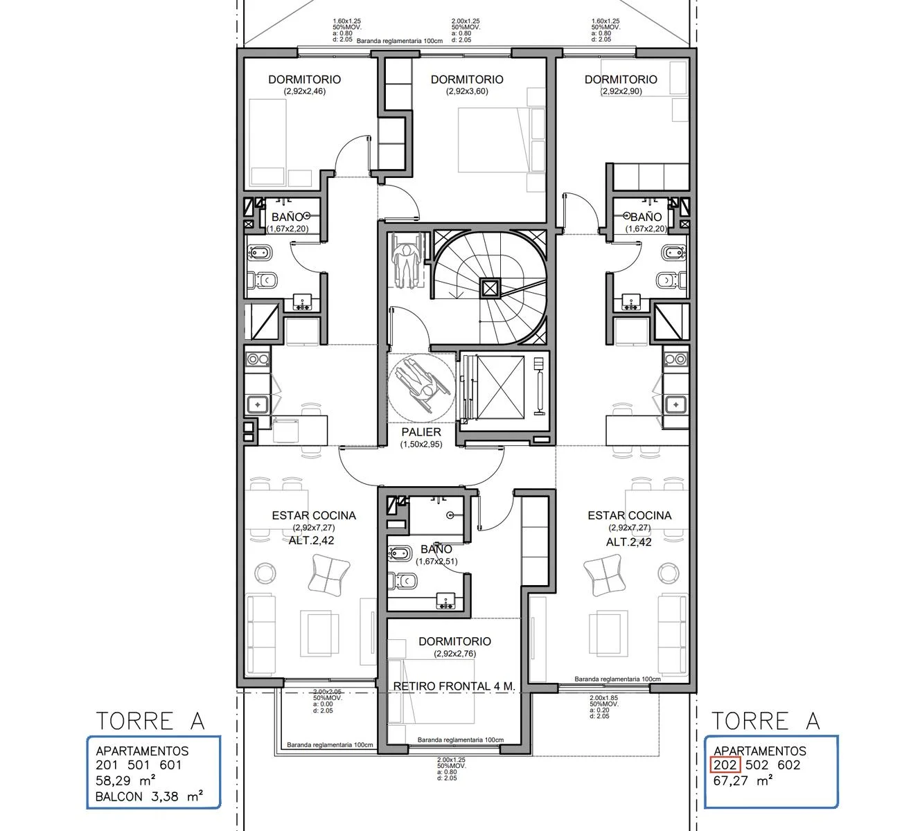
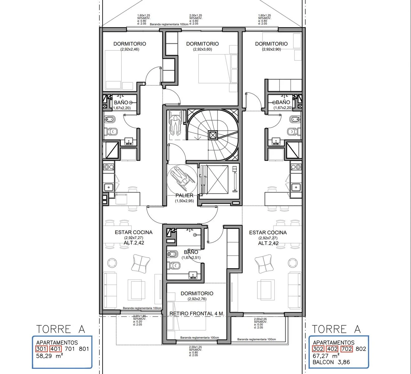
Apartamento En Venta 1 Dormitorio Amenities Parque Batlle

Venta Apartamento 1 Dormitorio Parque Batlle.
Luis P Ponce y Palmar.
Living comedor salida Balcón.
1 Dormitorio.
Cocina.
Terraza Lavadero.
Baño completo.
Barbacoa equipada con parrillero y terrazas.
Jardín común
Lavadero y tender
Garage y Boxes.
Gastos de ocupación no incluidos 3,5%
30% Al compromiso
60% En cuotas iguales mensuales y consecutivas durante obra
Saldo contra entrega unidad
No incluye cochera ni box
Cocheras USD 23.000 - Box chico USD 3.000 - Box grande USD 5.000



Todos los datos son facilitados por los propietarios, la empresa no se hace responsable de los mismos

Характеристики

ID

Тип

Площадь, м²

Вся постройка, м²

Земля, м²

1271514

Продажа

44

40

442

Спальни

Ванные комнаты

Год постройки

Ссылка

Обновлено

1

1

2026

I6EE84

2025-10-08

Район

161.1к U$S

Район

Montevideo

Адрес

Parque Batlle, Ing. Luis P. Ponce Al 1400

Удобства

Балкон

Гараж

Зона барбекю

Лифт

Прачечная

Гостиная-столовая

Разрешены домашние животные

Дополнительные действия

Afilia Propiedades
096110044
Похожие объекты
Загрузка...
Зарабатывайте деньги привлекая коллег!

Приглашайте других агентов по недвижимости и получайте 10% комиссии с каждого их продвижения.