Malvín, Rivera Y Colombes

U$S 180,000

~15,100,000 ₽ / U$S 1,800/m2

Спальни

2

Ванные комнаты

1

Гараж

1

Площадь, м²

100

Год постройки

1970

Тип

Квартиры

более

5 месяцев назад

Просмотры

504

Venta Apartamento 2 Dormitorios, Con Cochera En Malvin

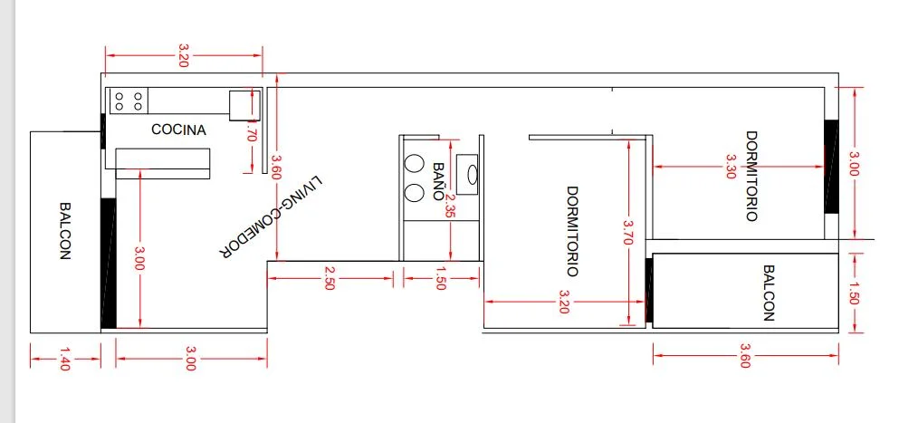
Ubicado en la tranquila y acogedora zona de Malvín, se presenta este encantador apartamento de dos dormitorios, ideal para quienes buscan un espacio luminoso y cómodo. La propiedad, que forma parte de un conjunto horizontal de tres unidades, ofrece una excelente distribución en sus 55 años de antigüedad. Los dormitorios, amplios y bien iluminados, se asoman al patio interior, brindando un ambiente sereno. Uno de ellos cuenta con un balcón que permite disfrutar del aire fresco y es perfecto para colgar ropa.

El living-comedor, integrado a la cocina, destaca por su amplitud y luminosidad, convirtiéndose en el corazón del hogar. El baño, renovado hace apenas cinco años, añade un toque de modernidad a la propiedad. Al ingresar, se encuentra un pasaje que lleva a la cochera cubierta, con espacio suficiente para un automóvil y estanterías u otros bienes, asegurando comodidad y funcionalidad.

Con una orientación este que permite disfrutar de la luz natural durante la mañana, este apartamento es la opción perfecta para quienes buscan un lugar tranquilo en una de las zonas más buscadas de la ciudad. A solo U$D 180.000, esta es una oportunidad que no se puede dejar pasar.

Agente Sofía Saravia

Характеристики

ID

Тип

Площадь, м²

Вся постройка, м²

Спальни

1210763

Продажа

100

100

2

Ванные комнаты

Гараж

Год постройки

Ссылка

Обновлено

1

1

1970

L5EE1A

2025-09-29

Район

180к U$S

Район

Montevideo

Адрес

Malvín, Rivera Y Colombes

Удобства

Балкон

Гараж

Дополнительные действия

Platinum
942...362
598...362
Похожие объекты
Загрузка...
Зарабатывайте деньги привлекая коллег!

Приглашайте других агентов по недвижимости и получайте 10% комиссии с каждого их продвижения.