Malvín, Av. Italia 4500

U$S 126,720

~10,600,000 ₽ / U$S 3,017/m2

Спальни

1

Ванные комнаты

1

Площадь, м²

42

Год постройки

2024

Тип

Квартиры

более

4 месяцев назад

Просмотры

441

Apartamento 1 Dorm En Venta Malvin A Estrenar

Corredor Responsable: -
Contacto: Sebastián Da Rosa
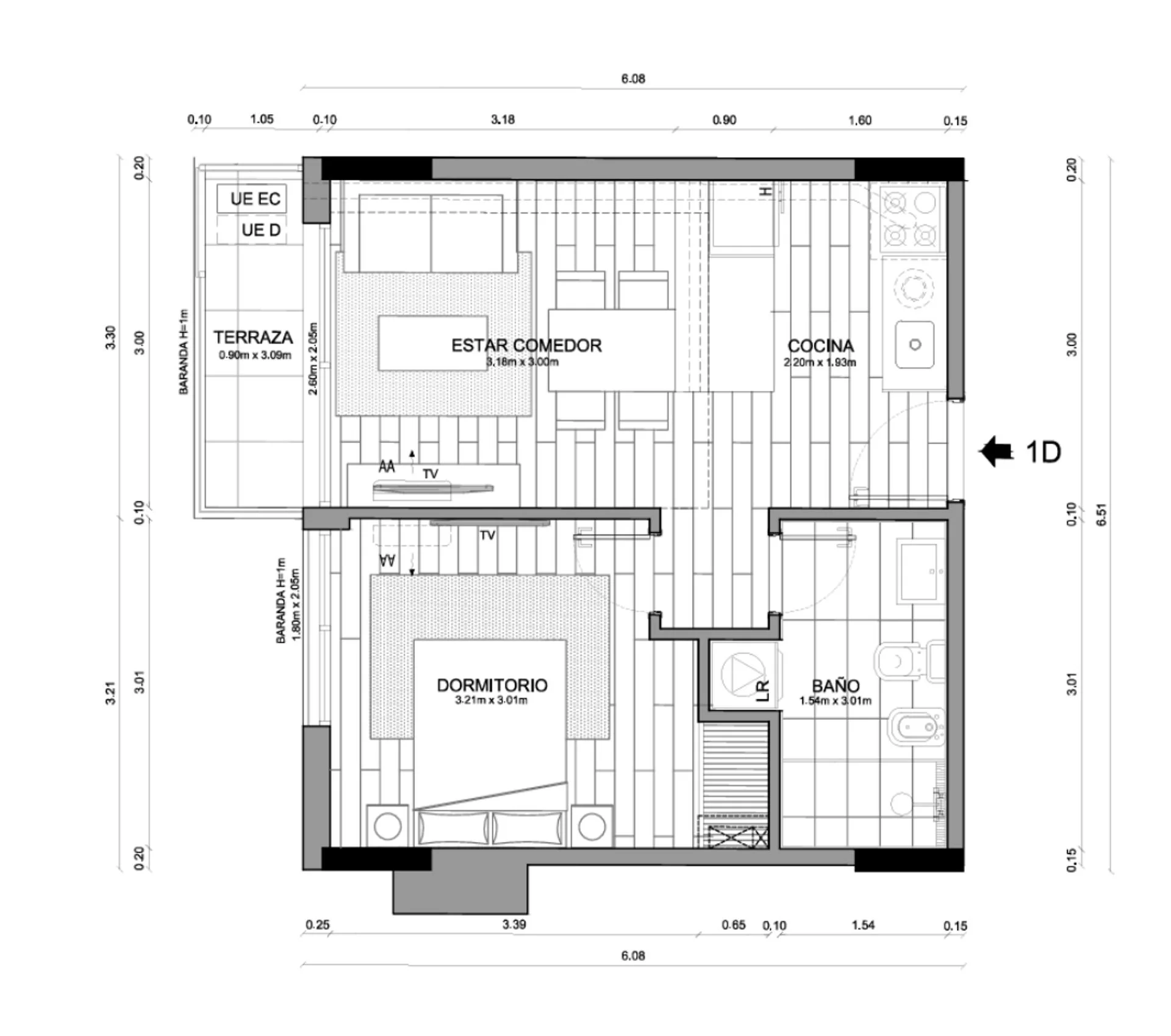
Apartamento 1 dormitorio a estrenar en Nostrum Malvín con los beneficios de la ley de vivienda promovida. Avenida Italia y Erevan. Entrega inmediata.

Unidad 101 al frente por calle Erevan, con orientación Oeste.

El apartamento cuenta con cerradura electrónica con acceso mediante código, tarjeta o huella. Living comedor con salida a terraza. Cocina integrada con doble mesada de granito color negro, muebles aéreos y bajo mesada con terminación melamínica. Dormitorio con persiana de aluminio. Baño completo con mueble bajo pileta, espejo y columna de ducha. Pisos de listones vinílicos de alto tránsito símil madera. Aberturas de aluminio color negro. Aire acondicionado en living comedor y previsión en el dormitorio.

El edificio cuenta con accesibilidad universal, portería con horario, acceso con tarjeta magnética codificada y CCTV, parrilleros exteriores, 2 SUM, terrazas con vistas panorámicas, juegos para niños, sectores enjardinados, espacio pergolado con livings, zona co-working, pet garden, gimnasio, 2 ascensores por torre y bajos gastos comunes.

Con los beneficios de la Ley de vivienda promovida:
- Exoneración de ITP
- Exoneración del IVA
- Exoneración del Impuesto al Patrimonio por 10 años
- Exoneración del Impuesto a la Renta de los alquileres por 10 años
según Normativa vigente al 1/09/2019 (IRPF/IRAE)
- Opción de financiación mediante cualquier banco de plaza.

Consultar por otras unidades monoambientes, 1, 2 o 3 dormitorios.
Los precios no incluyen 4% de conexiones.
Cada Oficina es de propiedad, gestión y desarrollo independiente
La presente publicación describe las características esenciales del inmueble, debiéndose consultar al responsable de la operación por la eventual actualización de las medidas, descripciones arquitectónicas y funcionales, servicios, impuestos, precios y demás información, cuyos valores son aproximados.

Характеристики

ID

Тип

Площадь, м²

Вся постройка, м²

Спальни

1205464

Продажа

42

42

1

Ванные комнаты

Год постройки

Ссылка

Обновлено

1

2024

R262B4

2025-08-02

Район

126.7к U$S

Район

Montevideo

Адрес

Malvín, Av. Italia 4500

Дополнительные действия

RE/MAX Focus
094...044
598...044
Похожие объекты
Загрузка...
Зарабатывайте деньги привлекая коллег!

Приглашайте других агентов по недвижимости и получайте 10% комиссии с каждого их продвижения.