Carrasco, Cno. Brunel Y Av. Del Polo - U211

U$S 459,000

U$S 3,020/m2

Спальни

3

Ванные комнаты

2

Гараж

1

Площадь, м²

152

Год постройки

2026

Тип

Квартиры

более

4 месяцев назад

Просмотры

440

Apartamento De Tres Dormitorios En Venta En Carrasco - 211c

Edificio en construcción a estrenar en octubre de 2025.
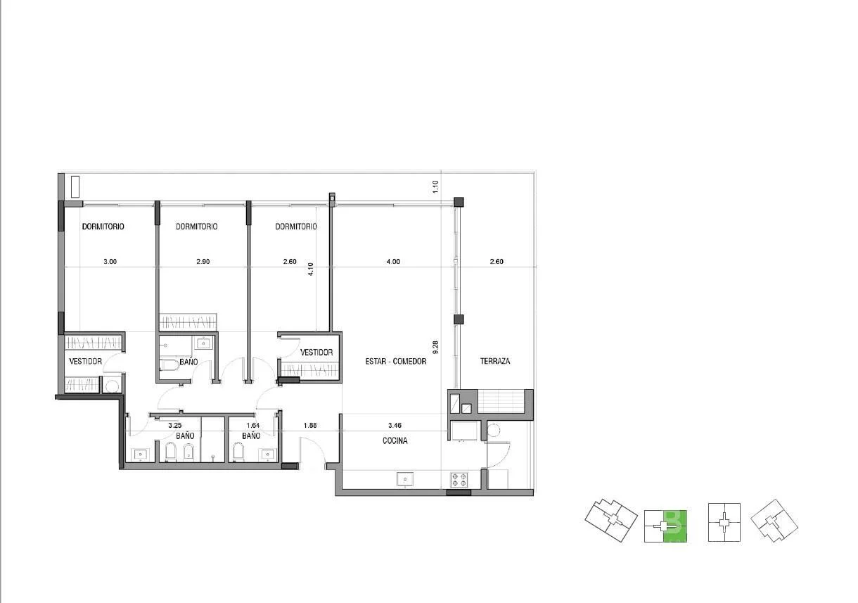
Apartamento de 3 dormitorios en venta en Carrasco.
Piso 2 torre C al frente con orientación norte.
Living comedor con salida a terraza con parrillero, cocina integrada con placares, terraza lavadero, 3 dormitorios, el principal en suite con vestidor, todos con salida a terraza, 2 baños completo y 1 baño social.
Amenities:

- Barbacoa equipadas ubicadas en el rooftop de uno de los edificios de cada etapa.

- Piscina exterior climatizada, rodeada con espacio para solárium, pavimentado con piso atérmico tipo deck.

- Solárium, terrazas acondicionadas en el rooftop de uno de los edificios de cada etapa.

- Sala de aparatos equipadas con caminadoras, spinning y multifuncionales.

- Laundry: En cada bloque se contará también con una sala equipada con máquinas lava-seca ropas de uso colectivo, mediante sistema de fichas.
- Espacio para guardar bicicletas.
Garaje opcional desde U$S 25.000, no incluido en el precio.
Forma de pago:

10% seña

40% compromiso

50% en cuotas trimestrales 

Gastos de ocupación 5%
U 211 C
Ref. RO
Novus Parques
Referencia ABU49528 AP5006569














Honorarios por intermediación:
3% + IVA para operaciones de compra.
Un mes de alquiler + IVA para operaciones de alquiler.

La información contenida en el presente documento ha sido proporcionada íntegramente por el/los propietarios del inmueble.

Arquibrokers Servicios Inmobiliarios no se responsabiliza por las diferencias ni las modificaciones que puedan surgir a partir de este documento.

Характеристики

ID

Тип

Площадь, м²

Вся постройка, м²

Спальни

1266253

Продажа

152

113

3

Ванные комнаты

Гараж

Год постройки

Ссылка

Обновлено

2

1

2026

XD7ADF

2025-09-20

Район

459к U$S

Район

Montevideo

Адрес

Carrasco, Cno. Brunel Y Av. Del Polo - U211

Удобства

Индивидуальное отопление

Терраса

Гардеробная

Лифт

Спортзал

Прачечная

Гостиная-столовая

Разрешены домашние животные

Дополнительные действия

' ' Arquibrokers Servicios Inmobiliarios
091502034
+59891502034
Похожие объекты
Загрузка...
Зарабатывайте деньги привлекая коллег!

Приглашайте других агентов по недвижимости и получайте 10% комиссии с каждого их продвижения.