Carrasco, Cno. Brunel Y Av. Del Polo - U114

U$S 365,000

~30,600,000 ₽ / U$S 3,380/m2

Спальни

2

Ванные комнаты

2

Площадь, м²

108

Год постройки

2026

Тип

Квартиры

более

2 месяцев назад

Просмотры

234

Apartamento De Dos Dormitorios En Venta En Carrasco - 114d

Edificio en construcción a estrenar en octubre de 2025.
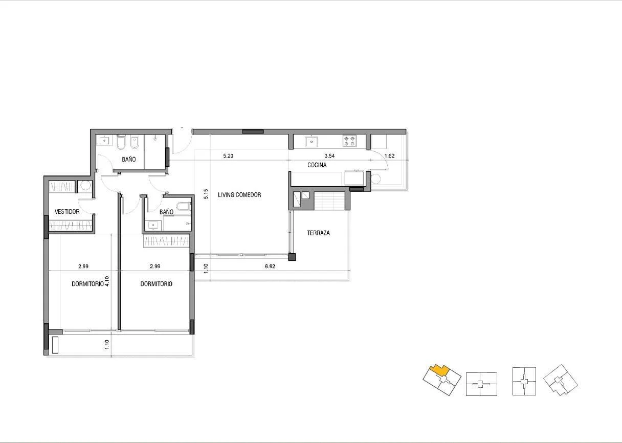
Apartamento de 2 dormitorios en venta en Carrasco.
Piso 1 torre D al frente con orientación norte.
Living comedor con salida a terraza con parrillero, cocina definida con placares, terraza lavadero, 2 dormitorios, el principal en suite con vestidor, ambos con salida a terraza, 2 baños completo.
Amenities:

- Barbacoa equipadas ubicadas en el rooftop de uno de los edificios de cada etapa.

- Piscina exterior climatizada, rodeada con espacio para solárium, pavimentado con piso atérmico tipo deck.

- Solárium, terrazas acondicionadas en el rooftop de uno de los edificios de cada etapa.

- Sala de aparatos equipadas con caminadoras, spinning y multifuncionales.

- Laundry: En cada bloque se contará también con una sala equipada con máquinas lava-seca ropas de uso colectivo, mediante sistema de fichas.
- Espacio para guardar bicicletas.
Garaje opcional desde U$S 25.000, no incluido en el precio.
Forma de pago:

10% seña

30% compromiso

60% en 5 cuotas trimestrales a partir de los 3 meses del comienzo de obra

Gastos de ocupación 5%
U 114 D
Novus Parques
Referencia ABU49528 AP5006604









Honorarios por intermediación:
3% + IVA para operaciones de compra.
Un mes de alquiler + IVA para operaciones de alquiler.

La información contenida en el presente documento ha sido proporcionada íntegramente por el/los propietarios del inmueble.

Arquibrokers Servicios Inmobiliarios no se responsabiliza por las diferencias ni las modificaciones que puedan surgir a partir de este documento.

Характеристики

ID

Тип

Площадь, м²

Вся постройка, м²

Спальни

1256340

Продажа

108

82

2

Ванные комнаты

Год постройки

Ссылка

Обновлено

2

2026

GA6223

2025-09-20

Район

365к U$S

Район

Montevideo

Адрес

Carrasco, Cno. Brunel Y Av. Del Polo - U114

Удобства

Индивидуальное отопление

Терраса

Гардеробная

Лифт

Спортзал

Прачечная

Разрешены домашние животные

Дополнительные действия

Arquibrokers Servicios Inmobiliarios
091502034
+59891502034
Похожие объекты
Загрузка...
Зарабатывайте деньги привлекая коллег!

Приглашайте других агентов по недвижимости и получайте 10% комиссии с каждого их продвижения.