La Blanqueada, Luis Alberto De Herrera Y Joanicó

U$S 159,900

U$S 4,569/m2

Спальни

1

Ванные комнаты

1

Гараж

1

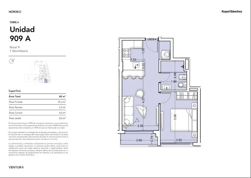
Площадь, м²

35

Год постройки

2025

Тип

Квартиры

Опубликовано

5 дней назад

Просмотры

22

Apartamento De 1 Dormitorio En Venta

Nórdico – Ubicado en Luis Alberto de Herrera y Joanicó, en una esquina estratégica con excelente conectividad, cerca de universidades, hospitales, parques y servicios.

Complejo residencial de 209 apartamentos monoambientes, de 1 y 2 dormitorios, distribuidos en tres edificios con diseño moderno y enfoque sustentable.

Ofrece espacios comunes únicos: plazas con áreas de descanso y juegos, gimnasio interior y exterior, barbacoas equipadas, sala de juegos, zona fit, lavandería, lockers para e-commerce, y áreas pet y bike friendly.

Proyecto bajo la Ley de Vivienda Promovida, con beneficios fiscales:
-Exoneración de ITP, IRPF/IRAE e IP por 10 años.

-Garajes disponibles desde USD 22.500.
-Gastos de ocupación: 4%.
-Entrega Inmediata.

Una propuesta moderna y completa para vivir o invertir. ¡Consultá hoy!
(CW242207)

Характеристики

ID

Тип

Площадь, м²

Вся постройка, м²

Земля, м²

Спальни

1282975

Продажа

35

35

422

1

Ванные комнаты

Гараж

Год постройки

Ссылка

Обновлено

1

1

2025

D3B1F6

2025-10-17

Район

159.9к U$S

Район

Montevideo

Адрес

La Blanqueada, Luis Alberto De Herrera Y Joanicó

Удобства

Индивидуальное отопление

Зона барбекю

Терраса

Терраса с прачечной

Лифт

Барбекю

Разрешены домашние животные

Дополнительные действия

Paula Cruz
+59898920278
Похожие объекты
Загрузка...
Зарабатывайте деньги привлекая коллег!

Приглашайте других агентов по недвижимости и получайте 10% комиссии с каждого их продвижения.