Aguada, Torres Del Rey Ii

U$S 650

~49,500 ₽ / + $ 3,800 Дополнительно

Спальни

1

Ванные комнаты

1

Гараж

1

Площадь, м²

50

Тип

Квартиры

Опубликовано

2 дня назад

Просмотры

5

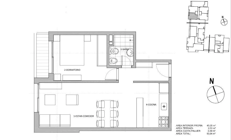
Apartamento Alquiler 1 Dormitorio, Al Frente, Con Cochera Av. Libertador Aguada

Apartamento de 1 dormitorio al frente por Av. Libertador con cochera.
Diseño moderno y funcional con muy buena iluminación natural.

Cuenta con cocina integrada tipo barra, equipada con placares bajo y sobre mesada y mesada de granito. El área social se compone de un amplio living comedor con ventanales al frente y salida al balcón desde el dormitorio con conexión para el lavarropas.

El dormitorio es luminoso y dispone de placard empotrado.
Baño completo.

Ubicación estratégica, excelente conectividad y cercanía al Centro, Palacio legislativo, Universidades y servicios. 

ALQUILER: $U27.500

Consultanos para coordinar una visita o recibir más información.







CBU10544 AP7954552
.

Характеристики

ID

Тип

Площадь, м²

Вся постройка, м²

Спальни

1484067

Аренда

50

45

1

Ванные комнаты

Гараж

Дополнительно

Ссылка

Обновлено

1

1

$3800

Z8C2A2

2026-04-17

Район

650 U$S

Район

Montevideo

Адрес

Aguada, Torres Del Rey Ii

Удобства

Балкон

WiFi

Кабельное телевидение

Прачечная

Гостиная-столовая

Разрешены домашние животные

Дополнительные действия

COVELLO INTERNATIONAL
+59...062
598...062
Похожие объекты
Загрузка...
Зарабатывайте деньги привлекая коллег!

Приглашайте других агентов по недвижимости и получайте 10% комиссии с каждого их продвижения.