Aguada, Avenida Agraciada 2519, Montevideo Departamento De Montevideo, Uruguay

U$S 71,000

~5,940,000 ₽ / U$S 244/m2

Ванные комнаты

1

Площадь, м²

291

Тип

Квартиры

более

6 месяцев назад

Просмотры

1124

Apartamento A Estrenar En Aguada Proyecto En Pozo Con Exoneración De Impuestos

Proyecto en Pozo: Inversión Inteligente en Aguada

PRE- VENTA: EL MEJOR PRECIO

¡Viví o invertí en una zona en pleno desarrollo!

Ubicación privilegiada sobre Av. Agraciada, una de las arterias principales de Montevideo. A pasos del puerto, de la rambla y a menos de 10 minutos del Centro y Ciudad Vieja. Gran conectividad con transporte público en la puerta.

Barrio Aguada: zona en crecimiento, ideal para quienes buscan calidad de vida con todos los servicios cerca.

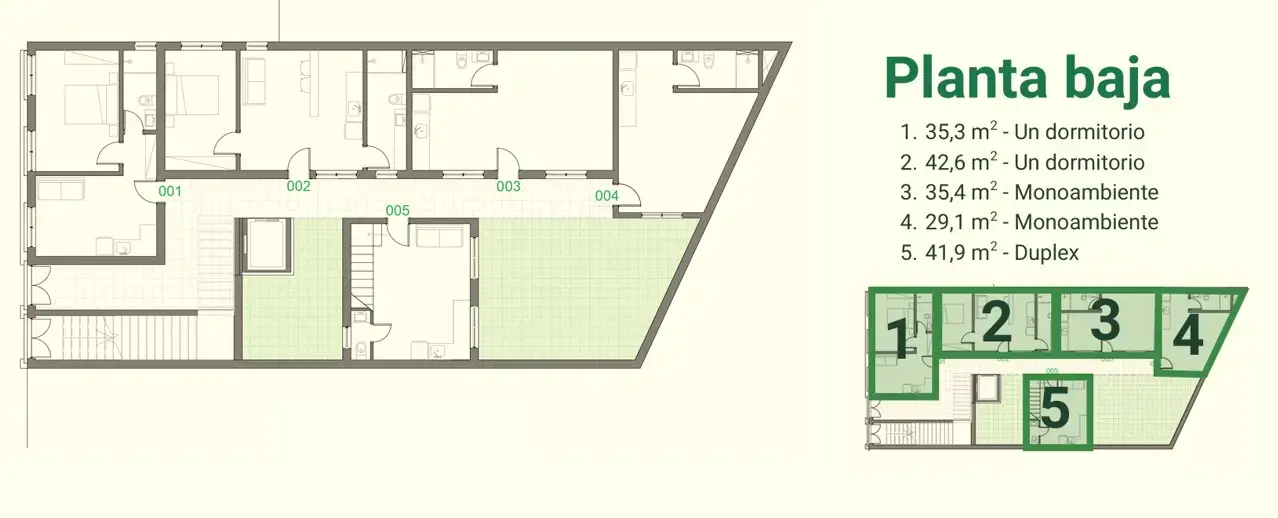
Unidades disponibles:

6 apartamentos de 1 dormitorio

5 apartamentos de 2 dormitorios

2 dúplex

4 monoambientes

Con vistas al frente o a patios interiores. Unidades con excelente iluminación natural (frente noreste y patios noroeste).

Amenities y características destacadas:

Barbacoa y azotea compartida

Lavadero común con secarropa

Ascensor

Cocina con mesada de granito, pileta de acero y muebles en MDF

Baños completos con terminaciones modernas

Pisos de porcelanato

Aberturas con DVH y persianas en dormitorios

Previsión para aire acondicionado

Rejas en aberturas y pintura de alta calidad

Azotea transitable con múltiples posibilidades

- Proyecto VIS (Ley 18.795) – Vivienda promovida con grandes beneficios fiscales:

- Exoneración de ITP (2% del valor catastral)

- Exoneración del Impuesto al Patrimonio por 10 años

- Exoneración de impuestos a la renta por arrendamiento (IRPF o IRAE)

Ideal para inversionistas que buscan renta segura y beneficios tributarios, o para quienes quieren comprar su primera vivienda con excelente relación calidad-precio.

¡Consultá hoy mismo y asegurá tu unidad a precio de pozo!

Характеристики

ID

Тип

Площадь, м²

Вся постройка, м²

1179479

Продажа

291

291

Ванные комнаты

Ссылка

Обновлено

1

B69602

2025-07-08

Район

71к U$S

Район

Montevideo

Адрес

Aguada, Avenida Agraciada 2519, Montevideo Departamento De Montevideo, Uruguay

Удобства

Зона барбекю

Терраса с прачечной

Лифт

Прачечная

Общая зона

Дополнительные действия

Inmobiliaria MASTERS
+59...637 092...092
598...637
Похожие объекты
Загрузка...
Зарабатывайте деньги привлекая коллег!

Приглашайте других агентов по недвижимости и получайте 10% комиссии с каждого их продвижения.