La Blanqueada, Dr. Francisco Simón

U$S 123,151

~9,490,000 ₽ / U$S 3,004/m2

Спальни

1

Ванные комнаты

1

Площадь, м²

41

Год постройки

2025

Тип

Квартиры

более

3 месяцев назад

Просмотры

430

Apartamento A Estrenar 1 Dormitorio - La Blanqueada

Apartamentos a estrenar ubicados en el corazón de La Blanqueada, en una zona en constante crecimiento, con excelente conectividad, cercanía a centros de salud, colegios, transporte y áreas comerciales. Desarrollo de construcción tradicional con materiales de calidad y diseño funcional y moderno con espacios luminosos.

Beneficios fiscales bajo el régimen de Vivienda Promovida (Ley 18.795): Exento de ITP, para compradores iniciales, Exento de IRAE, IRPF e IRNR sobre renta obtenida durante 10 años, Exento del Impuesto al Patrimonio por 10 años.

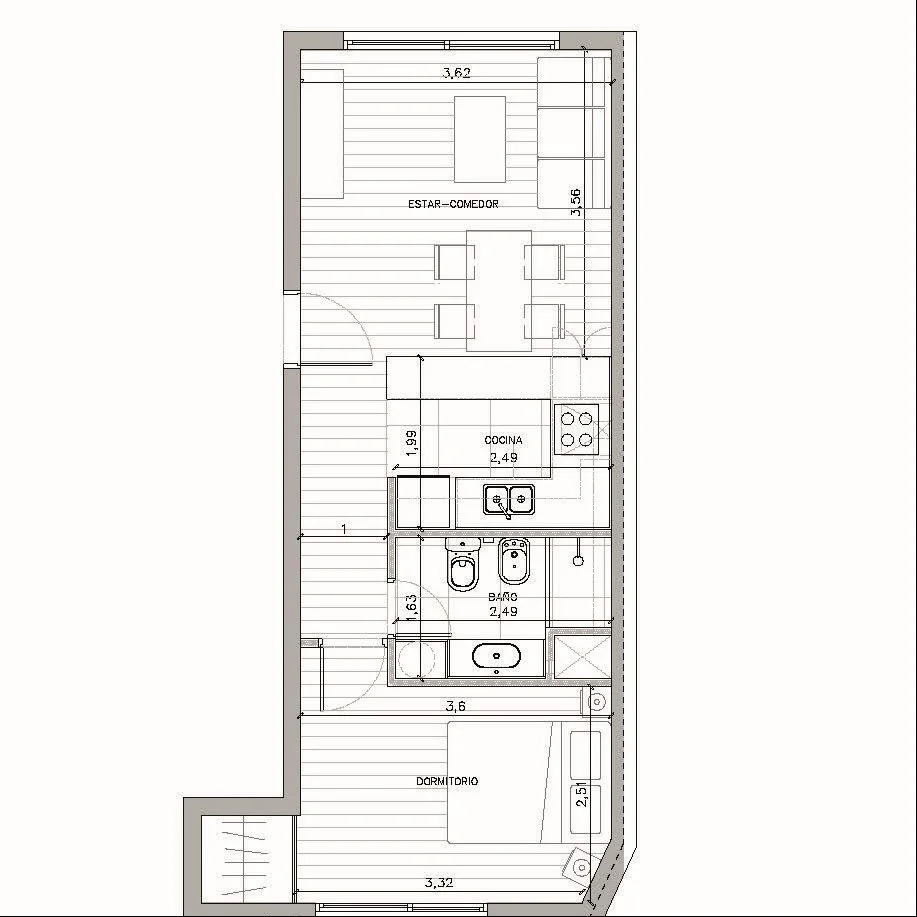
Unidades de 1 dormitorio con estar-comedor, cocina integrada y baño completo. Instalación de cañería para teléfono, TV cable, alarma, aire acondicionado, wi-fi, portero eléctrico y cerradura electrónica.

Distribución:

Estar-comedor con cocina integrada. Mesada de granito con placares bajo mesadas con opción a placares aéreos.
1 Dormitorio, con cortina de enrollar y piso flotante.
Baño completo con mueble bajo mesada y ducha doble.
Doble orientación: Noreste-Suroeste.

El edificio ofrece una propuesta integral de confort y servicios: hall de acceso con living, co-work y lockers. Jardín en espacio común con bicicleteros. SUM cómodamente equipado con mobiliario interior, mueble despojador, mesas y sillas, con terraza en azotea y parrillero cerrado. Solárium con parrillero exterior y vistas despejadas a la ciudad, barra, mesas, sillas y reposeras. Lavadero colectivo con lava y secarropa, gimnasio equipado y cochera con plazas disponibles.

Reja perimetral con cámaras de seguridad. Acceso vehicular a través de portón con control remoto. Videovigilancia 24/7 con la empresa Hunter.

Gastos de ocupación: 4%

Las imágenes son ilustrativas, no incluye electrodomésticos ni campana.
(CW234986)

Характеристики

ID

Тип

Площадь, м²

Вся постройка, м²

Спальни

1290665

Продажа

41

41

1

Ванные комнаты

Год постройки

Ссылка

Обновлено

1

2025

ZCEE64

2025-10-31

Район

123.2к U$S

Район

Montevideo

Адрес

La Blanqueada, Dr. Francisco Simón

Удобства

Зона барбекю

Терраса с прачечной

Барбекю

Внутренний двор

Разрешены домашние животные

Дополнительные действия

INMOBILIARIA IBIZA
+59899419292
Похожие объекты
Загрузка...
Зарабатывайте деньги привлекая коллег!

Приглашайте других агентов по недвижимости и получайте 10% комиссии с каждого их продвижения.