Centro, Andes Y Soriano

U$S 359,667

~30,100,000 ₽ / + $ 12,463 Дополнительно / U$S 2,664/m2

Спальни

2

Ванные комнаты

1

Площадь, м²

135

Год постройки

2018

Тип

Квартиры

более

4 месяцев назад

Просмотры

391

Venta Apartamento 2 Dormitorios Centro Andes Y Soriano Ed. Alma Brava Gran DiseÑo!!

- INMOBILIARIA MONYMAR -



ANDES Y SORIANO ED. ALMA BRAVA, EDIFICIO DE PRIMER NIVEL CON EL SELLO DEL RECONOCIDO A NIVEL MUNDIAL; ARQ. KLOTZ... ALMA BRAVA nace enclavado en el corazón de Palermo y del Barrio conocido como de las Artes, en una zona con coloridas casitas antiguas que se mezclan con reciclajes que respetan sus estructuras originales y nuevos edificios que van realzando el barrio. A MTS. DE 18 DE JULIO Y PRÓXIMO A PLAZA INDEPENDENCIA.



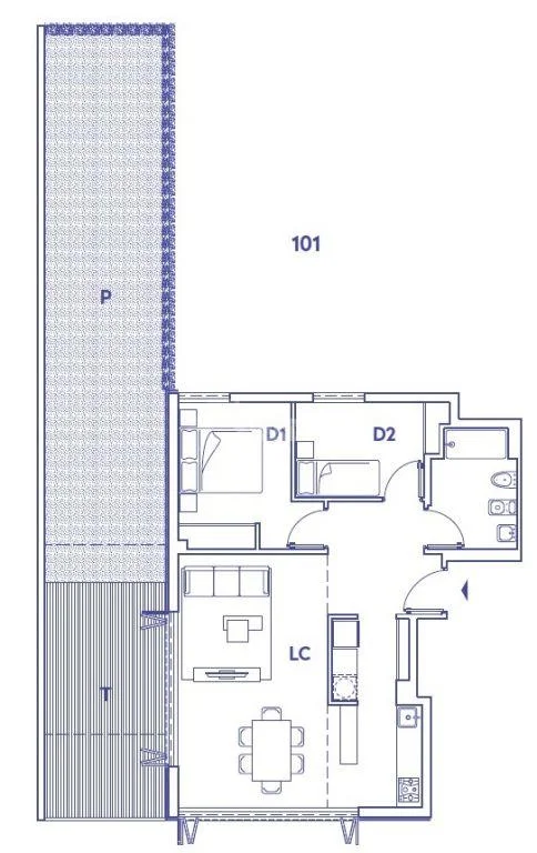
El proyecto fue concebido para contar con una disminución de los consumos habituales de energía y agua. Se ha implementado un sistema de recolección de agua de lluvia. Esta es almacenada e utilizada para el riego de los espacios parquizados. Todas las carpinterías cuentan con sistemas de protección solar y vidrios con cámara de aire para aislación térmica. Además cuenta con un sistema complementario de calentamiento solar de agua. IMPECABLE. CARACTERISTICAS DE LA PLANTA: Living comedor SALIDA A GRAN TERRAZA Y JARDIN EXCLUSIVO y 2 DORMITORIOS con placard, 1 baño completo. Cocina con anafe y horno eléctrico. Terraza lavadero. GARAJES OPCIONALES. SERVICIOS DEL EDIFICIO: En el PISO 11 cuenta con áreas de uso común independiente con 3 PARRILLEROS CON PÉRGOLA y SALON DE USOS MÚLTIPLES con el concepto de LIVING SUM el cual emula el living de una casa con las comodidades de este para juntarse con amigos o familiares. Este sector cuenta con Office y baño.



EDIFICIO AMPARADO POR LA LEY 18795 DE LA AGENCIA NACIONAL DE VIVIENDA Y CON TODOS LOS BENEFICIOS PARA LOS COMPRADORES OTORGADOS POR DICHA LEY : 1) Exoneración del IVA del precio de compra; 2) Exoneración del pago de ITP (2% sobre valor de catastro), 3) Exoneración del impuesto al patrimonio por 10 años, 4) Exoneración del impuesto a la renta (IRPF O IRAE) por 10 años.



PRECIO VENTA CON RENTA:

101) 359.667 (Alquilado en U$S 828 HASTA 12/9/26)

TODAS LAS UNIDADES CON GARAJE OPCIONAL U$S 22.000 + BAULERA OPCIONAL U$S 5000



METRAJE:

101) 135,45m (Area.propia 67m + Area tzas 53,3m + Comunes 15,15m)



CONSULTE POR OTRAS UNIDADES DISPONIBLES.



(AP 2916)


Характеристики

ID

Тип

Площадь, м²

Вся постройка, м²

Спальни

1222555

Продажа

135

67

2

Ванные комнаты

Год постройки

Дополнительно

Ссылка

Обновлено

1

2018

$12463

IFD0CB

2025-10-08

Район

359.7к U$S

Район

Montevideo

Адрес

Centro, Andes Y Soriano

Удобства

Зона барбекю

Дополнительные действия

Monymar
+59...481 +59...115
598...115
Похожие объекты
Загрузка...
Зарабатывайте деньги привлекая коллег!

Приглашайте других агентов по недвижимости и получайте 10% комиссии с каждого их продвижения.