Unión, Calle General Félix Laborde 2500

$ 23,000

Спальни

1

Ванные комнаты

1

Площадь, м²

55

Год постройки

2021

Тип

Квартиры

более

2 недель назад

Просмотры

63

Alquiler Union Apto Duplex 1 Dorm Patio Parrillero

Corredor Responsable: -
Contacto: Mónica Volkmann Bares
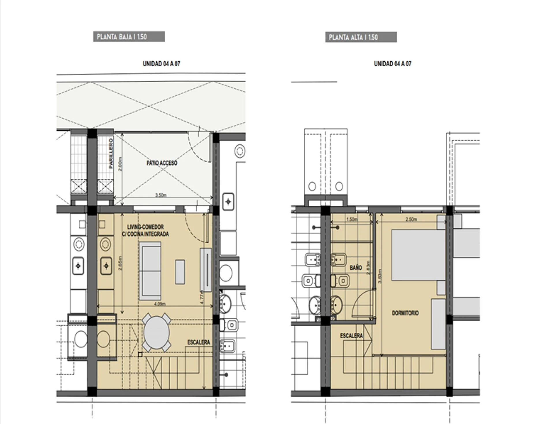
ALQUILER!!! DUPLEX EN BARRIO UNION. La unidad dúplex número 04 en alquiler cuenta con 46 m2 más 9 m2 de patio de uso particular de la unidad.

Cuenta con 1 dormitorio, living comedor con cocina integrada. El ingreso a la unidad desde la calle es mediante un pasillo abierto de circulación común y al frente de la unidad cuenta con un patio de uso particular de la unidad.

Se emplaza en un proyecto de 8 apartamentos tipo dúplex, en el barrio Unión, a una cuadra de Av. 8 de Octubre, a la altura del Hospital Pasteur.

De construcción tradicional con revestimiento en yeso, aberturas de aluminio con vidrios de 5mm, el dormitorio cuenta con cortina de enrollar y revestimiento de piso vinílico flotante. Living comedor con cocina integrada con revestimiento de pisos en porcelanato, ventana con rejas, cocina con mesada de granito, muebles bajo mesada, pileta de acero inoxidable, grifería mono comando; previsión para termotanque y lavarropas, así como para aires acondicionados, y extracción de aire tanto en cocina como en baño.

GASTOS COMUNES: $1.350 mensuales (incluye OSE)
GARANTIAS: ANDA O CONTADURIA

COMISIÓN INMOBILIARIA 1 MES MAS IVA SOBRE EL PRECIO DEL ALQUILER

COMPARTIMOS CON TODOS LOS COLEGAS!

Cada Oficina es de propiedad, gestión y desarrollo independiente
La presente publicación describe las características esenciales del inmueble, debiéndose consultar al responsable de la operación por la eventual actualización de las medidas, descripciones arquitectónicas y funcionales, servicios, impuestos, precios y demás información, cuyos valores son aproximados.

Характеристики

ID

Тип

Площадь, м²

Спальни

1341666

Аренда

55

1

Ванные комнаты

Год постройки

Ссылка

Обновлено

1

2021

D66EB6

2025-12-05

Район

23к $

Район

Montevideo

Адрес

Unión, Calle General Félix Laborde 2500

Удобства

Зона барбекю

Дополнительные действия

RE/MAX
099001901
Похожие объекты
Загрузка...
Зарабатывайте деньги привлекая коллег!

Приглашайте других агентов по недвижимости и получайте 10% комиссии с каждого их продвижения.