Pocitos, 26 De Marzo A Metros Del Wtc

U$S 3,500

~293,000 ₽

Ванные комнаты

3

Гараж

1

Площадь, м²

160

Год постройки

2014

Тип

Офис

более

11 месяцев назад

Просмотры

2313

Alquiler Oficina En Pocitos A Metros Del Wtc

Alquiler Oficina en FIRST TOWER
26 de marzo y Marco Bruto

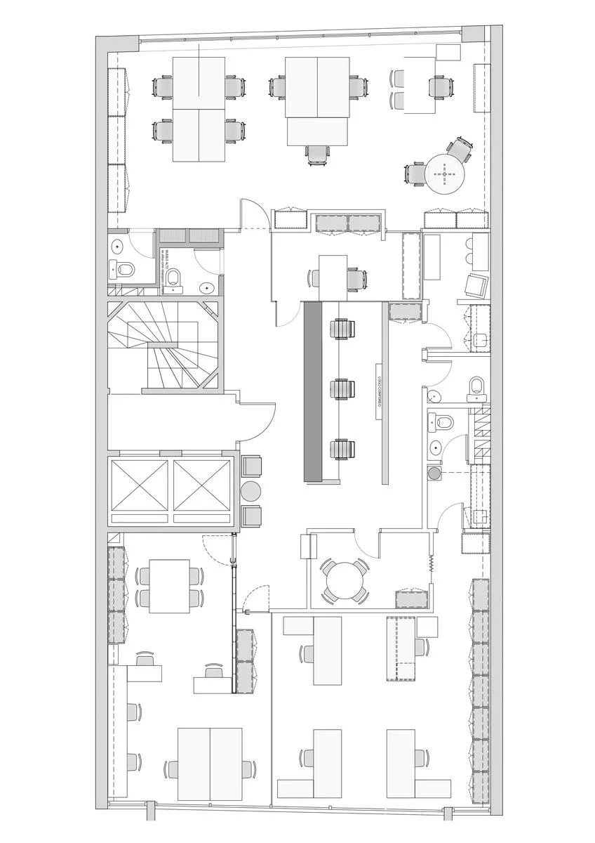
Oficina en el 9° piso, ubicada en estrategico punto en Pocitos a metros del WTC y de la Rambla. 

Esta oficina ofrece un diseño funcional y moderno que combina espacios de trabajo abiertos, oficinas privadas y áreas de reunión, creando un ambiente dinámico y adaptable a distintas necesidades.

Al ingresar, se encuentra una recepción central con un cubículo delimitado por paredes de vidrio, ideal para la atención de visitantes, y un espacio destinado a la recepción de correspondencia.

Hacia la izquierda, se extiende una amplia zona de trabajo abierta con ventanales que ofrecen vista con dirección hacia el puerto de Montevideo, proporcionando un entorno luminoso y agradable.

A la derecha de la recepción, se encuentran dos áreas de trabajo independientes, ideales para equipos que requieran un espacio más reservado o para tareas que requieran mayor concentración.

La oficina cuenta con dos kitchenettes, y con cuatro baños.

Con su distribución eficiente y vistas privilegiadas, esta oficina en Pocitos se adapta perfectamente a empresas que buscan un espacio cómodo y profesional en una ubicación inmejorable.
Mobiliario opcional (Consulte)

Incluye cochera N°6

Gastos comunes $30.000

Tributos anual $18.000
Contribución anual $87.000
Primaria anual $22.500

CONDICIONES DEL ALQUILER:

PLAZO: 5 AÑOS

REAJUSTE: anual por IPC

GARANTÍA: Pólizas (PORTO / SURA / MAPRE / SANTANDER)

Edificio con 10 pisos de oficinas y en piso 11 sala de conferencias totalmente equipada.
Seguridad 24 horas. Cámaras de seguridad en todos los pisos.

Comisión inmobiliaria 1 Mes de alquiler + iva


AOF6536629 - Abate Propiedades - Gestionamos tu garantía de alquiler. Somos corredores de seguros de SURA - PORTO - SANCOR - ZURICH SANTANDER - MAPFRE
.

Характеристики

ID

Тип

Площадь, м²

Вся постройка, м²

Ванные комнаты

898565

Аренда

160

160

3

Гараж

Год постройки

Ссылка

Обновлено

1

2014

PD798A

2024-11-29

Район

3.5к U$S

Район

Montevideo

Адрес

Pocitos, 26 De Marzo A Metros Del Wtc

Удобства

Кабельное телевидение

Дополнительные действия

Abate
270...700 097...950
598...950
Похожие объекты
Загрузка...
Зарабатывайте деньги привлекая коллег!

Приглашайте других агентов по недвижимости и получайте 10% комиссии с каждого их продвижения.