Buceo, *luis Alberto De Herrera

U$S 2,500

~209,000 ₽ / + $ 25,000 Дополнительно

Ванные комнаты

2

Площадь, м²

90

Год постройки

2018

Тип

Офис

более

1 месяц назад

Просмотры

141

Alquiler O Venta - Oficina Pocitos Nuevo - A Metros Wtc -

Workplace Real Estate ofrece:

OFICINA EN ALQUILER EN EDIFICIO DE CATEGORÍA, MUY MODERNO, A PASOS DE WORLD TRADE CENTER.
EDIFICIO DE DISEÑO SOBRE L.A. DE HERRERA. OFICINA PARA ENTRAR. ESPECTACULAR.
LA OFICINA:
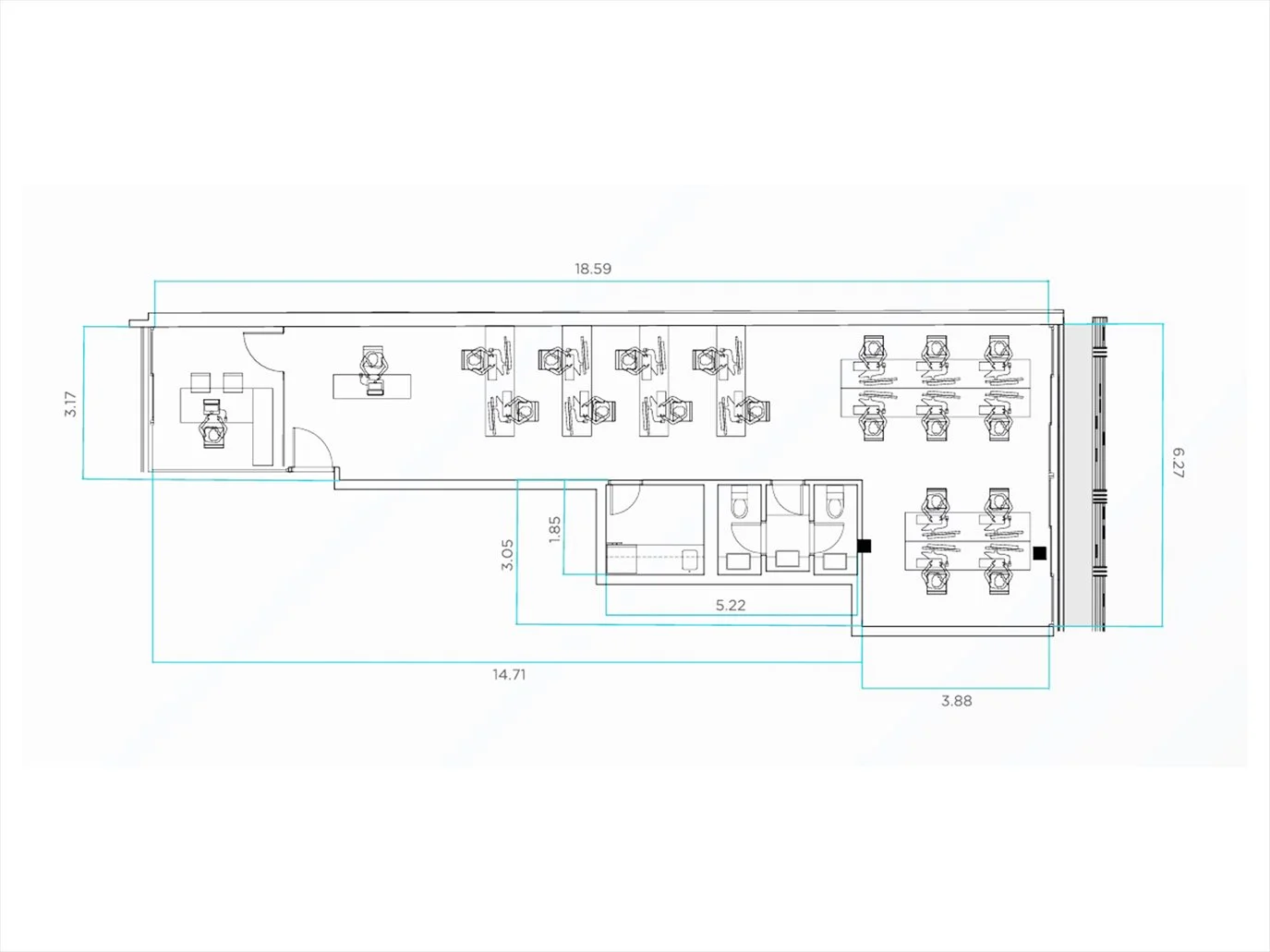
- 90 metros cuadrados propios.
- Al Frente

- Sala de reuniones o despacho
- Espacio de Open Office
- Sala de Reuniones grande u open office hacia 26 de Marzo
- 2 Baños
- Kitchenette

Además:
- Piso técnico con alfombra
- Equipos de Aire Acondicionado instalados.
- Luminarias

ATENCION: 1 COCHERA INCLUIDA EN EL PRECIO

EL EDIFICIO:
- A 30 metros de World Trade Center
- Lobby con control de acceso
- Monitoreo de seguridad
- Servicio de recepción con central telefónica (de luneas a viernes de 8:00 a 18:00)
- Sala de Reuniones de uso común
- Baño de uso común en PB
- Terraza con parrilleros de uso común
- Fachada Doble virio Hermético –DVH-. 100% vidriada

GASTOS COMUNES: $u 10.800 aprox. A rendición de cuentas. Pueden variar mes a mes.

--
CONSULTE: En WORKPLACE REAL ESTATE somos especialistas en inmuebles corporativos.

* La información contenida en el presente documento ha sido proporcionada íntegramente por el/los propietarios del inmueble. WRE no garantizar la exactitud o exhaustividad de la información aquí recogida, ni se responsabiliza por las diferencias o modificaciones que puedan surgir a partir de esta publicación.
* Honorarios por intermediación: 3% + IVA para operaciones de
(CW240454)

Характеристики

ID

Тип

Площадь, м²

Вся постройка, м²

Земля, м²

1253913

Аренда

90

90

902

Ванные комнаты

Год постройки

Дополнительно

Ссылка

Обновлено

2

2018

$25000

CAB38A

2025-09-12

Район

2.5к U$S

Район

Montevideo

Адрес

Buceo, *luis Alberto De Herrera

Удобства

Гараж

Зона барбекю

Шкаф в спальне

Барбекю

Кондиционер

Отопление

Дополнительные действия

Workplace Real Estate
099694656
Похожие объекты
Загрузка...
Зарабатывайте деньги привлекая коллег!

Приглашайте других агентов по недвижимости и получайте 10% комиссии с каждого их продвижения.