$ 98,000

~198,000 ₽

Ванные комнаты

3

Площадь, м²

189

Год постройки

1913

Тип

Комерческое

более

4 месяцев назад

Просмотры

567

Alquiler Local Comercial En Palermo

Corredor Responsable: -
Contacto: Fernanda Veloso
Alquiler de Local en Esquina – Palermo

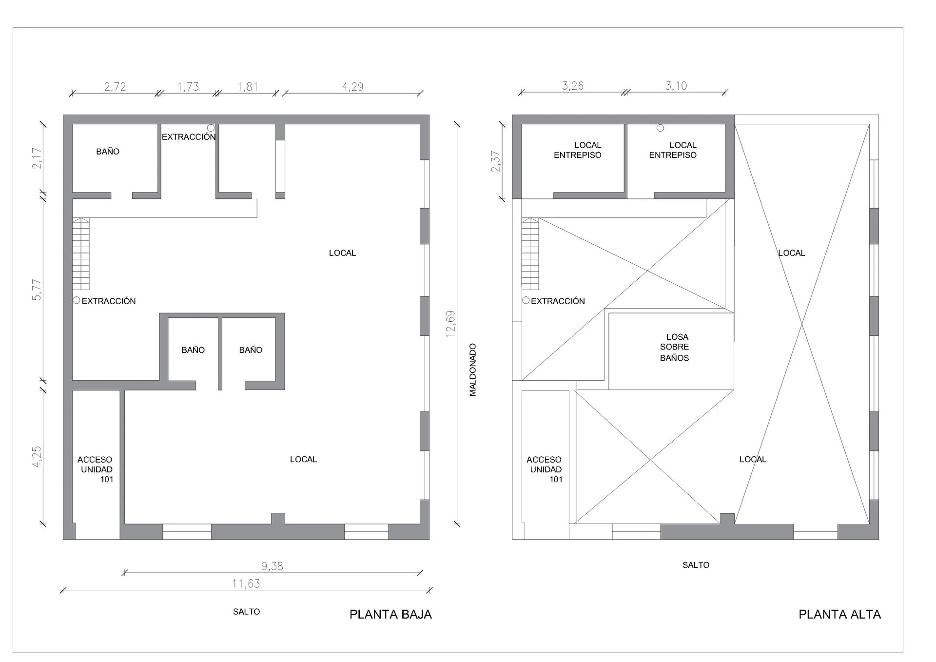
En la intersección de Maldonado y Salto, pleno Palermo, se encuentra este local en esquina totalmente reciclado, con una fachada amplia y muy atractiva que asegura gran visibilidad y presencia comercial.

Características principales:

Esquina con múltiples aberturas al frente y cortinas de enrollar automatizadas.

Planta baja de excelente altura, muy luminosa.

3 baños.

Sótano de 41 m², ideal para depósito.

Instalaciones previstas para extracción de humos, ideal para proyectos gastronómicos.

Instalación eléctrica a nueva.

Sin gastos comunes.

PH de solo dos unidades, ambas totalmente independientes.

Además, existe la opción de alquilar la unidad de arriba para oficinas, depósito adicional o combinar atención al público en planta baja con área administrativa en planta alta.

Un espacio versátil, totalmente reciclado, con gran exposición en esquina y en una ubicación estratégica de Palermo.

Compartimos con todos los colegas!

Comisión inmobiliaria 1 mes de alquiler + iva
Cada Oficina es de propiedad, gestión y desarrollo independiente
La presente publicación describe las características esenciales del inmueble, debiéndose consultar al responsable de la operación por la eventual actualización de las medidas, descripciones arquitectónicas y funcionales, servicios, impuestos, precios y demás información, cuyos valores son aproximados.

Характеристики

ID

Тип

Площадь, м²

Вся постройка, м²

1260864

Аренда

189

189

Ванные комнаты

Год постройки

Ссылка

Обновлено

3

1913

YE24C6

2025-10-14

Район

98к $

Район

Montevideo

Адрес

Palermo, Maldonado 1500

Дополнительные действия

RE/MAX
099001901
Похожие объекты
Загрузка...
Зарабатывайте деньги привлекая коллег!

Приглашайте других агентов по недвижимости и получайте 10% комиссии с каждого их продвижения.