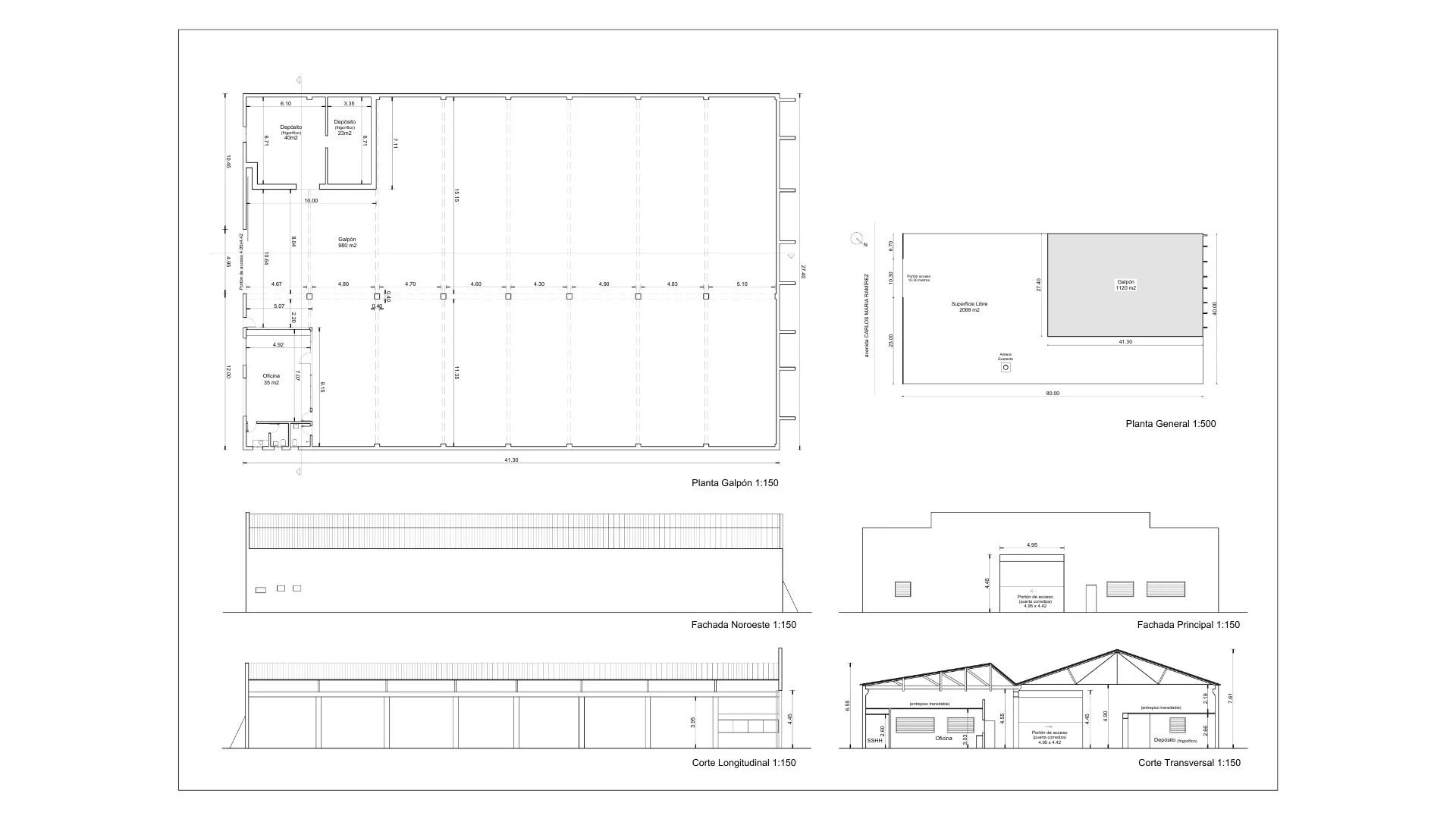
La Teja, Avenida Carlos María Ramírez 1300

U$S 4,000

Ванные комнаты

1

Площадь, м²

1120

Год постройки

1962

более

1 недели назад

Просмотры

38

Alquiler GalpÓn, DepÓsito, Puerto 3000 Metros

Corredor Responsable: -
Contacto: Carolina Paredes
ALQUILER DE GALPÓN, DEPÓSITO PUERTO

Depósito logístico de gran escala con excelente conectividad y amplias áreas operativas

Se ofrece en alquiler destacado predio industrial compuesto por más de 2.000 m² de superficie libre y mas de 1000 m² techados, ideal para operaciones logísticas, distribución o almacenamiento de gran volumen.

El inmueble cuenta con:

1.120 m², con buena altura y funcionalidad operativa.

Sectores de depósito tipo frigorífico (23 m² y 40 m²), aptos para almacenamiento específico o sensible.

Área de oficinas de aproximadamente 35 m², con cocina y baños.

Amplia explanada libre de 2.068 m², ideal para maniobra de camiones, carga/descarga y acopio.

Accesos independientes mediante portones de gran porte, incluyendo ingreso principal de aproximadamente 10,30 metros de ancho, optimizando la circulación de vehículos pesados.

Portones adicionales corredizos que facilitan la operativa interna.

Entrepisos transitables en sectores del depósito, que aportan superficie útil adicional.

El predio presenta una configuración versátil, apta para múltiples rubros industriales y logísticos, con buena relación entre superficie cubierta y espacio abierto, lo que maximiza la eficiencia operativa.

Ubicación estratégica sobre vía de circulación relevante, con fácil acceso para transporte y distribución.

No dudes en agendar tu visita!

Comisión inmobiliaria 1 mes de alquiler + iva.





Cada Oficina es de propiedad, gestión y desarrollo independiente
La presente publicación describe las características esenciales del inmueble, debiéndose consultar al responsable de la operación por la eventual actualización de las medidas, descripciones arquitectónicas y funcionales, servicios, impuestos, precios y demás información, cuyos valores son aproximados.

Характеристики

ID

Тип

Площадь, м²

Вся постройка, м²

1464534

Аренда

1120

1120

Ванные комнаты

Год постройки

Ссылка

Обновлено

1

1962

BF33C4

2026-03-29

Район

4к U$S

Район

Montevideo

Адрес

La Teja, Avenida Carlos María Ramírez 1300

Дополнительные действия

RE/MAX
59895148431
Похожие объекты
Загрузка...
Зарабатывайте деньги привлекая коллег!

Приглашайте других агентов по недвижимости и получайте 10% комиссии с каждого их продвижения.