Carmelo, Altos De Carmelo - Altos De Carmelo - Casa Nueva En Amplio Terreno De 600m2

U$S 85,000

~7,110,000 ₽ / U$S 1,269/m2

Спальни

2

Ванные комнаты

1

Гараж

1

Площадь, м²

67

Тип

Дома

более

5 месяцев назад

Просмотры

557

Casa En Carmelo

En venta casa recientemente construida 
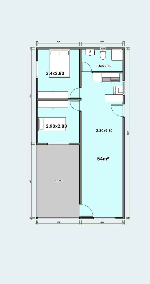
Se trata de una propiedad construida en material de isopanel compuesta por living comedor y cocina integrados, dos dormitorios y baño. 
Cuenta al frente con un alero para auto y amplio patio.
Área construida: 67,90 m2 
Área del terreno: 600m2

Código de referencia: GHO5204933

Si te interesó la propiedad puedes coordinar visita a través de los números:

ALQUILERES: Oficina 45425448 / 099885343

VENTAS: 099425417 (Martín González)/ 099337795 (Carlos Véliz)

Estamos ubicados en Zorrilla de San Martín 447 esquina Roosevelt, Carmelo - Uruguay.

Характеристики

ID

Тип

Площадь, м²

Вся постройка, м²

Земля, м²

1228245

Продажа

67

51

6002

Спальни

Ванные комнаты

Гараж

Ссылка

Обновлено

2

1

1

B69F2D

2025-08-26

Район

85к U$S

Район

Colonia

Адрес

Carmelo, Altos De Carmelo - Altos De Carmelo - Casa Nueva En Amplio Terreno De 600m2

Удобства

WiFi

Кабельное телевидение

Дополнительные действия

Gonzalez Veliz
099...417
598...417
Похожие объекты
Загрузка...
Зарабатывайте деньги привлекая коллег!

Приглашайте других агентов по недвижимости и получайте 10% комиссии с каждого их продвижения.