Solymar, Jorge Lazaroff & Avenida Eduardo Márquez Castro, Ciudad De La Costa Departamento De Canelones, Uruguay

U$S 243,200

~20,400,000 ₽ / U$S 22/m2

Спальни

3

Ванные комнаты

2

Гараж

2

Площадь, м²

11103

Год постройки

2025

Тип

Дома

более

6 месяцев назад

Просмотры

781

Venta Casa 3 Dormitorios. Solymar Sur

@mepropiedades_ VENDE

Inhouse de 4 casas

Bajo la ley de vivienda promovida (18.795)

En una de las mejores zonas de Solymar Sur,

Lazaroff y Márquez Castro.

Calles asfaltadas y señalizadas, buena iluminación, fibra óptica, saneamiento, excelente servicio de recolección de residuos.

Tranquilidad entre árboles de muchas especies.

Ciclo vía que te acerca a la playa o a Giannattasio.

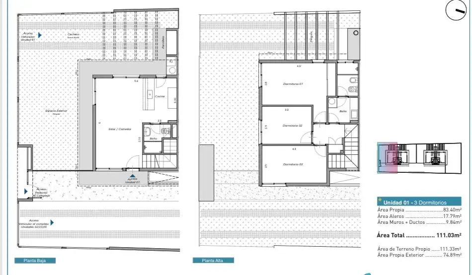
Duplex de 3 dormitorios y dos baños completos, con parrillero propio y cochera para dos vehículos dentro del predio.

Con alto nivel constructivo.

ENTREGA SETIEMBRE DEL 2025

Valor de inversión:

Unidad 01: USD 247.500

Unidad 02: USD 243.200

Unidad 03: USD 243.200

Unidad 04: RESERVADA USD 262.500

Los precios no incluyen el 4% de ocupación ni las comisiones de venta.

Coordiná tu visita al*** y conocé el avance de esta magnífica obra.

Характеристики

ID

Тип

Площадь, м²

Вся постройка, м²

Земля, м²

Спальни

1193691

Продажа

11103

11103

120

3

Ванные комнаты

Гараж

Год постройки

Расстояние до моря

Ссылка

Обновлено

2

2

2025

menos de 1.000 m

I857CF

2025-07-22

Район

243.2к U$S

Район

Canelones

Адрес

Solymar, Jorge Lazaroff & Avenida Eduardo Márquez Castro, Ciudad De La Costa Departamento De Canelones, Uruguay

Удобства

Зона барбекю

Сад

Дополнительные действия

MEPropiedades
+59...320
598...320
Похожие объекты
Загрузка...
Зарабатывайте деньги привлекая коллег!

Приглашайте других агентов по недвижимости и получайте 10% комиссии с каждого их продвижения.