Canelones, Camino De Los Horneros 100

U$S 2,190

Спальни

3

Ванные комнаты

2

Гараж

2

Площадь, м²

535

Год постройки

2024

Тип

Дома

более

2 месяцев назад

Просмотры

343

Alquiler Casa Huertas De Los Horneros

Corredor Responsable: -
Contacto: Marianela Nuñez
• Excelente casa en alquiler en Huertas de los Horneros, tipología 3, desarrollada en 2 niveles.

• La unidad se desarrolla en un terreno de 525m2 de los cuales 135m2 son construidos y 43m2 pertenecen al deck exterior.

• Cuenta con jardín y fondo verde, acceso vehicular y espacio de guardado para 2 o mas autos dentro del predio.

• Todos los espacios tienen una excelente iluminación y ventilación cruzada.

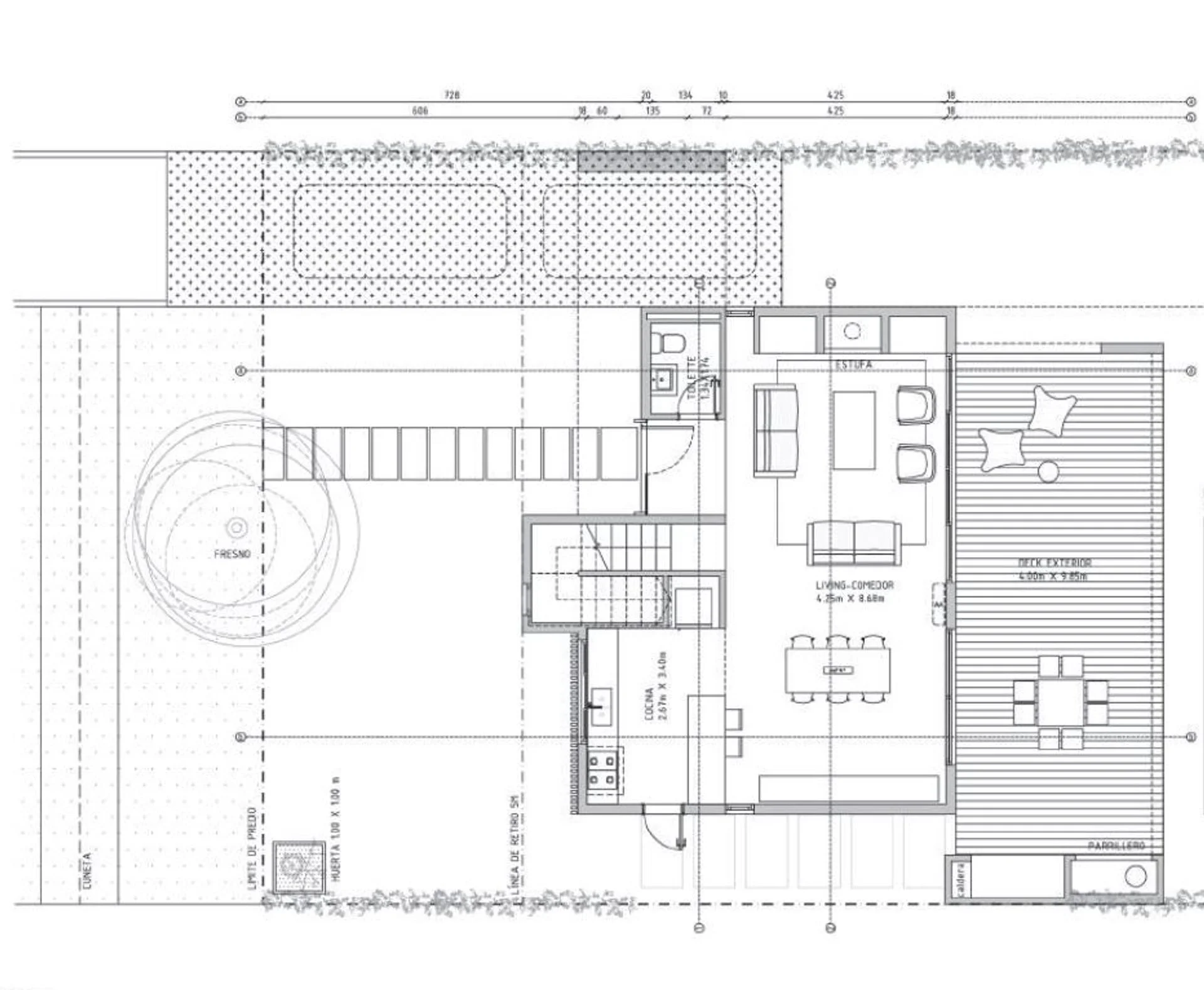
• Al ingresar nos encontramos con un recibidor desde el cual se accede al espacio central de la propiedad donde se desarrolla el amplio living comedor con estufa a leña vinculado también a una cómoda cocina semi integrada mediante una gran isla, la cual cuenta con un gran espacio de almacenamiento, anafe a gas, horno eléctrico y campana de extracción y cuenta con previsión para lavarropas y lavavajilla. Desde este espacio accedemos al maravilloso deck con parrillero y al fondo verde de la propiedad. Además cuenta con un baño social en esta planta.

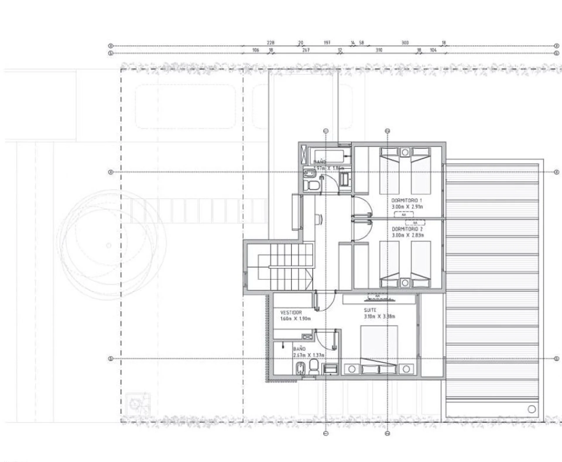
• Por medio de una cómoda escalera accedemos al nivel de planta alta que cuenta con 3 dormitorios, 1 de ellos en suite con vestidor y otro baño completo para uso de los otros dos dormitorios. Todos los dormitorios cuentan con placares empotrados de melamínico blanco, al igual que el vestidor y un placard extra en el sector de circulación hacia los dormitorios. Cuenta con mucho espacio de almacenaje.

• Los baños completos cuentan con ducha en baño principal y bañera en el secundario. Mamparas de vidrio fijo, espejos y accesorios incluidos.

• Todas las aberturas son de aluminio de primera calidad con doble vidrio hermético y mosquiteros.
Cuentan con cortinas de enrollar en aluminio con apertura y cierre motorizado en dormitorios.

• Cuenta con calefacción por losa radiante y agua caliente a caldera a gas.

Gastos comunes: $10.000 aprox
Garantías: Aseguradoras o aval bancario, consultar por otras garantías.

• El complejo:
- Seguridad 24hs
- Clubhouse
- Piscina abierta
- Canchas de tenis y padel
- Cowork para residentes
- Entorno natural con huertas y granja para los niños
- Área de juegos infantiles
- Day care, jardín de infantes
- Talleres de cocina, jardinería y paisajismo, pintura y cerámica
- Puntos de recarga para autos eléctricos
- Monopatines eléctricos y bicicletas para uso dentro del barrio

Comisión inmobiliaria una cuota de alquiler + IVA
Compartimos con todos los colegas

Cualquier consulta no dudes en preguntar!

Cada Oficina es de propiedad, gestión y desarrollo independiente
La presente publicación describe las características esenciales del inmueble, debiéndose consultar al responsable de la operación por la eventual actualización de las medidas, descripciones arquitectónicas y funcionales, servicios, impuestos, precios y demás información, cuyos valores son aproximados.

Характеристики

ID

Тип

Площадь, м²

Вся постройка, м²

Земля, м²

Спальни

1305959

Аренда

535

135

5352

3

Ванные комнаты

Гараж

Год постройки

Ссылка

Обновлено

2

2

2024

LE1640

2025-11-06

Район

2.2к U$S

Район

Canelones

Адрес

Canelones, Camino De Los Horneros 100

Удобства

Зона барбекю

Бассейн

Дополнительные действия

RE/MAX
099001901
Похожие объекты
Загрузка...
Зарабатывайте деньги привлекая коллег!

Приглашайте других агентов по недвижимости и получайте 10% комиссии с каждого их продвижения.