Parque Batlle, 01 Vila 013

U$S 191,409

R$ ~1,010,000 / U$S 3,480/m2

Quartos de dormir

2

Banheiros

1

Garagem

1

M² construído

55

Ano de construção

2027

Tipo de propriedade

Apartamento

mais do que

1 semana

Visualizações

30

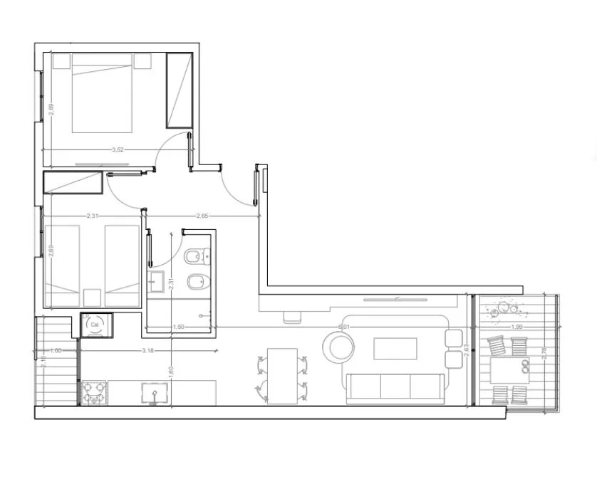
Venta Departamento 2 Dormitorios Amenities A Estrenar - Parque Batlle

Venta Departamento 2 Dormitorios Parque Batlle.
Living comedor cocina integrada salida a Balcón.
2 Dormitorios.
Baño completo.

Subsuelo con cocheras opcional a 20.000 dólares y bike parking para todos los apartamentos. El ingreso al edificio en planta baja se caracteriza por tener un camino singular con espacios de bike parking y postas verdes que serán espacios destinados para estar, disfrutar, leer o trabajar. Además, el hall del edificio posee un área de cowork interior. 
Con el fin de coronar el bloque alto, un conjunto de amenities se despliegan en el último nivel.

Las aberturas son de aluminio.

Pisos de porcelanato o similar en baños.

Pisos vinílicos o similares.

Pre-Instalación de termotanque eléctrico individual para agua caliente.

Calefacción: Preinstalación de Aire Acondicionados Frío/ Calor.

Instalación para TV cable y Teléfono.

Cocinas: mesadas de granito, pileta de acero inoxidable, muebles bajo mesada.

Baños: Artefactos sanitarios y griferías de primera calidad.

Domótica: incluye Control de ingreso a través de una cerradura electrónica, control de iluminación y control de cortinas (No incluye cortinas)

Todos los datos son facilitados por los propietarios, la empresa no se hace responsable de los mismos

Detalhes da propriedade

ID

Tipo de propriedade

Tipo de operação

M² construído

Quartos de dormir

1457048

Apartamento

Oferta

49

2

Banheiros

Garagem

Ano de construção

Referência

Atualizada

1

1

2027

HCD99B

2026-03-24

Localização

191.4к U$S

Localização

Montevideo

Endereço

Parque Batlle, 01 Vila 013

Confortos de propriedade

Varanda

Elevador

WiFi

Instalação de TV a Cabo

Ar Condicionado

Lavanderia

Sala de Estar e Jantar

Animais de Estimação Permitidos

Ações Adicionais

Afilia Propiedades
096...044 097...033
598...044
Objeto similar
Carregando...
Ganhe dinheiro indicando colegas!

Convide outros corretores de imóveis e ganhe 10% de comissão por cada promoção que fizerem.