Pocitos, Doctor Enrique Muñoz 900

U$S 30,000

R$ ~161,000

Banheiros

1

M² construído

9

Ano de construção

2022

Tipo de propriedade

Negócio especial

mais do que

4 meses

Visualizações

590

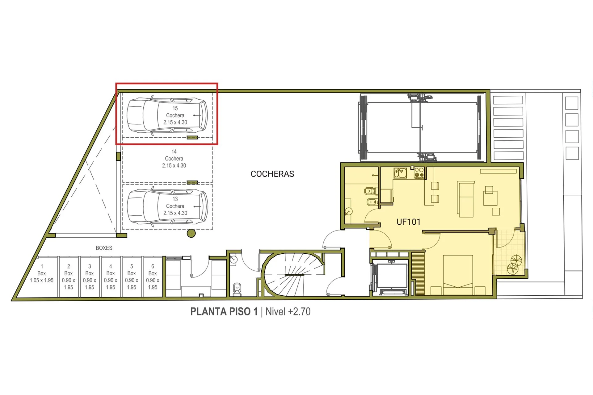
Venta De Cochera A Metros De La Ort, Pocitos.

Corredor Responsable: -
Contacto: Gabriela Sierra
Venta de cochera en un punto de gran demanda en el barrio de Pocitos. 

Ubicado en el edificio Yass Pocitos sobre la calle Enrique Muñoz. Zona de colegios y Universidades, con alta demanda de estacionamientos.

Cochera ubicada en el primer piso, de muy fácil acceso. El acceso a la misma es través del portón exterior del edificio y cuenta con un ascensor montacargas que conecta con los distintos niveles de estacionamiento. Esta unidad de cochera se encuentra de frente saliendo del ascensor.

Dimensiones: 2.15 x 4.30m

Gastos comunes $ 1526
Tributos domiciliarios bimensuales: $ 1558
Contribución anual $1500

Consulte por bauleras disponibles.

Cada Oficina es de propiedad, gestión y desarrollo independiente
La presente publicación describe las características esenciales del inmueble, debiéndose consultar al responsable de la operación por la eventual actualización de las medidas, descripciones arquitectónicas y funcionales, servicios, impuestos, precios y demás información, cuyos valores son aproximados.

Detalhes da propriedade

ID

Tipo de propriedade

Tipo de operação

M² construído

1244919

Negócio especial

Aluguel

9

Banheiros

Ano de construção

Referência

Atualizada

1

2022

B6C39E

2025-09-12

Localização

30к U$S

Localização

Montevideo

Endereço

Pocitos, Doctor Enrique Muñoz 900

Ações Adicionais

RE/MAX Focus
Objeto similar
Carregando...
Ganhe dinheiro indicando colegas!

Convide outros corretores de imóveis e ganhe 10% de comissão por cada promoção que fizerem.