Centro, Av. Uruguay 1400

U$S 99,000

R$ ~531,000 / + $ 6,500 gastos comuns / U$S 2,475/m2

Quartos de dormir

1

Banheiros

1

M² construído

40

Ano de construção

2067

Tipo de propriedade

Apartamento

mais do que

4 meses

Visualizações

399

Venta De Apartamento De 1 Dormitorio En Centro. Cerca De Todas Las Facultades.

Venta de apartamento de 1 dormitorio en Centro. Uruguay y Germán Barbato. Cerca de todas las Facultades.

Multimedia disponible (solicitar link):
*Fotos profesionales.
*Video HD + tomas con dron.
*Recorrido virtual.
*Amoblamiento virtual de referencia.
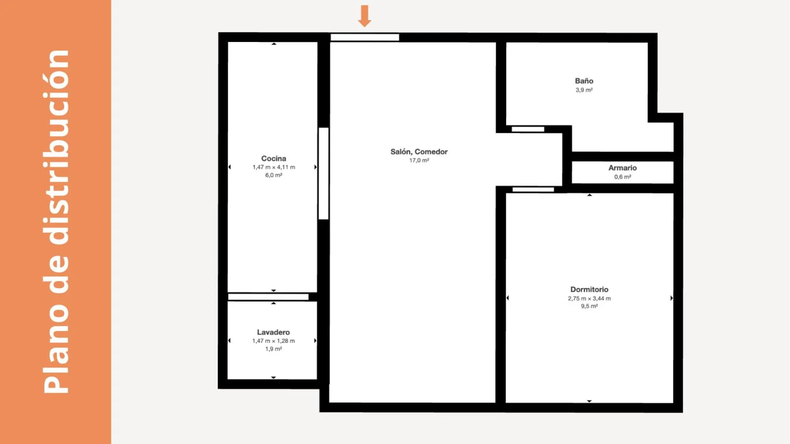
*Plano de distribución.

General
Propiedad horizontal.
Superficie cubierta de 45 m2 aprox. más 2 m2 aprox. de terraza lavadero. En 1 planta.
Construcción de 1958. Buen estado general, con baño actualizado.
Sin garaje. Existen garajes en venta y alquiler en los alrededores.
Ubicación en altura: piso 4 por ascensor. Ubicación en planta: frente.
Cantidad de pisos del edificio: 6. Apartamentos por piso: 4.

Living-comedor:
Ambiente luminoso de 16 m2 aprox., con gran ventanal de aluminio al frente, orientación norte. Pisos de parquet en muy buen estado.

1 dormitorio:
Dormitorio de 12 m2 aprox., piso de parquet, placard empotrado. Amplio ventanal con orientación norte, buena entrada de luz natural.

1 baño:
Baño reciclado a nuevo, revestido en porcelanato. Cuenta con ducha tipo teléfono, cortina y espacio para mampara. Artefactos modernos.

Cocina independiente con terraza lavadero:
Cocina definida con placares aéreos y bajo mesada, mesada de mármol, revestimiento cerámico. Salida a terraza lavadero con cerramiento de ladrillo calado.

Otras consideraciones:
Excelente luminosidad y ventilación.
Piso de parquet en muy buen estado.
Ascensor.

Ubicación estratégica cerca de Av. 18 de Julio y con rápida conexión hacia la rambla.

Gastos comunes: $ 6500.
Incluye loza radiante, ascensores, limpieza de vidrios del edificio, destapado de graseras, agua, recolección de residuos (no es necesario salir a la calle, ya que en el deposito del edificio, hay contenedores que se retiran todos los días, Fondo de reserva de 1.500.000 pesos.
Contribución: - $ 2342
Primaria: -
Tributos: - $ 1713

Venta: U$S 99.000. Admite préstamo bancario.

Colegas: esta propiedad se comparte.

Los datos, disponibilidad y vigencia de las propiedades pueden variar y/o no ser exactos. Los mismos son publicados a modo de referencia y deberán ser confirmados por los compradores. Aplica comisión inmobiliaria de 3% + IVA.

Detalhes da propriedade

ID

Tipo de propriedade

Tipo de operação

M² construído

Quartos de dormir

1256314

Apartamento

Oferta

40

1

Banheiros

Ano de construção

Gastos comuns

Referência

Atualizada

1

2067

$6500

PC1243

2025-10-15

Localização

99к U$S

Localização

Montevideo

Endereço

Centro, Av. Uruguay 1400

Confortos de propriedade

Aquecimento Individual

Água Quente Central

Lavanderia

Ações Adicionais

Properfy
+59899597794
Objeto similar
Carregando...
Ganhe dinheiro indicando colegas!

Convide outros corretores de imóveis e ganhe 10% de comissão por cada promoção que fizerem.