La Blanqueada, Escocia 2200

U$S 138,000

R$ ~740,000 / U$S 2,262/m2

Quartos de dormir

2

Banheiros

1

M² construído

61

Ano de construção

2025

Tipo de propriedade

Apartamento

mais do que

3 meses

Visualizações

288

Venta Apto 2 Dorm C/balcón Ley Vis Estrena Feb26

Corredor Responsable: -
Contacto: María Noel Tilve Rapela
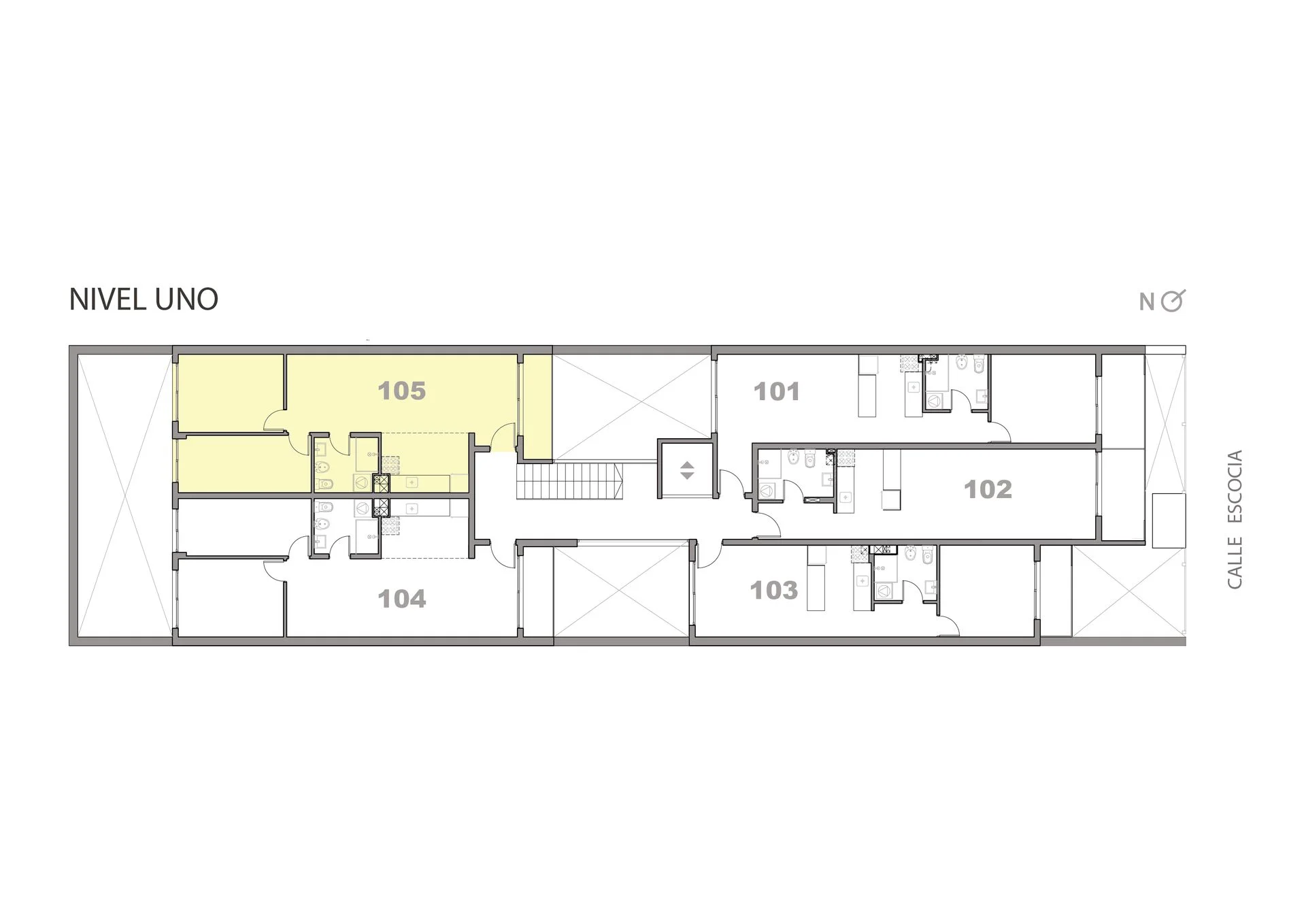
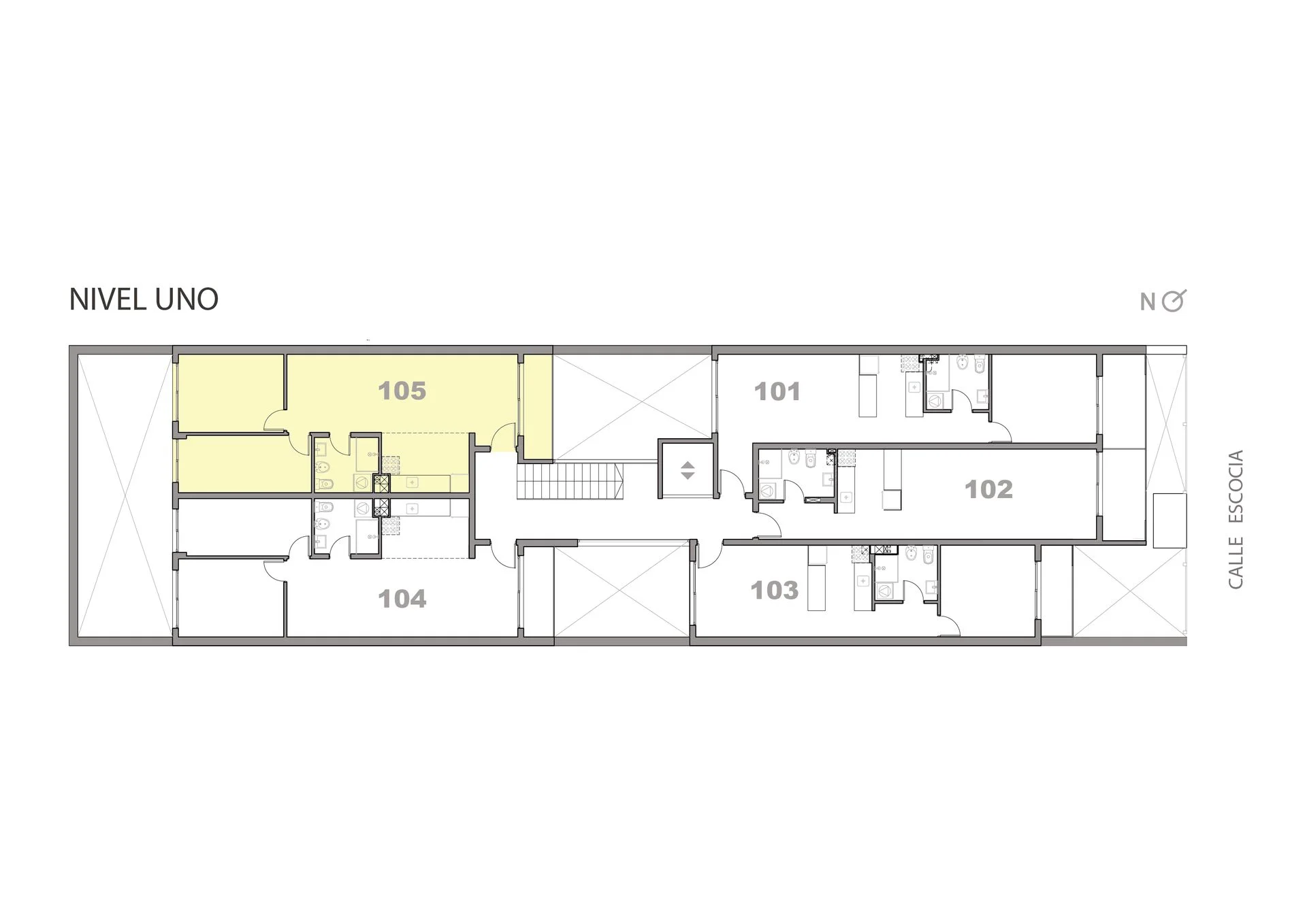
Unidad 105 – Apartamento de 2 dormitorios con balcón en Edificio Penino - estrena febrero 2026
INVERSORES - Renta neta estimada: 6%

Metraje interior (incluye muros) 57,60 m² y balcón de 3,75 m², al contrafrente.

Edificio con 15 apartamentos en total (planta baja y 2 niveles). La construcción es tradicional, con muros exteriores y divisorios entre unidades en bloques de hormigón celular HCCA, lo que garantiza un excelente aislamiento térmico y acústico.

El apartamento cuenta con:

- Aberturas de aluminio negro con doble vidrio hermético (DVH).
- Cortinas de enrollar de aluminio con poliuretano inyectado.
- Pisos vinílicos en área estar/dormitorio y porcelanato en baño.
- Previsión para aires acondicionados.

El edificio ofrece ascensor, sistema de cámaras de seguridad en accesos y áreas comunes, conexiones para TV cable e internet y portero eléctrico.

Ley de vivienda promovida / Beneficios fiscales:
- Exoneración de ITP
- Exoneración de IVA en el precio de compra
- Exoneración de impuesto al Patrimonio por 10 años
- Exoneración de impuesto a la renta de los alquileres por 10 años (IRPF)

Ubicado en una zona residencial consolidada, a 2 cuadras de Bv. Batlle y Ordóñez y a 3 cuadras de Av. Italia, con gran conectividad y servicios cercanos.

Gastos de ocupación: 4%

Honorarios de inmobiliaria: 3% + iva
Otras unidades disponibles de 2 dormitorios, 1 dormitorio y monoambientes.
Compartimos con todos los colegas.
Cada Oficina es de propiedad, gestión y desarrollo independiente
La presente publicación describe las características esenciales del inmueble, debiéndose consultar al responsable de la operación por la eventual actualización de las medidas, descripciones arquitectónicas y funcionales, servicios, impuestos, precios y demás información, cuyos valores son aproximados.

Detalhes da propriedade

ID

Tipo de propriedade

Tipo de operação

M² construído

Quartos de dormir

1241542

Apartamento

Oferta

61

2

Banheiros

Ano de construção

Referência

Atualizada

1

2025

U9152D

2025-09-09

Localização

138к U$S

Localização

Montevideo

Endereço

La Blanqueada, Escocia 2200

Ações Adicionais

RE/MAX Focus
Objeto similar
Carregando...
Ganhe dinheiro indicando colegas!

Convide outros corretores de imóveis e ganhe 10% de comissão por cada promoção que fizerem.