U$S 265,700

R$ ~1,400,000 / U$S 3,201/m2

Quartos de dormir

2

Banheiros

1

Garagem

1

M² construído

83

Tipo de propriedade

Apartamento

mais do que

1 mês

Visualizações

172

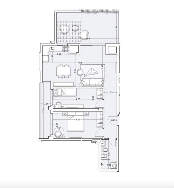
Venta - Apartamento 2 Dormitorios - Unidad 803a - Nórdico

En la vibrante esquina de Luis. A de Herrera y Joanicó surge Nórdico. En un entorno dinámico y en constante evolución construimos un edificio con un total de 209 apartamentos, monoambientes, de 1 y de 2 dormitorios. Nórdico no es solo un lugar para vivir, es un espacio pensado para disfrutar la vida al máximo, con más de 1500 m2 de áreas comunes para compartir. Una atractiva plaza elevada y escalonada te da la bienvenida. Con amplias terrazas que te ofrecen vivir experiencias únicas al aire libre. Además, podrás disfrutar de barbacoas, gimnasio exterior e interior, áreas de Cowork, zona pet friendly, salón de eventos, canchas y área de juegos al aire libre en un espacio seguro diseñado para todas las edades. 

El apartamento de 1 dormitorio, ubicado en el piso 8 hacia el frente del edificio, cuenta con living-comedor, terraza, cocina integrada, con mobiliario bajo mesada y aéreos. Baño equipado con instalación de lavarropas y calefón. Pisos de vinilico de alto transito Verona, cortinas de enrollar motorizadas y previsión para aire acondicionado. 

Edificio amparado por la ley 18.795 de la agencia nacional de vivienda, con beneficios significativos. 

*Garaje opcional 

Unidad 803A - USD 265.700 - Pago Contado 

Entrega Inmediata 

¡Consúltanos por esta y otras unidades!

Detalhes da propriedade

ID

Tipo de propriedade

Tipo de operação

Quartos de dormir

1448580

Apartamento

Oferta

2

Banheiros

Garagem

Referência

Atualizada

1

1

OC7C2C

2026-02-24

Confortos de propriedade

Varanda

Armário de Cozinha

Terraço

Churrasqueira

Academia

Lavanderia

Sala de Jogos

Pátio

Ações Adicionais

Ventura
+59891221200
Objeto similar
Carregando...
Ganhe dinheiro indicando colegas!

Convide outros corretores de imóveis e ganhe 10% de comissão por cada promoção que fizerem.