Punta Carretas, Williman 500

U$S 245,000

R$ ~1,290,000 / U$S 2,552/m2

Quartos de dormir

1

Banheiros

1

Garagem

1

M² construído

96

Ano de construção

2025

Tipo de propriedade

Apartamento

mais do que

1 semana

Visualizações

30

Venta Apartamento 1 Dormitorio Pta Carretas Cocher

Corredor Responsable: -
Contacto: Nicolás Calzada
Hermosos apartamentos de diseño en PUNTA CARRETAS.

EDIFICIO AIME.

Edificio en construcción a estrenar en julio de 2025.

El proyecto desarrolla 31 unidades, contando con confortables tipologías MONOAMBIENTE, 1-2-3 DORMITORIOS tradicionales y en DUPLEX con expansión a terrazas y patios privados, privilegiando
el diseño y la luminosidad.

Amenities: GIMNASIO, LAVADERO, GARAJES, BOXES, sector de guardado de bicicletas y amplias TERRAZAS CON PARRILLERO de uso común en el último nivel.

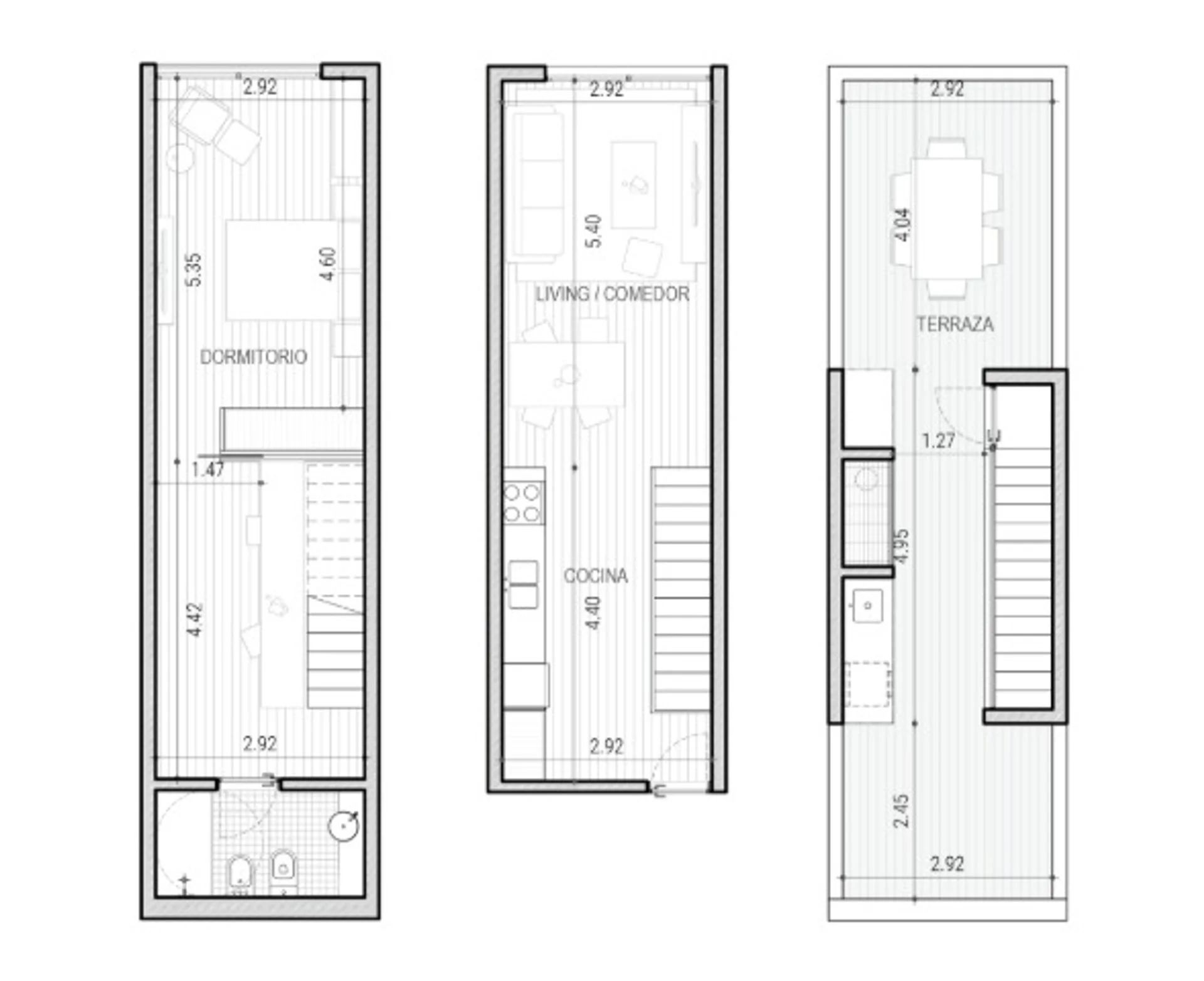
La unidad 306 se desarrolla de la siguiente manera:

El apartamento se desarrolla en tres plantas.
Planta baja: Living comedor con salida a patio de 17 m2 y cocina integrada.
Primer piso: 1 dormitorio y 1 baño completo.
Terraza de 30 m2

Incluye cochera de muy buenas dimensiones y fácil accesibilidad.


No dudes en consultar!
Cada Oficina es de propiedad, gestión y desarrollo independiente
La presente publicación describe las características esenciales del inmueble, debiéndose consultar al responsable de la operación por la eventual actualización de las medidas, descripciones arquitectónicas y funcionales, servicios, impuestos, precios y demás información, cuyos valores son aproximados.

Detalhes da propriedade

ID

Tipo de propriedade

Tipo de operação

Quartos de dormir

Banheiros

1450811

Apartamento

Oferta

1

1

Garagem

Ano de construção

Referência

Atualizada

1

2025

B470BA

2026-03-21

Localização

245к U$S

Localização

Montevideo

Endereço

Punta Carretas, Williman 500

Ações Adicionais

RE/MAX
098...461
598...461
Objeto similar
Carregando...
Ganhe dinheiro indicando colegas!

Convide outros corretores de imóveis e ganhe 10% de comissão por cada promoção que fizerem.