La Blanqueada, Bv. JosÉ Batlle Y OrdoÑez 2500

U$S 123,465

R$ ~662,000 / + $ 3,900 gastos comuns / U$S 2,572/m2

Quartos de dormir

1

Banheiros

1

M² construído

48

Ano de construção

2025

Tipo de propriedade

Apartamento

mais do que

4 meses

Visualizações

437

Venta Apartamento 1 Dormitorio La Blanqueada

¡TreeHouse Bienes Raíces Vende!






Apartamento de 1 dormitorio con terraza en La Blanqueada. Fotos de una unidad similar, ver plano. 

Edificio en Construcción, Fecha de entrega: Noviembre de 2025. Valor por pago contado. 

Se ubica sobre Bv. José Batlle y Ordóñez esquina Justo Maeso, reuniendo conectividad, locomoción y variedad de servicios. Zona con alta demanda de vivienda dada la cantidad de puestos de trabajo.

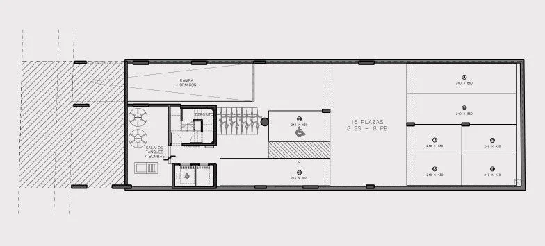
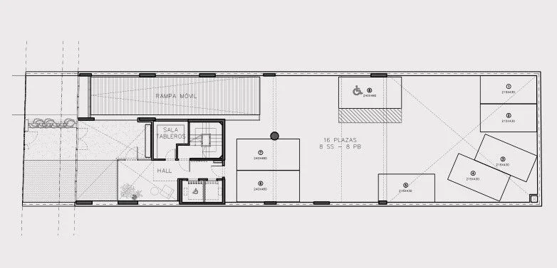
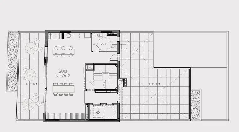
Site Propios es un proyecto pensado para el público inversor que logra un perfecto equilibrio entre rentabilidad, calidad y seguridad. El proyecto se compone de 32 unidades de vivienda donde encontraremos unidades de 1 y 2 dormitorios. Además cuenta con 16 plazas de cochera en planta baja y subsuelo, terrazas y zona de parrilleros.

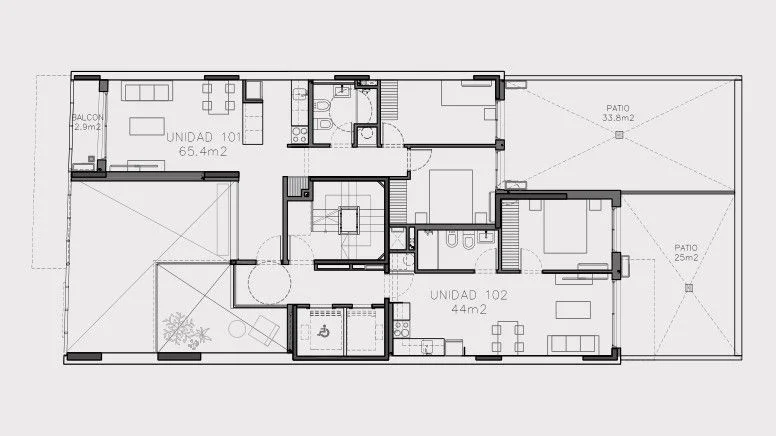
Unidad 202 - Apartamento que cuenta con 48 m2 totales, compuesto por un living comedor con salida a terraza y cocina integrada, baño y 1 dormitorio.

El apartamento contará con las siguientes características: placares sobre y bajo mesada en cocina, pre-instalación de aire acondicionado, aberturas de aluminio con persiana integrada, revestimiento de porcelanato en baño y cocina, pisos de vinílico símil madera y muros de mampostería tradicional tanto exteriores como interiores.

Proyecto desarrollado bajo el amparo de la Ley de Viviendas Promovidas (Ley Nº 18.795) por lo que ofrece exoneración del ITP (2% del valor catastral), exoneración de IRAEIRPF a las rentas generadas por 10 años y exoneración del IP por 10 años.

Cocheras opcionales desde U$S15.000.

Acepta financiación bancaria de hasta un 70%. 

Gastos de ocupación 4%.

Consulte por otras unidades similares de 1 y 2 dormitorios.


.
Caracteristicas: PORTERO ELECTRICO, APTO PARA FAMILIASNIñOS, PERMITE MASCOTAS, PLACARD EN COCINA

XINTEL (TBR-TBR-4317)

Detalhes da propriedade

ID

Tipo de propriedade

Tipo de operação

M² construído

Quartos de dormir

1226194

Apartamento

Oferta

44

1

Banheiros

Ano de construção

Gastos comuns

Referência

Atualizada

1

2025

$3900

O9E335

2025-09-10

Localização

123.5к U$S

Localização

Montevideo

Endereço

La Blanqueada, Bv. JosÉ Batlle Y OrdoÑez 2500

Confortos de propriedade

Área de Churrasco

Armário de Cozinha

Terraço

Terraço com Lavanderia

Elevador

Pátio

Ações Adicionais

TreeHouse Bienes Raíces
598...673
598...673
Objeto similar
Carregando...
Ganhe dinheiro indicando colegas!

Convide outros corretores de imóveis e ganhe 10% de comissão por cada promoção que fizerem.