Parque Batlle, José Brito Foresti

U$S 179,706

R$ ~963,000 / U$S 3,667/m2

Quartos de dormir

2

Banheiros

1

M² construído

49

Ano de construção

2025

Tipo de propriedade

Apartamento

mais do que

4 meses

Visualizações

406

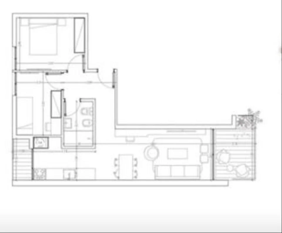
Venta Apartamento A Estrenar De 2 Dormitorios Con Patio

OCUPACION INMEDIATA

Living comedor con salida a divino patio, cocina integrada, 2 dormitorios y un baño.-

Edificio a estrenar, muy bien ubicado, a metros del parque y cerca de grandes avenidas, con locomoción fluida a todos los puntos de la ciudad. Cuenta con tecnología de primer nivel y sustentabilidad.
Amenities: Co working, wet spa, solárium, huerta orgánica, jardines internos y frontales y barbacoa. También cuenta con lavadero de uso común y tecnología bluetooth para conexiones de audio y video. Pisos vinilicos símil madera y porcelanato en baño y cocina. Edificio construido bajo la ley de vivienda promovida.
Gastos de ocupación % 4.75
Garage opcional U$S 20.000.-
(CW238952)

Detalhes da propriedade

ID

Tipo de propriedade

Tipo de operação

M² construído

M² da terra

1235207

Apartamento

Oferta

49

762

Quartos de dormir

Banheiros

Ano de construção

Referência

Atualizada

2

1

2025

YB2B25

2025-10-08

Localização

179.7к U$S

Localização

Montevideo

Endereço

Parque Batlle, José Brito Foresti

Confortos de propriedade

Aquecimento Individual

Área de Churrasco

Armário no Quarto

Elevador

Churrasqueira

Aquecimento Central

Pátio

Animais de Estimação Permitidos

Ações Adicionais

ALEJANDRA BASIGALUZ PROPIEDADES
098...070
598...070
Objeto similar
Carregando...
Ganhe dinheiro indicando colegas!

Convide outros corretores de imóveis e ganhe 10% de comissão por cada promoção que fizerem.