Punta Carretas, 21 De Setiembre Y Tomas Diago

U$S 313,900

R$ ~1,870,000 / + $ 1,500 gastos comuns / U$S 4,549/m2

Banheiros

1

M² construído

69

Ano de construção

2025

Tipo de propriedade

Local comercial

mais do que

4 meses

Visualizações

481

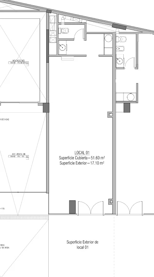
Local En Venta Con Renta


Local nuevo en venta sobre 21 de Setiembre. Con una renta actual de USD1900.
El local comercial tiene una superficie total de 69 m², de los cuales 52 m² son cubiertos, proporcionando un espacio cómodo y funcional. Entre sus características, dispone de agua corriente, luz, aire acondicionado y está destinado para uso comercial, asegurando un ambiente óptimo para su actividad empresarial.

Adicionalmente, el local cuenta con gastos comunes de $800, facilitando su mantenimiento y operación. Esta es una oportunidad única de inversión en uno de los puntos más estratégicos de Punta Carretas, beneficiándose de la gran afluencia de personas y la calidad del entorno. No dude en aprovechar esta excelente opción que combina ubicación, modernidad y funcionalidad.

Detalhes da propriedade

ID

Tipo de propriedade

Tipo de operação

M² construído

Banheiros

1235192

Local comercial

Oferta

52

1

Ano de construção

Gastos comuns

Referência

Atualizada

2025

$1500

P8C036

2025-09-07

Localização

313.9к U$S

Localização

Montevideo

Endereço

Punta Carretas, 21 De Setiembre Y Tomas Diago

Ações Adicionais

MAN
099...204
598...204
Objeto similar
Carregando...
Ganhe dinheiro indicando colegas!

Convide outros corretores de imóveis e ganhe 10% de comissão por cada promoção que fizerem.