U$S 515,000

R$ ~2,690,000 / + $ 20,500 gastos comuns / U$S 3,239/m2

Quartos de dormir

3

Banheiros

2

Garagem

2

M² construído

159

Ano de construção

2010

Tipo de propriedade

Apartamento

mais do que

6 meses

Visualizações

1009

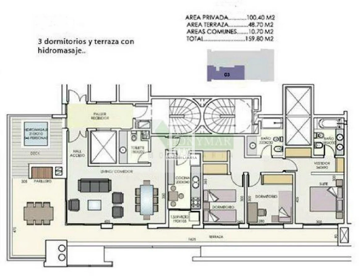
Diamantis Piso Alto, 3 Dorm, Parrillero Propio. Garaje Doble

Se vende con renta, U$S 2.000 x mes + gastos comunes.

Contrato hasta 2027 con los ajustes correspondientes.

Esquinero al Norte. Terraza grande con parrillero y jacuzzi enorme.

La mejor orientación del sol para todo el año.

Garaje doble y baulera, ubicados en el 3er subsuelo.

Gastos comunes $ 20.500 pesos por mes.



Edificio de categoría ubicado en un espacio urbano de Montevideo, en la conjunción de los barrios Buceo y Malvín, con excelente accesibilidad a todos los puntos de la capital como también del Este.

Ofreciendo espacios de uso común enfocados en la recreación como también en lo profesional, dando la posibilidad así de contar con sala de reuniones sin costo, piscinas, salones de fiestas y más. El espacio central del predio se diseña como un jardín integrador de sectores y actividades que se desarrolla en dos niveles y reúne las áreas de esparcimiento y servicios comunes.

Para garantizar el disfrute de los residentes, Diamantis Plaza ofrece los siguientes espacios de uso común:

- Dos salones de fiestas con capacidad para 100 personas.

- Tres salas gourmet horno de barro, cocinas, planchas y parrilleros.

- Playroom con Pool, mesa de pingpong y dos mesas de póker.

- 2 Saunas para hombres y mujeres.

- 6 barbacoas

- Guardería

- En cada torre hay una sala de conferencia sin costo.

- Lavadero de autos.

- Canchas: 1 de básquet más dos arcos para futbol mini, una de fútbol 5 y cancha de frontón.

- Piscinas: 1 abierta para niños y 2 para adultos, 4 cerradas y 4 jacuzzis.



Su estratégica ventaja es estar ubicado próximo a los servicios que tanto necesitamos en el día a día, entre los que podemos encontrar:

- Paradas de ómnibus hacia cualquier punto de la capital o el interior del país.

- Centros de estudio.

- Universidades.

- Jardín de infantes.

- Farmacias.

- Supermercados.

- Restaurantes.

- PanaderíaRotisería.

- Fábrica de pastas.

- Centros de estudio.

- Gimnasios.

- Veterinaria.

- Centros asistenciales.

- Plazas.

- Lugares verdes y de esparcimiento.

- Rambla.

- Estaciones de servicio.
Referencia Interna : Tera-28880

Detalhes da propriedade

ID

Tipo de propriedade

Tipo de operação

M² construído

M² da terra

Quartos de dormir

Banheiros

1195765

Apartamento

Oferta

189

1592

3

2

Garagem

Ano de construção

Gastos comuns

Distância do mar

Referência

Atualizada

2

2010

$20500

200 m

VE6123

2025-08-14

Confortos de propriedade

Varanda

Área de Churrasco

Academia

Piscina

Lavanderia

Sauna

Ações Adicionais

Nieto y Páez
424...515 094...072 094...711
598...072
Objeto similar
Carregando...
Ganhe dinheiro indicando colegas!

Convide outros corretores de imóveis e ganhe 10% de comissão por cada promoção que fizerem.