Centro, Canelones Y Aquiles Lanza - U103

U$S 108,000

R$ ~566,000 / U$S 2,700/m2

Banheiros

1

M² construído

40

Tipo de propriedade

Apartamento

mais do que

1 semana

Visualizações

42

Apartamento Monoambiente En Venta En Centro - 103

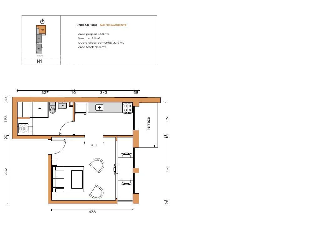
Apartamento monoambiente a estrenar en venta en Centro.
Piso 1 al contrafrente con orientación este.
Monoambiente con terraza, cocina integrada con placares sobre y bajo mesada, anafe y campana, termotanque eléctrico, conexión para lavarropas.  1 baño completo. Pisos de porcelanato. Preinstalación para aire acondicionado.
Cuenta con portero visor, cámaras en áreas comunes, espacios individuales para bicicletas en cada apartamento, barbacoa con parrillero y solárium.
Con los beneficios de la Ley de Vivienda de Interés social.
Gastos de ocupación 3%
u 103
Ref. ES
Canelones
Referencia ABU51849 AP5406454







Honorarios por intermediación:
3% + IVA para operaciones de compra.
Un mes de alquiler + IVA para operaciones de alquiler.

La información contenida en el presente documento ha sido proporcionada íntegramente por el/los propietarios del inmueble.

Arquibrokers Servicios Inmobiliarios no se responsabiliza por las diferencias ni las modificaciones que puedan surgir a partir de este documento.

Detalhes da propriedade

ID

Tipo de propriedade

Tipo de operação

M² construído

1450769

Apartamento

Oferta

37

Banheiros

Referência

Atualizada

1

A8D7B5

2026-03-21

Localização

108к U$S

Localização

Montevideo

Endereço

Centro, Canelones Y Aquiles Lanza - U103

Confortos de propriedade

Aquecimento Individual

Terraço

Sala de Estar e Jantar

Animais de Estimação Permitidos

Ações Adicionais

Arquibrokers Servicios Inmobiliarios
5...263
598...263
Objeto similar
Carregando...
Ganhe dinheiro indicando colegas!

Convide outros corretores de imóveis e ganhe 10% de comissão por cada promoção que fizerem.