Centro, Paysandu 982

U$S 92,000

R$ ~536,000 / U$S 948/m2

Quartos de dormir

3

Banheiros

1

M² construído

97

Ano de construção

1985

Tipo de propriedade

Apartamento

mais do que

1 mês

Visualizações

143

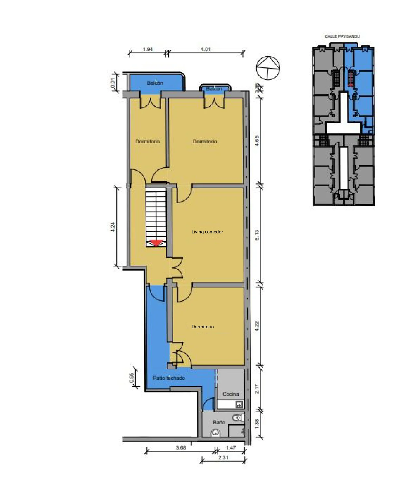
Apartamento En Venta En Centro

Se encuentra ubicado sobre la calle Paysandu, a cuatro cuadras de 18 de Julio. Muy cerca de la Av. Uruguay y la Av. Libertador.
Es un apartamento ubicado al frente en un primer piso por escalera. Este apartamento posee entrada independiente.
Es muy luminoso, consta de 2 dormitorios al frente con balcón, uno de ellos muy grande.
Luego hay 2 grandes espacios utilizados como 3er dormitorio y living comedor que dan a un patio lateral techado.
Baño y cocina definida.
No tiene gastos comunes.

Es ideal para inversión, actualmente se encuentra con renta de 7,8% anual.

También esta a la venta la unidad de al lado que es exactamente igual.




Detalhes da propriedade

ID

Tipo de propriedade

Tipo de operação

M² construído

Quartos de dormir

1256492

Apartamento

Oferta

95

3

Banheiros

Ano de construção

Referência

Atualizada

1

1985

O88F4A

2025-10-15

Localização

92к U$S

Localização

Montevideo

Endereço

Centro, Paysandu 982

Confortos de propriedade

Terraço

Pátio

Ações Adicionais

Grupo Arco
+598 99 554 083
Objeto similar
Carregando...
Ganhe dinheiro indicando colegas!

Convide outros corretores de imóveis e ganhe 10% de comissão por cada promoção que fizerem.