Carrasco, Cno. Brunel Y Av. Del Polo - U211

U$S 494,000

U$S 3,250/m2

Quartos de dormir

3

Banheiros

2

Garagem

1

M² construído

152

Ano de construção

2027

Tipo de propriedade

Apartamento

mais do que

1 mês

Visualizações

168

Apartamento De Tres Dormitorios En Venta En Carrasco - 211c

Edificio en construcción a estrenar en abril de 2026.
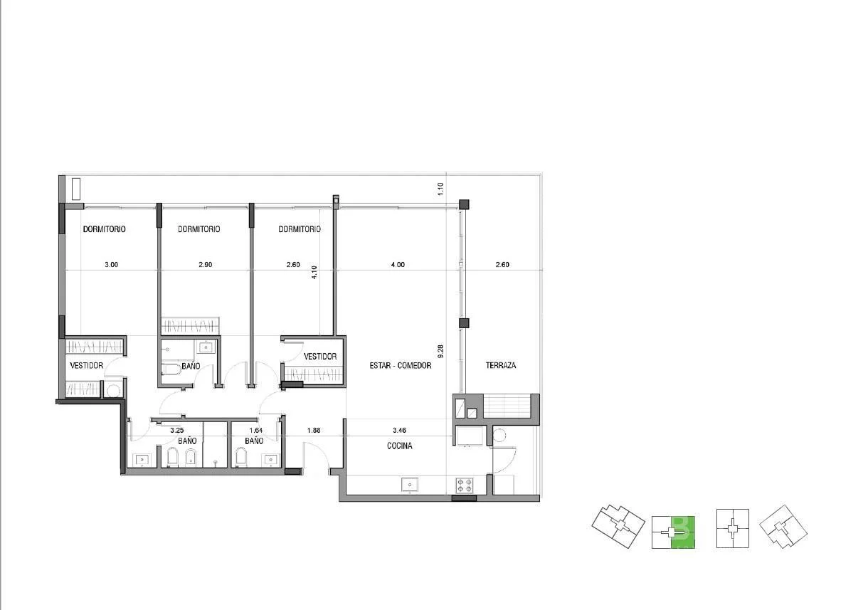
Apartamento de 3 dormitorios en venta en Carrasco.
Piso 2 torre C al frente con orientación norte.
Living comedor con salida a terraza con parrillero, cocina integrada con placares, terraza lavadero, 3 dormitorios, el principal en suite con vestidor, todos con salida a terraza, 2 baños completo y 1 baño social.
Amenities:

- Barbacoa equipadas ubicadas en el rooftop de uno de los edificios de cada etapa.

- Piscina exterior climatizada, rodeada con espacio para solárium, pavimentado con piso atérmico tipo deck.

- Solárium, terrazas acondicionadas en el rooftop de uno de los edificios de cada etapa.

- Sala de aparatos equipadas con caminadoras, spinning y multifuncionales.

- Laundry: En cada bloque se contará también con una sala equipada con máquinas lava-seca ropas de uso colectivo, mediante sistema de fichas.
- Espacio para guardar bicicletas.
Garaje opcional desde U$S 25.000, no incluido en el precio.
Forma de pago:

10% seña

40% compromiso

50% en cuotas trimestrales 

Gastos de ocupación 5%
U 211 C
Ref. RO
Novus Parques
Referencia ABU49528 AP5006569















Honorarios por intermediación:
3% + IVA para operaciones de compra.
Un mes de alquiler + IVA para operaciones de alquiler.

La información contenida en el presente documento ha sido proporcionada íntegramente por el/los propietarios del inmueble.

Arquibrokers Servicios Inmobiliarios no se responsabiliza por las diferencias ni las modificaciones que puedan surgir a partir de este documento.

Detalhes da propriedade

ID

Tipo de propriedade

Tipo de operação

M² construído

Quartos de dormir

1332168

Apartamento

Oferta

113

3

Banheiros

Garagem

Ano de construção

Referência

Atualizada

2

1

2027

F19F63

2026-01-16

Localização

494к U$S

Localização

Montevideo

Endereço

Carrasco, Cno. Brunel Y Av. Del Polo - U211

Confortos de propriedade

Aquecimento Individual

Terraço

Closet

Elevador

Academia

Lavanderia

Sala de Estar e Jantar

Animais de Estimação Permitidos

Ações Adicionais

' ' Arquibrokers Servicios Inmobiliarios
091502034
+59891502034
Objeto similar
Carregando...
Ganhe dinheiro indicando colegas!

Convide outros corretores de imóveis e ganhe 10% de comissão por cada promoção que fizerem.