La Blanqueada, Bvar. José Batlle Y Ordóñez Y Juan Jacobo Rousseau - U1305

U$S 180,884

R$ ~948,000 / U$S 2,783/m2

Quartos de dormir

2

Banheiros

1

Garagem

1

M² construído

65

Ano de construção

2027

Tipo de propriedade

Apartamento

mais do que

1 semana

Visualizações

40

Apartamento De Dos Dormitorios En Venta En La Blanqueada - 1305

Edificio en construcción a estrenar en octubre de 2027.
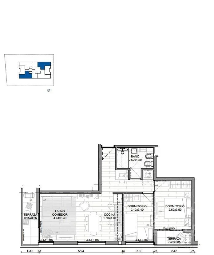
Apartamento de 2 dormitorios en venta en La Blanqueada.
Torre I, piso 13 al contrafrente con orientación suroeste.
Living comedor con terraza, cocina integrada con placares, 2 dormitorios, 1 con terraza y 1 baño.
El edificio cuenta con smart lockers, sala de reuniones, un espacio de coworking, espacios exteriores enjardinados, área exterior con juegos
infantiles, pet garden, estacionamientos techados y bike parking.
Además, contará en el piso 16 con un rooftop con terraza panorámica perimetral y un salón de usos múltiples con cocina, baño y parrillero.
Gimnasio, sala de juegos y dos parrilleros exteriores pergolados. En el subsuelo, se encontrará un lavadero inteligente, taller de herramientas,
taller de reparación de bicicletas y áreas técnicas.
Garaje opcional desde U$S 16.000, no incluido en el precio.
Cuenta con los beneficios de la Ley de vivienda de interés social.
Acepta financiación bancaria.

Formas de pago:

Contado:

80% al compromiso

20% a la ocupación

Pagos durante obra:

30% al compromiso

60% en cuotas durante obra

10% a la ocupación

Gastos de ocupación 4%
u 1305
Ref. CM
Nostrum Home
Referencia: ABU57511 AP6232068




















Honorarios por intermediación:
3% + IVA para operaciones de compra.
Un mes de alquiler + IVA para operaciones de alquiler.

La información contenida en el presente documento ha sido proporcionada íntegramente por el/los propietarios del inmueble.

Arquibrokers Servicios Inmobiliarios no se responsabiliza por las diferencias ni las modificaciones que puedan surgir a partir de este documento.

Detalhes da propriedade

ID

Tipo de propriedade

Tipo de operação

M² construído

Quartos de dormir

1456878

Apartamento

Oferta

56

2

Banheiros

Garagem

Ano de construção

Referência

Atualizada

1

1

2027

F601EA

2026-03-24

Localização

180.9к U$S

Localização

Montevideo

Endereço

La Blanqueada, Bvar. José Batlle Y Ordóñez Y Juan Jacobo Rousseau - U1305

Confortos de propriedade

Aquecimento Individual

Terraço

Elevador

Academia

Sala de Jogos

Sala de Estar e Jantar

Animais de Estimação Permitidos

Ações Adicionais

Arquibrokers Servicios Inmobiliarios
+59...034 +59...398
598...034
Objeto similar
Carregando...
Ganhe dinheiro indicando colegas!

Convide outros corretores de imóveis e ganhe 10% de comissão por cada promoção que fizerem.