La Blanqueada, Bvar. Batlle Y Ordóñez Y Azara-805b

$ 37,900

R$ ~5,626 / + $ 5,000 gastos comuns

Quartos de dormir

2

Banheiros

1

Garagem

1

M² construído

101

Tipo de propriedade

Apartamento

mais do que

4 meses

Visualizações

458

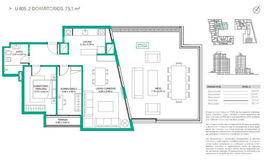
Apartamento De 2 Dormitorios En Alquiler En La Blanqueada

Apartamento en alquiler de dos dormitorios en la Blanqueada
Piso 8 contrafrente.
Living comedor con salida a terraza y cocina definida, 2 dormitorios y 1 baño, patio de 47 m2.
Garaje opcional $ 4.000, no incluido en el precio de alquiler.
Cuenta con:
•Dos barbacoas, una de ellas equipada con horno a leña, plancha y paellera para gas y parrilla tradicional.
•Huerta orgánica en planta baja para los amantes de la jardinería
•Gimnasio equipado
•Rincón de juegos para los más pequeños
•Espacio para lectura y estudio, totalmente equipado.
•Servicio de portería y control de acceso
•Acceso digital a las unidades con portero inteligente, control de acceso con smartphone

U805B
ref AB
Referencia: ABU43830 AP7226057

Honorarios por intermediación:
3% + IVA para operaciones de compra.
Un mes de alquiler + IVA para operaciones de alquiler.

La información contenida en el presente documento ha sido proporcionada íntegramente por el/los propietarios del inmueble.

Arquibrokers Servicios Inmobiliarios no se responsabiliza por las diferencias ni las modificaciones que puedan surgir a partir de este documento.

Detalhes da propriedade

ID

Tipo de propriedade

Tipo de operação

M² construído

Quartos de dormir

1235462

Apartamento

Aluguel

50

2

Banheiros

Garagem

Gastos comuns

Referência

Atualizada

1

1

$5000

SAD794

2025-12-07

Localização

37.9к $

Localização

Montevideo

Endereço

La Blanqueada, Bvar. Batlle Y Ordóñez Y Azara-805b

Confortos de propriedade

Aquecimento Individual

Área de Churrasco

Terraço

Academia

Sala de Jogos

WiFi

Instalação de TV a Cabo

Pátio

Sala de Estar e Jantar

Animais de Estimação Permitidos

Ações Adicionais

' ' Arquibrokers Servicios Inmobiliarios
+59...034 +59...398
598...034
Objeto similar
Carregando...
Ganhe dinheiro indicando colegas!

Convide outros corretores de imóveis e ganhe 10% de comissão por cada promoção que fizerem.