Pocitos, Apartamento De 1 Dormitorio En Venta, Pocitos - 204

U$S 150,443

R$ ~789,000 / U$S 2,950/m2

Quartos de dormir

1

Banheiros

1

M² construído

51

Ano de construção

2027

Tipo de propriedade

Apartamento

mais do que

1 semana

Visualizações

35

Apartamento De 1 Dormitorio En Venta, Pocitos Nuevo , Ap7558883 - 204

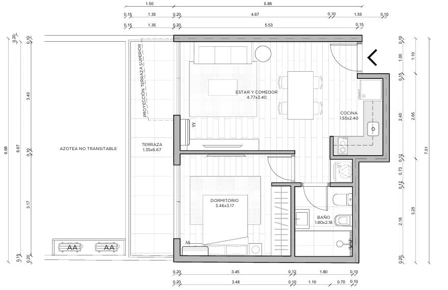
Apartamento de 1 dormitorio con terraza en venta

Este apartamento contará con un diseño contemporáneo y luminoso, con amplios ventanales que permitirán la entrada de luz natural durante todo el día. La distribución de los espacios está pensada para maximizar el confort y la funcionalidad. Dispone de un living-comedor con cocina integrada y salida directa a la terraza.
-----------------------------------------
El edificio:
Diseñado por el reconocido estudio Gómez Platero, este nuevo proyecto residencial en construcción combina arquitectura contemporánea con practicidad y confort.
Se desarrolla en 12 niveles más planta baja y reúne 89 unidades en diversas tipologías: apartamentos de 1, 2 y 3 dormitorios, además de exclusivos penthouses y dúplex con vistas privilegiadas.
Cuenta con dos niveles de estacionamiento subterráneo, espacios destinados al guardado de bicicletas y depósitos individuales. En la planta baja se integran tres locales comerciales, sumando servicios y dinamismo al entorno. Algunas unidades disponen de terrazas con parrillero de uso exclusivo, ofreciendo un espacio íntimo al aire libre.

Amenities: Barbacoa abierta con parrillero | Gimnasio | CCTV | Bicicletero
------------------------------------------
La zona:
Ubicado en Pocitos, uno de los barrios más valorados de Montevideo, el proyecto se sitúa a pocos metros de la Rambla y de 26 de Marzo, garantizando excelente accesibilidad a servicios, transporte y comercios. El entorno combina vitalidad urbana, propuestas gastronómicas, cercanía a espacios recreativos y un estilo de vida dinámico, convirtiéndolo en un punto estratégico tanto para quienes buscan vivir como para quienes desean invertir.
-------------------------------------------
Información Adicional:

Gastos a cargo del comprador:
1) Gastos de ocupación: 5%
2) Honorarios inmobiliarios por compra o venta: 3% + IVA, a pagar con el compromiso.

Garajes disponibles: consultar precio

Formas de Pago:
1) Plazo de obra: 20% reserva - 70% en cuotas en plazo de la obra - 10% contra entrega
2) Contado: 90% firma compromiso - 10% contra entrega
-------------------------------------------
¡Escribinos y agendá tu visita!
Seguinos en las redes en @alvicorpropiedades y entérate primero de los nuevos lanzamientos y promociones exclusivas!

ALVICOR PROPIEDADES
Afiliado a la Asociación de Inmobiliarias del Uruguay (ADIU)
Registro Nacional de Operadores Inmobiliarios N° 1289

Alvicor Propiedades no se responsabiliza por algún cambio, diferencia o modificación del presente documento.

ABU68420 AP7558920

Detalhes da propriedade

ID

Tipo de propriedade

Tipo de operação

M² construído

Quartos de dormir

1444107

Apartamento

Oferta

42

1

Banheiros

Ano de construção

Referência

Atualizada

1

2027

S74141

2026-03-19

Localização

150.4к U$S

Localização

Montevideo

Endereço

Pocitos, Apartamento De 1 Dormitorio En Venta, Pocitos - 204

Confortos de propriedade

Varanda

Depósito

Área de Churrasco

Terraço

Academia

Animais de Estimação Permitidos

Ações Adicionais

Alvicor Propiedades
+59...065 +59...400
598...065
Objeto similar
Carregando...
Ganhe dinheiro indicando colegas!

Convide outros corretores de imóveis e ganhe 10% de comissão por cada promoção que fizerem.