Unión, Calle General Félix Laborde 2500

$ 23,000

R$ ~2,971

Quartos de dormir

1

Banheiros

1

M² construído

55

Ano de construção

2021

Tipo de propriedade

Apartamento

mais do que

2 semanas

Visualizações

59

Alquiler Union Apto Duplex 1 Dorm Patio Parrillero

Corredor Responsable: -
Contacto: Mónica Volkmann Bares
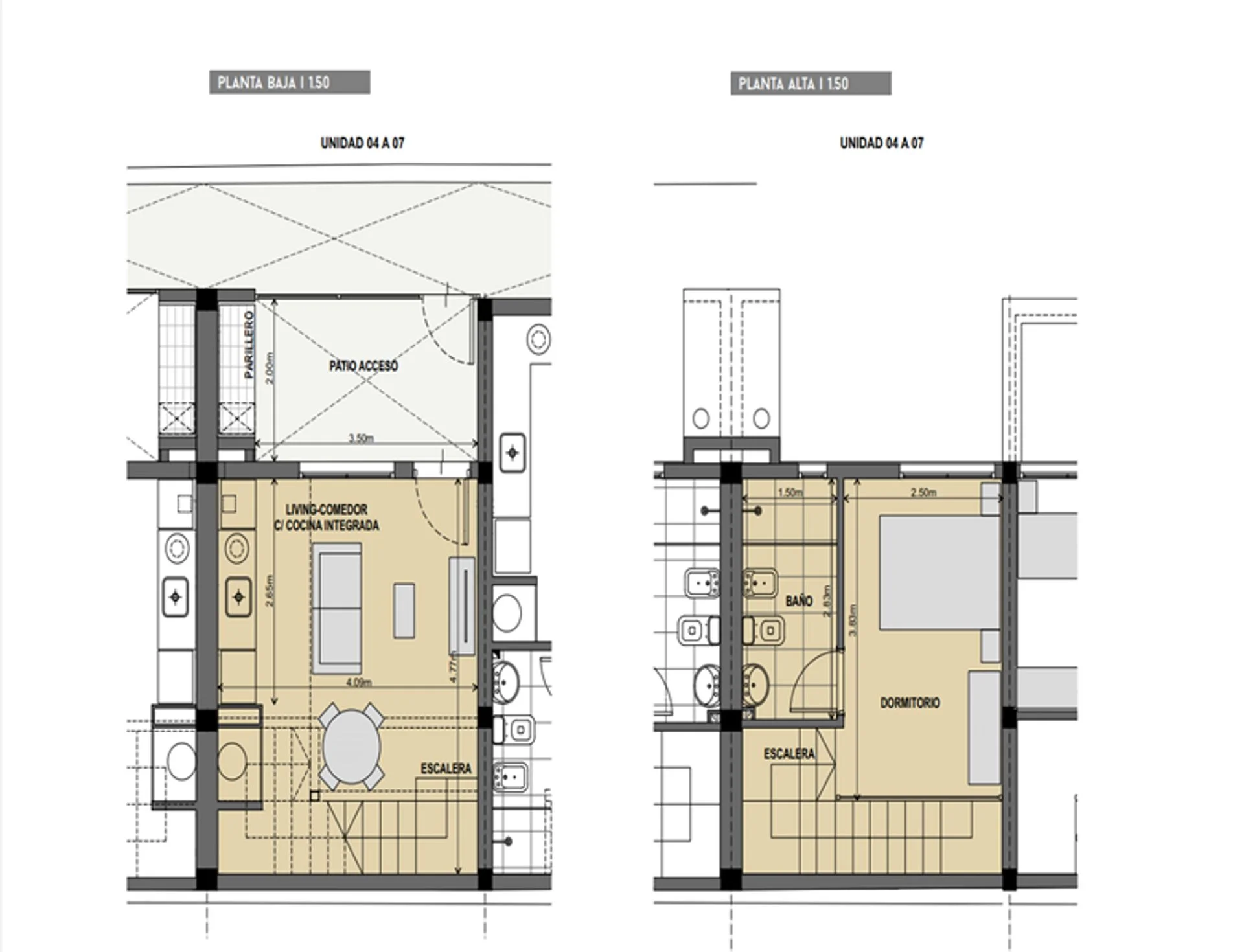
ALQUILER!!! DUPLEX EN BARRIO UNION. La unidad dúplex número 04 en alquiler cuenta con 46 m2 más 9 m2 de patio de uso particular de la unidad.

Cuenta con 1 dormitorio, living comedor con cocina integrada. El ingreso a la unidad desde la calle es mediante un pasillo abierto de circulación común y al frente de la unidad cuenta con un patio de uso particular de la unidad.

Se emplaza en un proyecto de 8 apartamentos tipo dúplex, en el barrio Unión, a una cuadra de Av. 8 de Octubre, a la altura del Hospital Pasteur.

De construcción tradicional con revestimiento en yeso, aberturas de aluminio con vidrios de 5mm, el dormitorio cuenta con cortina de enrollar y revestimiento de piso vinílico flotante. Living comedor con cocina integrada con revestimiento de pisos en porcelanato, ventana con rejas, cocina con mesada de granito, muebles bajo mesada, pileta de acero inoxidable, grifería mono comando; previsión para termotanque y lavarropas, así como para aires acondicionados, y extracción de aire tanto en cocina como en baño.

GASTOS COMUNES: $1.350 mensuales (incluye OSE)
GARANTIAS: ANDA O CONTADURIA

COMISIÓN INMOBILIARIA 1 MES MAS IVA SOBRE EL PRECIO DEL ALQUILER

COMPARTIMOS CON TODOS LOS COLEGAS!

Cada Oficina es de propiedad, gestión y desarrollo independiente
La presente publicación describe las características esenciales del inmueble, debiéndose consultar al responsable de la operación por la eventual actualización de las medidas, descripciones arquitectónicas y funcionales, servicios, impuestos, precios y demás información, cuyos valores son aproximados.

Detalhes da propriedade

ID

Tipo de propriedade

Tipo de operação

Quartos de dormir

1443636

Apartamento

Aluguel

1

Banheiros

Ano de construção

Referência

Atualizada

1

2021

U47030

2026-03-18

Localização

23к $

Localização

Montevideo

Endereço

Unión, Calle General Félix Laborde 2500

Confortos de propriedade

Área de Churrasco

Ações Adicionais

RE/MAX
092...422
598...422
Objeto similar
Carregando...
Ganhe dinheiro indicando colegas!

Convide outros corretores de imóveis e ganhe 10% de comissão por cada promoção que fizerem.